SA
Nevern Square, London, SW5
By Savills Lettings
£ 1,350
Savills Lettings says ..
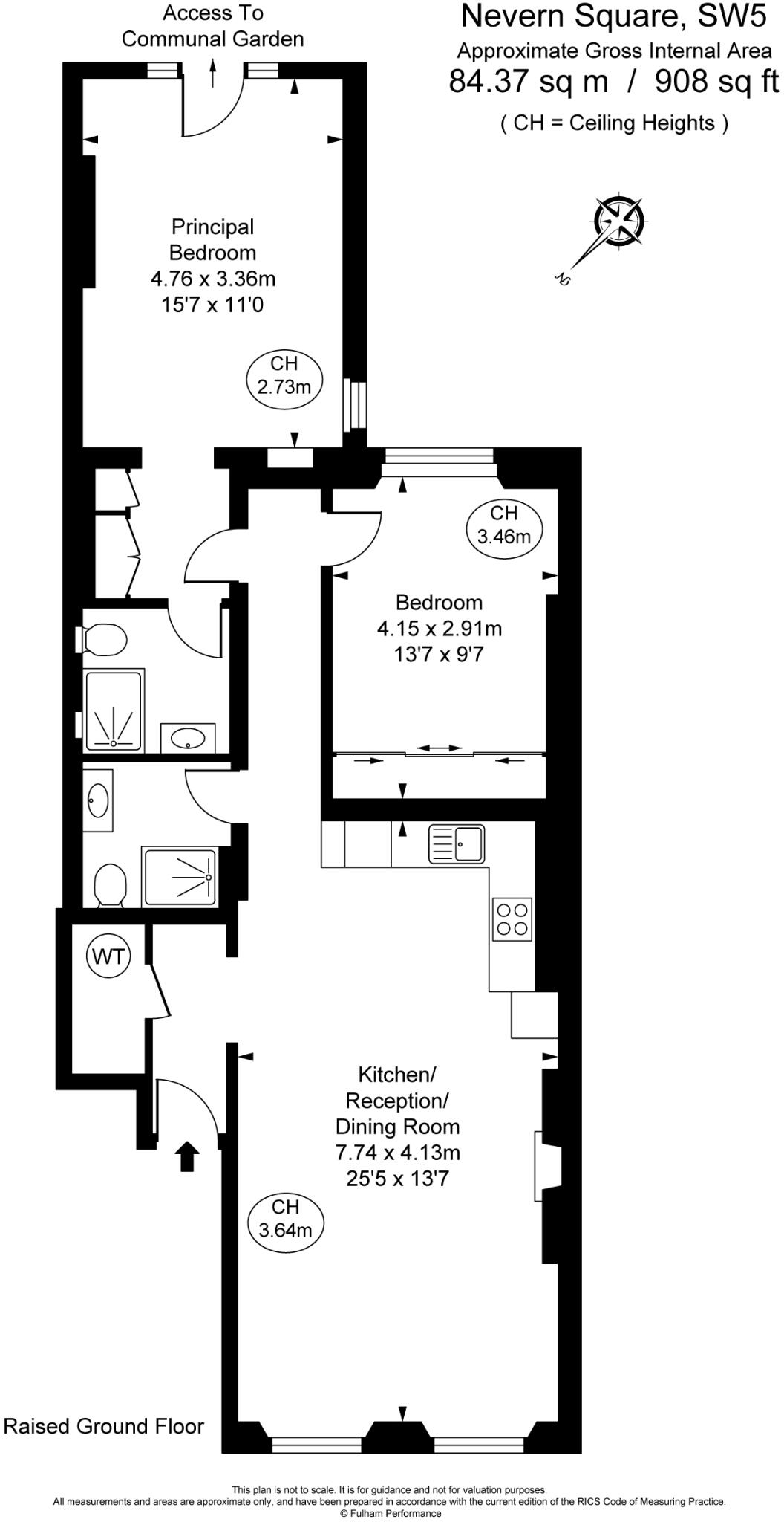
Refurbished two bedroom two bathroom flat on garden square.
- Bedrooms
- 2
- Bathrooms
- 2
The heatmap indicates the level of crime in the area. The color of the heatmap indicates the crime severity and recency.
Metrics Year-on-Year
- Average area value
- 1,927,500.00 £Increased by 42.81 %
- Average area rental value
- 2,284.00 £/moIncreased by 3.72 %
- Est rental Yield
- 1.42 %Decreased by 27.55 %
- Crime Rate
- 10.00 %Unchanged by 0.00 %
from 1,349,731.00 £
from 2,202.00 £/mo
from 1.96 %
from 10.00 %
Agent Activity
Savills Lettings created the listing.
Nearby Schools
| Name | Type | Ofsted | Distance |
|---|---|---|---|
| Snowflake School | Other Independent Special School | Outstanding | 0.23 KM |
| St Cuthbert With St Matthias Ce Primary School And Earl'S Court Children'S Centre | Children's Centre | 0.38 KM | |
| St Cuthbert With St Matthias Cofe Primary School | Voluntary Aided School | Good | 0.38 KM |
| St Barnabas And St Philip'S Cofe Primary School | Voluntary Aided School | Outstanding | 0.71 KM |
| The Fulham Boys School | Free Schools | Good | 0.81 KM |
Images
Nearby Streets
| Name | Average Price | Average Sqft | Distance |
|---|---|---|---|
| Kempsford Gardens | £ 0 | 0 | 0.00 KM |
| Old Brompton Road | £ 0 | 0 | 0.00 KM |
| West Road | £ 0 | 0 | 0.00 KM |
| Wharfedale Street | £ 0 | 0 | 0.00 KM |
| Thaxton Road | £ 0 | 0 | 0.00 KM |
Nearby Transport
| Name | NLC | TLC | Distance |
|---|---|---|---|
| West Brompton | 8875 | WBP | 0.52 KM |
| Kensington (Olympia) | 3092 | KPA | 1.71 KM |
| Imperial Wharf | 9586 | IMW | 2.38 KM |
| Shepherd'S Bush | 9587 | SPB | 2.81 KM |
| Paddington | 3087 | PAD | 3.50 KM |
Nearby Listings
| Address | Price | Type | Score | Distance |
|---|---|---|---|---|
| Nevern Square, London, SW5 | £ 1,500 | RENT | Unknown | 0.00 KM |
| Nevern Square, London, SW5 | £ 1,350 | RENT | Unknown | 0.00 KM |
| Nevern Square, London, SW5 | £ 900 | RENT | Unknown | 0.01 KM |
| Nevern Square, London, SW5 | £ 850 | RENT | Unknown | 0.01 KM |
| Nevern Square, London, SW5 | £ 5,997 | RENT | Unknown | 0.01 KM |
Nearby Properties
| Address | Price | Distance |
|---|---|---|
| 27c Nevern Square | £ 290,000 | 0.02 KM |
| 27g Nevern Square | £ 542,500 | 0.02 KM |
| 18b Nevern Square | £ 970,000 | 0.02 KM |
| 23j Nevern Square | £ 240,000 | 0.02 KM |
| 18d Nevern Square | £ 550,000 | 0.02 KM |