Overseas Estate, Stoke Fleming
Stags logo

Overseas Estate, Stoke Fleming

By Stags

£ 1,350,000

Reviews

3 out of 5 stars

Stags says ..

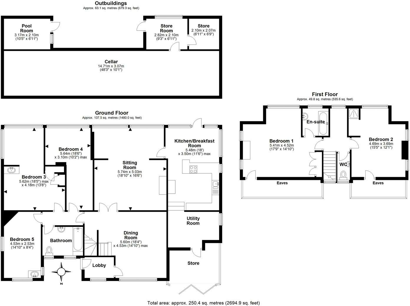
A rare opportunity to purchase a coastal home with stunning, unobstructed sea views in a highly desirable location. EPC band E.

Property Oracle says ..

This 5-bedroom property situated in Stoke Fleming, Devon, presents a compelling opportunity for buyers seeking a coastal home with breathtaking sea views. The house enjoys a prime location within a sought-after village, boasting proximity to a primary school and the attractive town of Dartmouth. While the internal aesthetic of the property exhibits a slightly dated style, the structural integrity seems sound. The property offers unobstructed ocean views from numerous rooms, which is a significant highlight. The presence of a garden offers some outdoor space, although further details on its dimensions would be beneficial.

The list price seems reasonable considering the exceptional location and desirable features, such as the sea views and multiple bedrooms. Yet, potential buyers should budget for potential refurbishment costs to modernise the property’s interiors. The need for updates in the kitchen and bathrooms, in particular, should be factored into the overall cost analysis. A detailed survey is recommended to identify any significant maintenance requirements before purchase. The lack of readily available local transportation could be a factor for some buyers, but this is likely mitigated by the property’s desirable location and the inherent advantages of living in a picturesque coastal village. Overall, this property provides a blend of prime coastal location, spacious accommodation, and sea views, with the potential to increase value following some modernisation.

Therefore, we give this property 6 / 10. *Disclaimer: This is our option and does constitute a recommendation or financial advice. Do your own research. *

Price
7
Condition
6
Location
9
Land
4
Bedrooms
5
Bathrooms
2
Sqft (est)
2,695.28

The heatmap indicates the level of crime in the area. The color of the heatmap indicates the crime severity and recency.

Metrics Year-on-Year

Average area value
216,225.00 £
Decreased by 4.32 %
from 225,977.00 £
Est sale value
706,163.36 £
Increased by 37.89 %
from 512,103.20 £
Average area rental value
863.00 £/mo
Decreased by 37.87 %
from 1,389.00 £/mo
Est letting value
2,695.28 £/mo
Unchanged by 0.00 %
from 2,695.28 £/mo
Est rental Yield
4.79 %
Decreased by 35.09 %
from 7.38 %
Crime Rate
0.00 %
from 0.00 %

Agent Activity

  • Stags created the listing.

Nearby Schools

NameTypeOfstedDistance
Stoke Fleming Community Primary SchoolAcademy Converter0.78 KM
Dartmouth AcademyAcademy Sponsor LedGood2.87 KM
Dartmouth & District Children'S CentreChildren's Centre2.89 KM
St John The Baptist Roman Catholic Primary School, DartmouthAcademy ConverterGood2.89 KM
Kingswear Community Primary SchoolAcademy ConverterGood4.70 KM

Images

A01 - Briar Cottage Stoke Fleming - 240601.jpg A17 - Briar Cottage Overseas Estate - 230517.jpg A24 - Briar Cottage Overseas Estate - 230517.jpg A27 - Briar Cottage Overseas Estate - 230517.jpg A12 - Briar Cottage Stoke Fleming - 240601.jpg A35 - Briar Cottage Overseas Estate - 230517.jpg A25 - Briar Cottage Overseas Estate - 230517.jpg A28 - Briar Cottage Overseas Estate - 230517.jpg A36 - Briar Cottage Overseas Estate - 230517.jpg A22 - Briar Cottage Overseas Estate - 230517.jpg A20 - Briar Cottage Overseas Estate - 230517.jpg A21 - Briar Cottage Overseas Estate - 230517.jpg A37 - Briar Cottage Overseas Estate - 230517.jpg A41 - Briar Cottage Overseas Estate - 230517.jpg A30 - Briar Cottage Overseas Estate - 230517.jpg A29 - Briar Cottage Overseas Estate - 230517.jpg A31 - Briar Cottage Overseas Estate - 230517.jpg A34 - Briar Cottage Overseas Estate - 230517.jpg A33 - Briar Cottage Overseas Estate - 230517.jpg A39 - Briar Cottage Overseas Estate - 230517.jpg A32 - Briar Cottage Overseas Estate - 230517.jpg A03 - Briar Cottage Stoke Fleming - 240601.jpg A09 - Briar Cottage Stoke Fleming - 240601.jpg

Nearby Streets

NameAverage PriceAverage SqftDistance
Well Park Road £ 000.00 KM
Rectory Lane £ 000.00 KM
Redlap Road £ 2,250,00000.00 KM

Nearby Listings

AddressPriceTypeScoreDistance
Overseas Estate, Stoke Fleming £ 1,350,000BUY6 / 100.00 KM
Stoke Fleming £ 1,375,000BUY7 / 100.15 KM
Stoke Fleming £ 1,800,000BUY7 / 100.15 KM
Stoke Fleming, near Dartmouth £ 2,200,000BUY8 / 100.27 KM
Wellparks Farm, New Road, Stoke Fleming £ 850,000BUY6 / 100.31 KM

Nearby Properties

AddressPriceDistance
Silver Cloud £ 865,0000.20 KM
Redstones £ 170,0000.20 KM
Sea Tang £ 650,0000.20 KM
Mewstone £ 1,250,0000.20 KM
April Cottage £ 680,0000.20 KM