David Andrew says ..
This charming Victorian conversion property is presented in good order and is offered for sale with no onward chain.
Property Oracle says ..
Therefore, we give this property 6 / 10. *Disclaimer: This is our option and does constitute a recommendation or financial advice. Do your own research. *
- Price
- 5
- Condition
- 8
- Location
- 8
- Land
- 6
- Bedrooms
- 1
- Bathrooms
- 1
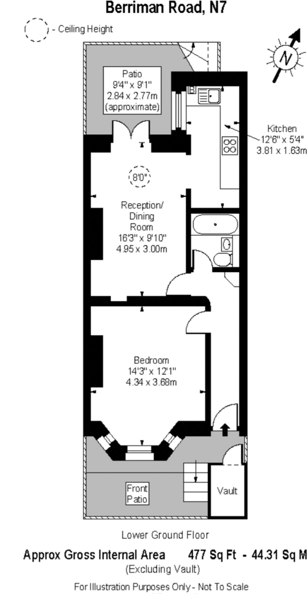
- Sqft (est)
- 484.98
The heatmap indicates the level of crime in the area. The color of the heatmap indicates the crime severity and recency.
Metrics Year-on-Year
- Average area value
- 493,333.00 £Decreased by 29.75 %
- Est sale value
- 364,704.96 £Decreased by 12.66 %
- Average area rental value
- 2,514.00 £/moIncreased by 5.59 %
- Est letting value
- 1,454.94 £/moIncreased by 50.00 %
- Est rental Yield
- 6.12 %Increased by 50.37 %
- Crime Rate
- 3.00 %Unchanged by 0.00 %
from 702,262.00 £
from 417,567.78 £
from 2,381.00 £/mo
from 969.96 £/mo
from 4.07 %
from 3.00 %
Agent Activity
David Andrew created the listing.
Nearby Schools
| Name | Type | Ofsted | Distance |
|---|---|---|---|
| Pakeman Primary School | Community School | Good | 0.30 KM |
| Montem Primary School | Community School | Good | 0.33 KM |
| Hornsey Road Childrens Centre | Children's Centre | 0.42 KM | |
| Pooles Park Primary School | Community School | Good | 0.50 KM |
| North Islington Nursery School And Children'S Centre | Children's Centre | 0.70 KM |
Images
Nearby Streets
| Name | Average Price | Average Sqft | Distance |
|---|---|---|---|
| Cornwallis Square | £ 250,000 | 0 | 0.00 KM |
| Citizen Road | £ 500,000 | 0 | 0.00 KM |
| Hertslet Road | £ 0 | 0 | 0.00 KM |
| Ashburton Triangle | £ 0 | 0 | 0.00 KM |
| Franchise Place | £ 0 | 0 | 0.00 KM |
Nearby Transport
| Name | NLC | TLC | Distance |
|---|---|---|---|
| Finsbury Park | 6119 | FPK | 0.75 KM |
| Drayton Park | 6000 | DYP | 1.11 KM |
| Crouch Hill | 7406 | CRH | 1.34 KM |
| Highbury And Islington | 6009 | HHY | 1.82 KM |
| Upper Holloway | 1524 | UHL | 1.98 KM |
Nearby Listings
| Address | Price | Type | Score | Distance |
|---|---|---|---|---|
| Berriman Road, London, N7 | £ 415,000 | BUY | 6 / 10 | 0.00 KM |
| Berriman Road, Islington, London, N7 | £ 450,000 | BUY | Unknown | 0.04 KM |
| Berriman Road, Yonge Park, N7 | £ 950,000 | BUY | 5 / 10 | 0.05 KM |
| Berriman Road, London | £ 1,400,000 | BUY | 6 / 10 | 0.05 KM |
| Berriman Road, Islington, London, N7 | £ 775,000 | BUY | 7 / 10 | 0.10 KM |
Nearby Properties
| Address | Price | Distance |
|---|---|---|
| 41a Berriman Road | £ 400,000 | 0.01 KM |
| 41b Berriman Road | £ 495,000 | 0.01 KM |
| 11a Berriman Road | £ 245,000 | 0.01 KM |
| 12a Berriman Road | £ 325,000 | 0.01 KM |
| 3a Berriman Road | £ 731,000 | 0.01 KM |