Kingswood says ..
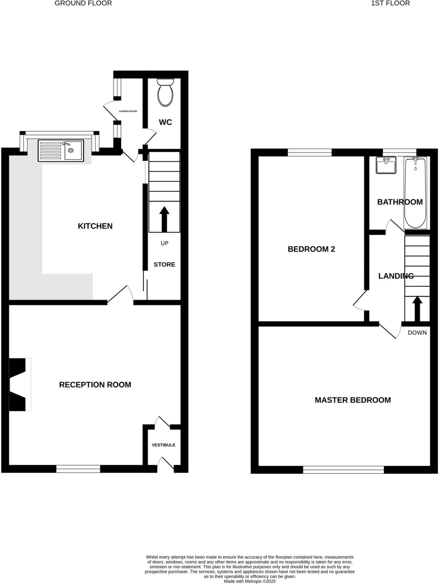
ATTENTION FIRST TIME BUYERS!!! As soon as i walked into this spacious property, I knew this going to great for first time buyers who are looking to add their own personal touch. This property presents a fantastic opportunity to create a warm and welcoming home in a popular residential area.
Property Oracle says ..
Therefore, we give this property 5 / 10. *Disclaimer: This is our option and does constitute a recommendation or financial advice. Do your own research. *
- Price
- 6
- Condition
- 4
- Location
- 7
- Land
- 3
- Bedrooms
- 2
- Bathrooms
- 1
- Sqft (est)
- 809.90
The heatmap indicates the level of crime in the area. The color of the heatmap indicates the crime severity and recency.
Metrics Year-on-Year
- Average area value
- 139,800.00 £Decreased by 2.02 %
- Est sale value
- 187,896.80 £Increased by 34.88 %
- Average area rental value
- 854.00 £/moIncreased by 8.38 %
- Est letting value
- 809.90 £/mo
- Est rental Yield
- 7.33 %Increased by 10.56 %
- Crime Rate
- 5.00 %Unchanged by 0.00 %
from 142,689.00 £
from 139,302.80 £
from 788.00 £/mo
from 0.00 £/mo
from 6.63 %
from 5.00 %
Agent Activity
Kingswood created the listing.
Nearby Schools
| Name | Type | Ofsted | Distance |
|---|---|---|---|
| The Roebuck School | Community School | Requires improvement | 0.48 KM |
| Moorbrook School | Community Special School | Good | 0.61 KM |
| Eldon Primary School | Community School | Outstanding | 0.69 KM |
| Sure Start Riverbank Children'S Centre | Children's Centre | 1.04 KM | |
| English Martyrs Catholic Primary School, Preston | Voluntary Aided School | Good | 1.16 KM |
Images
Nearby Streets
| Name | Average Price | Average Sqft | Distance |
|---|---|---|---|
| Queens Road | £ 0 | 0 | 0.00 KM |
| Hammond Court | £ 0 | 0 | 0.00 KM |
| Coniston Avenue | £ 160,000 | 0 | 0.00 KM |
| Fowler Street | £ 0 | 0 | 0.00 KM |
| Fylde Road | £ 15,000 | 0 | 0.00 KM |
Nearby Transport
| Name | NLC | TLC | Distance |
|---|---|---|---|
| Preston (Lancs) | 2753 | PRE | 1.84 KM |
| Lostock Hall | 2689 | LOH | 6.12 KM |
| Bamber Bridge | 2561 | BMB | 7.88 KM |
| Leyland | 2710 | LEY | 8.67 KM |
Nearby Listings
| Address | Price | Type | Score | Distance |
|---|---|---|---|---|
| Greenbank Street, Preston, PR1 | £ 130,000 | BUY | 5 / 10 | 0.00 KM |
| Greenbank Avenue, Preston, PR1 | £ 130,000 | BUY | 6 / 10 | 0.07 KM |
| Greenbank Avenue Preston PR1 7QB | £ 135,000 | BUY | 6 / 10 | 0.07 KM |
| Greenbank Avenue Preston PR1 7QB | £ 125,000 | BUY | 5 / 10 | 0.07 KM |
| Eldon Street Preston PR1 7PL | £ 118,000 | BUY | Unknown | 0.09 KM |
Nearby Properties
| Address | Price | Distance |
|---|---|---|
| 74d Greenbank Street | £ 102,000 | 0.02 KM |
| 72 Greenbank Street | £ 85,000 | 0.02 KM |
| 54d Greenbank Street | £ 81,000 | 0.02 KM |
| 61 Greenbank Street | £ 120,000 | 0.02 KM |
| 57 Greenbank Street | £ 75,000 | 0.02 KM |