Winkworth says ..
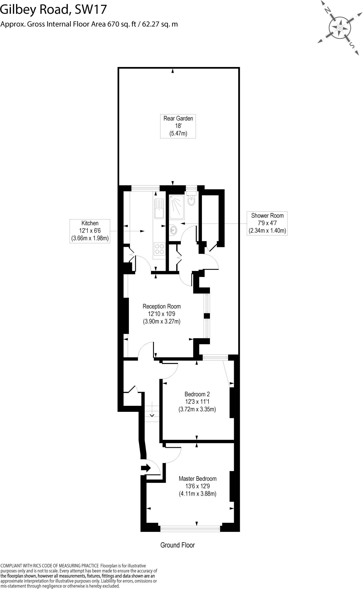
A lovely two-bedroom ground floor flat set within a lovely period conversion with a private outdoors space and stylish interior. The property has been restored and updated by its current owners, comprising of two large double bedrooms, a generous family bathroom, a shaker-style kitche...
Property Oracle says ..
This is a well-presented two-bedroom apartment in Tooting, London. The property benefits from a modern interior, a private garden, and a convenient location close to local amenities and transport links. The apartment appears to be in good condition, with updated kitchen and bathroom. The price is competitive for the area, making it an attractive option for buyers looking for a ready-to-move-in property in a popular London location.
Therefore, we give this property 7 / 10. *Disclaimer: This is our option and does constitute a recommendation or financial advice. Do your own research. *
- Price
- 7
- Condition
- 8
- Location
- 7
- Land
- 6
- Bedrooms
- 2
- Bathrooms
- 1
- Sqft (est)
- 878.98
The heatmap indicates the level of crime in the area. The color of the heatmap indicates the crime severity and recency.
Metrics Year-on-Year
- Average area value
- 475,625.00 £Decreased by 30.32 %
- Est sale value
- 624,075.80 £Increased by 0.28 %
- Average area rental value
- 2,932.00 £/moIncreased by 7.60 %
- Est letting value
- 3,515.92 £/moIncreased by 100.00 %
- Est rental Yield
- 7.40 %Increased by 54.49 %
- Crime Rate
- 10.00 %Unchanged by 0.00 %
Agent Activity
Winkworth created the listing.
Nearby Schools
| Name | Type | Ofsted | Distance |
|---|---|---|---|
| Gatton (Va) Primary School | Voluntary Aided School | Outstanding | 0.39 KM |
| Broadwater Primary School | Community School | Good | 0.49 KM |
| St George'S Hospital Medical School | Higher Education Institutions | 0.50 KM | |
| Sellincourt Primary School | Community School | Good | 0.51 KM |
| St Boniface Rc Primary School | Voluntary Aided School | Outstanding | 0.55 KM |
Images
Nearby Streets
| Name | Average Price | Average Sqft | Distance |
|---|---|---|---|
| Laurel Close | £ 0 | 0 | 0.00 KM |
| Garratt Lane | £ 0 | 0 | 0.00 KM |
| St. Cyprians Street | £ 650,000 | 0 | 0.00 KM |
| Douglas Court | £ 0 | 0 | 0.00 KM |
| Upper Tooting Road | £ 410,000 | 0 | 0.00 KM |
Nearby Transport
| Name | NLC | TLC | Distance |
|---|---|---|---|
| Tooting | 5389 | TOO | 1.33 KM |
| Haydons Road | 5289 | HYR | 2.07 KM |
| Wandsworth Common | 5395 | WSW | 2.17 KM |
| Earlsfield | 5584 | EAD | 2.52 KM |
| Balham | 5399 | BAL | 2.61 KM |
Nearby Listings
| Address | Price | Type | Score | Distance |
|---|---|---|---|---|
| Gilbey Road, London, SW17 | £ 525,000 | BUY | 7 / 10 | 0.00 KM |
| Gilbey Road, London | £ 459,999 | BUY | 5 / 10 | 0.02 KM |
| Gilbey Road, Tooting | £ 930,000 | BUY | 5 / 10 | 0.03 KM |
| Gilbey Road, London, SW17 | £ 300,000 | BUY | 5 / 10 | 0.03 KM |
| Gilbey Road, London, Tooting, SW17 | £ 575,000 | BUY | Unknown | 0.03 KM |
Nearby Properties
| Address | Price | Distance |
|---|---|---|
| 26 Gilbey Road | £ 205,000 | 0.02 KM |
| 26a Gilbey Road | £ 238,000 | 0.02 KM |
| 32a Gilbey Road | £ 230,000 | 0.02 KM |
| 10a Gilbey Road | £ 435,000 | 0.02 KM |
| 40a Gilbey Road | £ 122,000 | 0.02 KM |