London Road, Dunton Green, Sevenoaks TN13
By Reids Property
£ 350,000
Reviews
3 out of 5 stars
Reids Property says ..
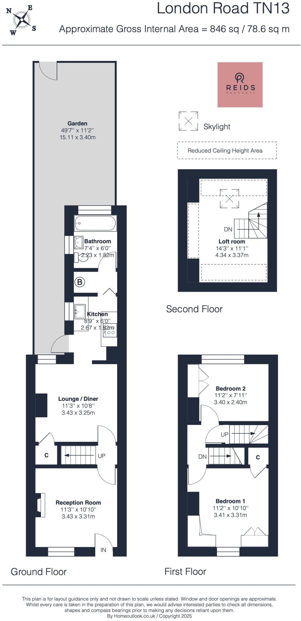
Guide Price: £350,000 - £375,000. A charming period cottage with large garden arranged over three floors in the heart of Dunton Green Village. Within proximity of excellent transport links, schools and local amenities.
Property Oracle says ..
This 2-bedroom, 1-bathroom property located on London Road, Dunton Green, Sevenoaks, is presented in excellent condition following what appears to be a recent renovation. The internal photos showcase a modern, stylish interior with a well-equipped kitchen, a cosy living area with a fireplace, and updated bathroom facilities. Two bedrooms, including a child’s room with custom designed decor, are visible. There is also evidence of a converted loft space which has been converted into a home office. The property benefits from a small garden providing a private outdoor area, suitable for relaxing or casual dining. The location is advantageous due to its proximity to Dunton Green train station, providing direct links to Sevenoaks and broader transport networks. Local amenities, including Dunton Green Primary School, are also easily accessible. While the immediate area might not offer the extensive shopping found in Sevenoaks town centre, the balance of local convenience and good transport links makes the location desirable for young families and commuters. While the data provided lacks details on property square footage, the asking price appears reasonable given its condition, location, and the pricing of nearby properties.
Therefore, we give this property 6 / 10. *Disclaimer: This is our option and does constitute a recommendation or financial advice. Do your own research. *
- Price
- 7
- Condition
- 8
- Location
- 7
- Land
- 4
- Bedrooms
- 2
- Bathrooms
- 1
- Sqft (est)
- 846.04
The heatmap indicates the level of crime in the area. The color of the heatmap indicates the crime severity and recency.
Metrics Year-on-Year
- Average area value
- 506,750.00 £Decreased by 8.90 %
- Est sale value
- 391,716.52 £Decreased by 16.27 %
- Average area rental value
- 2,066.00 £/moDecreased by 4.04 %
- Est letting value
- 846.04 £/moDecreased by 50.00 %
- Est rental Yield
- 4.89 %Increased by 5.39 %
- Crime Rate
- 48.00 %Unchanged by 0.00 %
Agent Activity
Reids Property created the listing.
Nearby Schools
| Name | Type | Ofsted | Distance |
|---|---|---|---|
| Dunton Green Primary School | Community School | Good | 0.00 KM |
| Riverhead Infants' School | Community School | Outstanding | 1.46 KM |
| Amherst School | Academy Converter | Good | 1.63 KM |
| Knole Academy | Academy Sponsor Led | Good | 2.23 KM |
| Chevening, St Botolph'S Church Of England Voluntary Aided Primary School | Voluntary Aided School | Good | 2.28 KM |
Images
Nearby Streets
| Name | Average Price | Average Sqft | Distance |
|---|---|---|---|
| Lusted Road | £ 0 | 0 | 0.00 KM |
| Station Approach | £ 0 | 0 | 0.00 KM |
| Nicholson Road | £ 512,500 | 0 | 0.00 KM |
| The Terrace | £ 0 | 0 | 0.00 KM |
| Church Field | £ 0 | 0 | 0.00 KM |
Nearby Transport
| Name | NLC | TLC | Distance |
|---|---|---|---|
| Dunton Green | 5102 | DNG | 0.59 KM |
| Sevenoaks | 5124 | SEV | 2.77 KM |
| Bat And Ball | 5090 | BBL | 3.24 KM |
| Otford | 5071 | OTF | 3.94 KM |
| Shoreham (Kent) | 5074 | SEH | 4.78 KM |
Nearby Listings
| Address | Price | Type | Score | Distance |
|---|---|---|---|---|
| London Road, Dunton Green, TN13 | £ 350,000 | BUY | Unknown | 0.00 KM |
| London Road, Dunton Green, Sevenoaks TN13 | £ 350,000 | BUY | 6 / 10 | 0.00 KM |
| London Road, Dunton Green, TN13 | £ 349,995 | BUY | 8 / 10 | 0.00 KM |
| Dunton Green, Sevenoaks | £ 395,000 | BUY | 7 / 10 | 0.02 KM |
| 16, Barretts Road, Dunton Green, Sevenoaks, Kent, TN13 | £ 620,000 | BUY | 6 / 10 | 0.07 KM |
Nearby Properties
| Address | Price | Distance |
|---|---|---|
| 156 London Road | £ 367,500 | 0.01 KM |
| 150 London Road | £ 296,000 | 0.01 KM |
| 136 London Road | £ 330,000 | 0.01 KM |
| 142 London Road | £ 185,000 | 0.01 KM |
| 139 London Road | £ 249,000 | 0.06 KM |