Northwood says ..
Calling all first-time buyers and property investors alike! For sale with no-onward is this spacious town house set out across three floors.
Property Oracle says ..
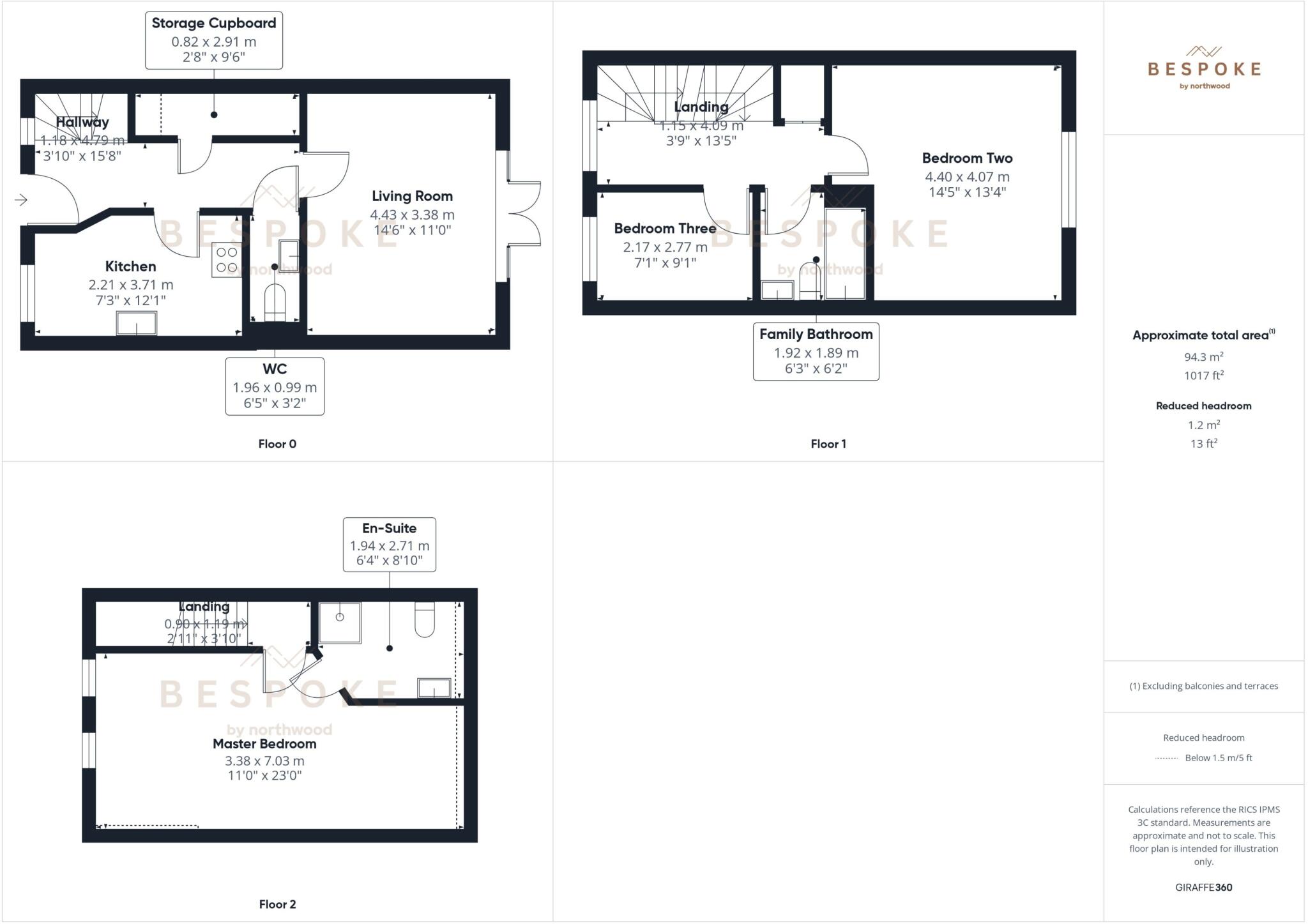
This is a three-bedroom terraced property located in Crewe St Barnabas. The property is in a reasonable location, with schools and transport links nearby. While the property is in a generally fair condition, some modernisation would be beneficial. The property includes a garden. The asking price is reasonable for the area and the property type.
Therefore, we give this property 6 / 10. *Disclaimer: This is our option and does constitute a recommendation or financial advice. Do your own research. *
- Price
- 7
- Condition
- 6
- Location
- 7
- Land
- 5
- Bedrooms
- 3
- Bathrooms
- 2
- Sqft (est)
- 1,015.04
The heatmap indicates the level of crime in the area. The color of the heatmap indicates the crime severity and recency.
Metrics Year-on-Year
- Average area value
- 162,625.00 £Increased by 2.92 %
- Est sale value
- 163,421.44 £Decreased by 9.04 %
- Average area rental value
- 965.00 £/moIncreased by 20.78 %
- Est letting value
- 0.00 £/mo
- Est rental Yield
- 7.12 %Increased by 17.30 %
- Crime Rate
- 6.00 %Unchanged by 0.00 %
Agent Activity
Northwood created the listing.
Nearby Schools
| Name | Type | Ofsted | Distance |
|---|---|---|---|
| Leighton Academy | Academy Converter | Requires improvement | 0.91 KM |
| Underwood West Academy | Academy Converter | Good | 1.00 KM |
| Oaktree Children'S Centre | Children's Centre | 1.14 KM | |
| The Axis Academy | Free Schools Special | 1.52 KM | |
| Wistaston Academy | Academy Converter | 1.64 KM |
Images
Nearby Streets
| Name | Average Price | Average Sqft | Distance |
|---|---|---|---|
| George Dingley Close | £ 0 | 0 | 0.00 KM |
| Ken Wooley Road | £ 185,000 | 0 | 0.00 KM |
| Wakefield Close | £ 160,000 | 0 | 0.00 KM |
| Linnet Close | £ 0 | 0 | 0.00 KM |
| Turner Close | £ 0 | 0 | 0.00 KM |
Nearby Transport
| Name | NLC | TLC | Distance |
|---|---|---|---|
| Crewe | 1243 | CRE | 4.30 KM |
| Nantwich | 1247 | NAN | 7.29 KM |
| Sandbach | 1261 | SDB | 9.65 KM |
| Winsford | 2269 | WSF | 9.88 KM |
Nearby Listings
| Address | Price | Type | Score | Distance |
|---|---|---|---|---|
| Ashbank Place, Crewe, CW1 | £ 160,000 | BUY | 6 / 10 | 0.00 KM |
| Ashbank Place, Crewe, CW1 | £ 180,000 | BUY | 7 / 10 | 0.02 KM |
| Pyms Lane, Crewe, CW1 | £ 160,000 | BUY | Unknown | 0.03 KM |
| Minshull New Road, Crewe, Cheshire, CW1 | £ 140,000 | BUY | 6 / 10 | 0.05 KM |
| Minshull New Road, CREWE, Cheshire, CW1 | £ 140,000 | BUY | Unknown | 0.08 KM |
Nearby Properties
| Address | Price | Distance |
|---|---|---|
| 9 Ashbank Place | £ 174,000 | 0.03 KM |
| 4 Ashbank Place | £ 159,000 | 0.03 KM |
| 136 Minshull New Road | £ 36,950 | 0.08 KM |
| 176 Minshull New Road | £ 155,000 | 0.08 KM |
| 174 Minshull New Road | £ 103,000 | 0.08 KM |