Perkins Estate Agents says ..
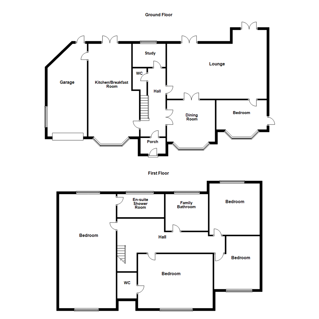
Nestled in the charming area of Ickenham, UB10, this splendid detached house offers a perfect blend of comfort and elegance. With five generously sized bedrooms, this property is ideal for families seeking ample space to grow and thrive. The two well-appointed bathrooms ensure convenience for all...
Property Oracle says ..
This five-bedroom, two-bathroom house in Ickenham, UB10, is presented by Perkins Estate Agents. The property’s location in Ickenham offers a blend of tranquility and accessibility, with relatively easy access to transport links and several highly-rated schools within a reasonable distance. The exterior displays a classic suburban style, while the interior photographs showcase a mix of contemporary and traditional features. The kitchen appears recently updated with modern appliances, and the living spaces are bright and spacious. The garden is present but appears to be of moderate size, sufficient for family use but not exceptionally large. The bedrooms seem well proportioned, and the property generally suggests comfortable family living. However, a complete assessment requires a physical viewing and a survey. The absence of property size (sqft) and plot size data prevents a fully comprehensive evaluation of the property’s value. Additional information regarding the property’s specific features (e.g., garage, off-street parking) is needed for a more conclusive opinion. The provided price of £1,400,000 needs to be reviewed against the available market data for similar properties in the vicinity, once square footage is established. Comparing it to similar properties listed in the Ickenham area and nearby streets like The Mead and Old Priory will give more detailed insight into whether this is a fair listing price.
Therefore, we give this property 6 / 10. *Disclaimer: This is our option and does constitute a recommendation or financial advice. Do your own research. *
- Price
- 7
- Condition
- 7
- Location
- 7
- Land
- 5
- Bedrooms
- 5
- Bathrooms
- 2
The heatmap indicates the level of crime in the area. The color of the heatmap indicates the crime severity and recency.
Metrics Year-on-Year
- Average area value
- 845,563.00 £Decreased by 7.05 %
- Average area rental value
- 2,280.00 £/moDecreased by 28.32 %
- Est rental Yield
- 3.24 %Decreased by 22.86 %
- Crime Rate
- 13.00 %Unchanged by 0.00 %
Agent Activity
Perkins Estate Agents created the listing.
Nearby Schools
| Name | Type | Ofsted | Distance |
|---|---|---|---|
| The Breakspear School | Community School | Good | 0.61 KM |
| Vyners School | Academy Converter | Outstanding | 1.11 KM |
| The Douay Martyrs Catholic School | Academy Converter | Good | 1.35 KM |
| Pentland Field School | Free Schools Special | Good | 1.74 KM |
| Glebe Primary School | Community School | Good | 2.18 KM |
Images
Nearby Streets
| Name | Average Price | Average Sqft | Distance |
|---|---|---|---|
| The Mead | £ 940,000 | 0 | 0.00 KM |
| Bushey Close | £ 0 | 0 | 0.00 KM |
| Farm Close | £ 570,000 | 0 | 0.00 KM |
| U48 | £ 0 | 0 | 0.00 KM |
| Windrush Close | £ 900,000 | 0 | 0.00 KM |
Nearby Transport
| Name | NLC | TLC | Distance |
|---|---|---|---|
| West Ruislip | 3059 | WRU | 1.95 KM |
| Denham | 3052 | DNM | 4.93 KM |
| South Ruislip | 3057 | SRU | 6.22 KM |
| West Drayton | 3174 | WDT | 6.46 KM |
| Denham Golf Club | 3060 | DGC | 7.16 KM |
Nearby Listings
| Address | Price | Type | Score | Distance |
|---|---|---|---|---|
| Ickenham, UB10 | £ 1,400,000 | BUY | 6 / 10 | 0.00 KM |
| Greenacres Avenue, Ickenham, UB10 | £ 1,150,000 | BUY | 8 / 10 | 0.10 KM |
| Derwent Avenue, Ickenham, Uxbridge | £ 1,200,000 | BUY | 7 / 10 | 0.12 KM |
| Derwent Avenue, Ickenham, Uxbridge | £ 600,000 | BUY | Unknown | 0.12 KM |
| Irwin Close, Ickenham, UB10 | £ 1,200,000 | BUY | 7 / 10 | 0.14 KM |
Nearby Properties
| Address | Price | Distance |
|---|---|---|
| 1 Derwent Avenue | £ 475,000 | 0.11 KM |
| 19 Derwent Avenue | £ 605,000 | 0.11 KM |
| 3 Derwent Avenue | £ 760,000 | 0.11 KM |
| 21 Derwent Avenue | £ 632,000 | 0.11 KM |
| 4 Derwent Avenue | £ 847,500 | 0.11 KM |