MI
Oak Avenue, West Winch, King's Lynn, PE33
By Millsopps
£ 372,500
Reviews
3 out of 5 stars
Millsopps says ..
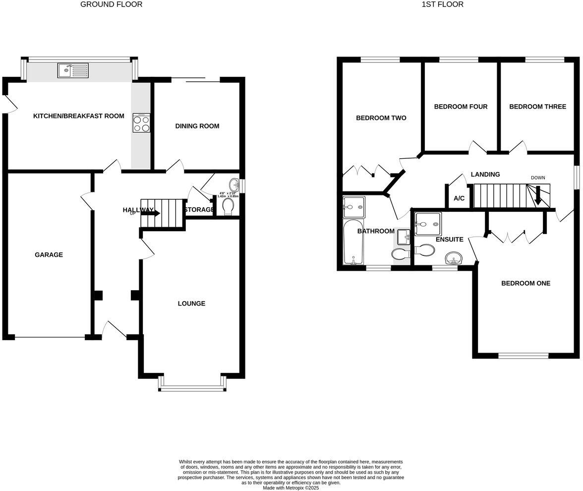
An extremely well presented four bedroom detached family home situated in the desirable Village of West Winch. The accommodation comprises hall, lounge, kitchen breakfast, dining room, w/c, family bathroom, four bedrooms with the master benefitting from an en-suite. The property further benefi...
Property Oracle says ..
Therefore, we give this property 7 / 10. *Disclaimer: This is our option and does constitute a recommendation or financial advice. Do your own research. *
- Price
- 6
- Condition
- 8
- Location
- 7
- Land
- 7
- Bedrooms
- 4
- Bathrooms
- 2
- Sqft (est)
- 1,435.00
The heatmap indicates the level of crime in the area. The color of the heatmap indicates the crime severity and recency.
Metrics Year-on-Year
- Average area value
- 245,074.00 £Decreased by 15.93 %
- Est sale value
- 337,225.00 £Decreased by 37.50 %
- Average area rental value
- 1,254.00 £/moDecreased by 5.43 %
- Est letting value
- 1,435.00 £/moUnchanged by 0.00 %
- Est rental Yield
- 6.14 %Increased by 12.45 %
- Crime Rate
- 26.00 %Unchanged by 0.00 %
from 291,529.00 £
from 539,560.00 £
from 1,326.00 £/mo
from 1,435.00 £/mo
from 5.46 %
from 26.00 %
Agent Activity
Millsopps created the listing.
Nearby Schools
| Name | Type | Ofsted | Distance |
|---|---|---|---|
| West Winch Primary School | Community School | Good | 0.98 KM |
| Nar Children'S Centre | Children's Centre | 4.12 KM | |
| St Michael'S Church Of England Academy | Academy Sponsor Led | Good | 4.14 KM |
| Howard Junior School | Academy Converter | Good | 4.72 KM |
| King'S Oak Academy | Academy Converter | 4.72 KM |
Images
Nearby Streets
| Name | Average Price | Average Sqft | Distance |
|---|---|---|---|
| Long Lane | £ 425,000 | 0 | 0.00 KM |
| Holly Close | £ 0 | 0 | 0.00 KM |
Nearby Transport
| Name | NLC | TLC | Distance |
|---|---|---|---|
| Watlington | 7057 | WTG | 5.24 KM |
| Kings Lynn | 7115 | KLN | 5.24 KM |
Nearby Listings
| Address | Price | Type | Score | Distance |
|---|---|---|---|---|
| Oak Avenue, West Winch, King's Lynn, PE33 | £ 372,500 | BUY | 7 / 10 | 0.00 KM |
| Oak Avenue, West Winch, KING'S LYNN | £ 325,000 | BUY | 7 / 10 | 0.01 KM |
| Fuller Close, West Winch, King's Lynn | £ 350,000 | BUY | 7 / 10 | 0.12 KM |
| Pine Tree Chase, West Winch | £ 400,000 | BUY | 7 / 10 | 0.12 KM |
| Old Kiln, West Winch, King's Lynn | £ 375,000 | BUY | 6 / 10 | 0.12 KM |
Nearby Properties
| Address | Price | Distance |
|---|---|---|
| 1 Fuller Close | £ 175,000 | 0.12 KM |
| 5 Fuller Close | £ 332,500 | 0.12 KM |
| 8 Fuller Close | £ 176,000 | 0.12 KM |
| 13 Fuller Close | £ 159,000 | 0.12 KM |
| 10 Fuller Close | £ 192,500 | 0.12 KM |