Haycroft Drive, Matson, Gloucester
By Naylor Powell
£ 280,000
Reviews
3 out of 5 stars
Naylor Powell says ..
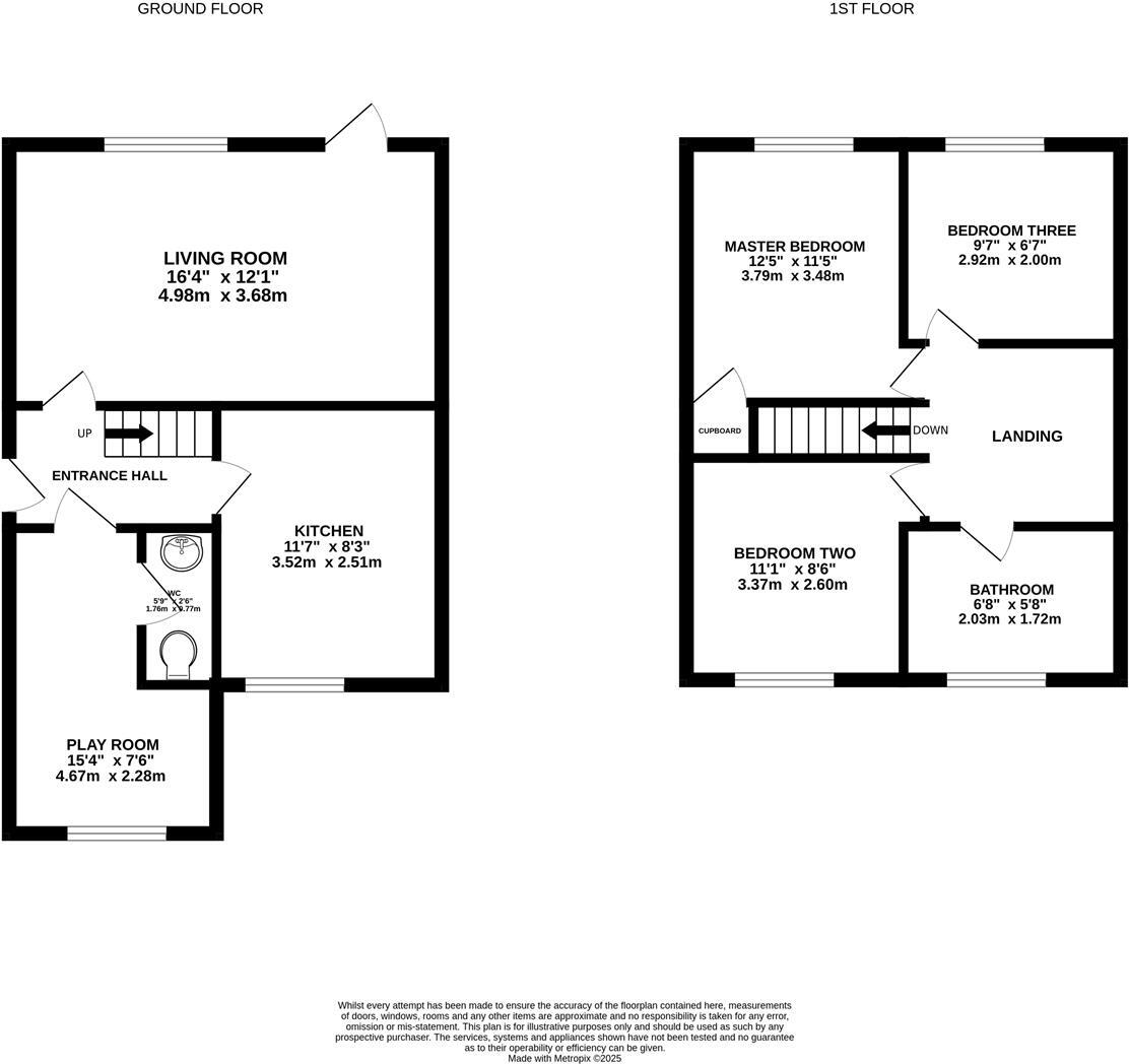
Situated on the ever popular Haycroft Drive in Matson, this three bedroom semi-detached family home is offered to the market. With generous living accommodation throughout alongside modern touches and upgrades, the property further benefits from an enclosed private garden and driveway for multipl...
Property Oracle says ..
This is a 3-bedroom semi-detached house located on Haycroft Drive in Matson, Gloucester. The property offers 743.68 sqft of living space and includes 2 bathrooms. The house appears to be in good condition, with modern interior finishes. It also features a garden and off-street parking. The location is reasonably convenient, with access to local amenities and transport links. However, the nearby school’s Ofsted rating is a potential concern. The asking price of £280,000 seems fair in relation to comparable properties in the area. Overall, this property would make a suitable family home or investment opportunity.
Therefore, we give this property 6 / 10. *Disclaimer: This is our option and does constitute a recommendation or financial advice. Do your own research. *
- Price
- 7
- Condition
- 7
- Location
- 6
- Land
- 7
- Bedrooms
- 3
- Bathrooms
- 2
- Sqft (est)
- 743.68
The heatmap indicates the level of crime in the area. The color of the heatmap indicates the crime severity and recency.
Metrics Year-on-Year
- Average area value
- 290,495.00 £Decreased by 11.63 %
- Est sale value
- 241,696.00 £Increased by 0.31 %
- Average area rental value
- 1,124.00 £/moIncreased by 4.46 %
- Est letting value
- 743.68 £/moUnchanged by 0.00 %
- Est rental Yield
- 4.64 %Increased by 18.07 %
- Crime Rate
- 18.00 %Unchanged by 0.00 %
Agent Activity
Naylor Powell created the listing.
Nearby Schools
| Name | Type | Ofsted | Distance |
|---|---|---|---|
| Robinswood Primary Academy | Academy Converter | Special Measures | 0.61 KM |
| The Link Children'S Centre | Children's Centre | 0.61 KM | |
| Heron Primary School | Foundation School | Good | 0.96 KM |
| Moat Primary School | Academy Sponsor Led | Requires improvement | 1.17 KM |
| Gloucester Academy | Academy Sponsor Led | 1.54 KM |
Images
Nearby Streets
| Name | Average Price | Average Sqft | Distance |
|---|---|---|---|
| Oaktree Gardens | £ 0 | 0 | 0.00 KM |
| Oaktree Gardens | £ 175,000 | 0 | 0.00 KM |
| Saint Peter's Road | £ 0 | 0 | 0.00 KM |
| Acorn Court | £ 0 | 0 | 0.00 KM |
| New Orchard Avenue | £ 0 | 0 | 0.00 KM |
Nearby Transport
| Name | NLC | TLC | Distance |
|---|---|---|---|
| Gloucester | 4760 | GCR | 4.57 KM |
Nearby Listings
| Address | Price | Type | Score | Distance |
|---|---|---|---|---|
| Haycroft Drive, Matson, Gloucester | £ 280,000 | BUY | 6 / 10 | 0.00 KM |
| Haycroft Drive, Matson, Gloucester, GL4 6XX | £ 360,000 | BUY | 6 / 10 | 0.04 KM |
| Willowcroft Close, Saint Leonards Park, Matson, Gloucester | £ 337,500 | BUY | 7 / 10 | 0.07 KM |
| Birchall Avenue, Matson, Gloucester, Gloucestershire, GL4 | £ 220,000 | BUY | Unknown | 0.17 KM |
| Ashcroft Close, St. Leonards Park, Gloucester, Gloucestershire, GL4 | £ 290,000 | BUY | 7 / 10 | 0.19 KM |
Nearby Properties
| Address | Price | Distance |
|---|---|---|
| 57 Haycroft Drive | £ 57,000 | 0.04 KM |
| 87 Haycroft Drive | £ 60,000 | 0.04 KM |
| 4 Haycroft Drive | £ 215,000 | 0.04 KM |
| 63 Haycroft Drive | £ 165,000 | 0.04 KM |
| 38 Haycroft Drive | £ 187,000 | 0.04 KM |