St. Pauls Close, Swanscombe, DA10
By Moxy Property Consultants
£ 300,000
Reviews
3 out of 5 stars
Moxy Property Consultants says ..
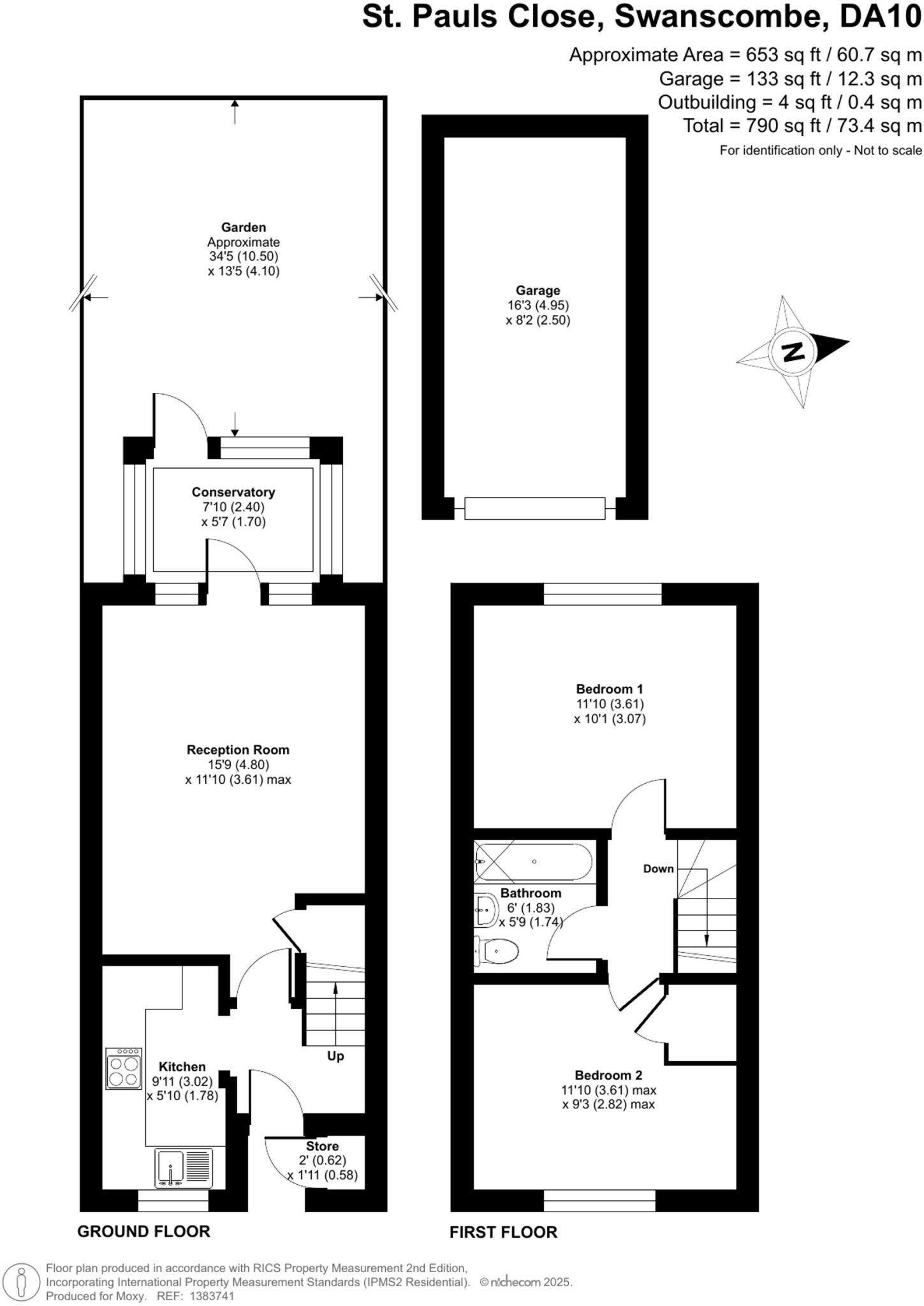
New to the market is this well-proportioned, two double bedroom, mid-terrace residence, peacefully positioned within a desirable cul-de-sac in St Pauls Close boasting no chain, garage and private drive.
Property Oracle says ..
This is a 2-bedroom terraced house in Swanscombe, Kent. The property offers 1,151.41 sqft of living space. While it benefits from a garden and proximity to local schools and transportation, the interior condition suggests that it requires some updating. The asking price of £300,000 appears fair given the size and location, but potential buyers should factor in renovation costs.
Therefore, we give this property 6 / 10. *Disclaimer: This is our option and does constitute a recommendation or financial advice. Do your own research. *
- Price
- 7
- Condition
- 5
- Location
- 7
- Land
- 6
- Bedrooms
- 2
- Bathrooms
- 1
- Sqft (est)
- 1,151.41
The heatmap indicates the level of crime in the area. The color of the heatmap indicates the crime severity and recency.
Metrics Year-on-Year
- Average area value
- 680,617.00 £Decreased by 16.07 %
- Est sale value
- 515,831.68 £Decreased by 14.18 %
- Average area rental value
- 1,914.00 £/moIncreased by 14.68 %
- Est letting value
- 1,151.41 £/moUnchanged by 0.00 %
- Est rental Yield
- 3.37 %Increased by 36.44 %
- Crime Rate
- 15.00 %Unchanged by 0.00 %
Agent Activity
Moxy Property Consultants created the listing.
Nearby Schools
| Name | Type | Ofsted | Distance |
|---|---|---|---|
| Manor Community Primary School | Academy Converter | Good | 0.27 KM |
| Swanscombe Children'S Centre | Children's Centre | 0.27 KM | |
| The Ebbsfleet Academy | Academy Sponsor Led | Good | 0.62 KM |
| Cherry Orchard Primary Academy | Academy Sponsor Led | 0.73 KM | |
| The Craylands School | Community School | Good | 0.80 KM |
Images
Nearby Streets
| Name | Average Price | Average Sqft | Distance |
|---|---|---|---|
| St Peter's Close | £ 0 | 0 | 0.00 KM |
| Rectory Road | £ 0 | 0 | 0.00 KM |
| Park Road | £ 0 | 0 | 0.00 KM |
| Ames Road | £ 451,662 | 0 | 0.00 KM |
| Vernon Road | £ 0 | 0 | 0.00 KM |
Nearby Transport
| Name | NLC | TLC | Distance |
|---|---|---|---|
| Swanscombe | 5156 | SWM | 0.86 KM |
| Ebbsfleet International | 5566 | EBD | 1.53 KM |
| Northfleet | 5120 | NFL | 1.96 KM |
| Greenhithe For Bluewater | 5138 | GNH | 3.12 KM |
| Grays | 7443 | GRY | 4.18 KM |
Nearby Listings
| Address | Price | Type | Score | Distance |
|---|---|---|---|---|
| St. Pauls Close, Swanscombe, DA10 | £ 300,000 | BUY | 6 / 10 | 0.00 KM |
| Betsham Road, Swanscombe, Kent, DA10 | £ 260,000 | BUY | 7 / 10 | 0.10 KM |
| Betsham Road, Swanscombe, Kent, DA10 | £ 325,000 | BUY | 6 / 10 | 0.10 KM |
| Swanscombe Street, Swanscombe, Kent | £ 525,000 | BUY | 7 / 10 | 0.10 KM |
| Betsham Road, SWANSCOMBE, Kent, DA10 | £ 550,000 | BUY | 7 / 10 | 0.11 KM |
Nearby Properties
| Address | Price | Distance |
|---|---|---|
| 9 St Pauls Close | £ 325,000 | 0.02 KM |
| 1 St Pauls Close | £ 156,000 | 0.02 KM |
| 5 St Pauls Close | £ 270,000 | 0.02 KM |
| 6 St Pauls Close | £ 217,000 | 0.02 KM |
| 10 St Pauls Close | £ 153,000 | 0.02 KM |