Rosebank Road, Hanwell, London
By Northfields
£ 599,950
Reviews
3 out of 5 stars
Northfields says ..
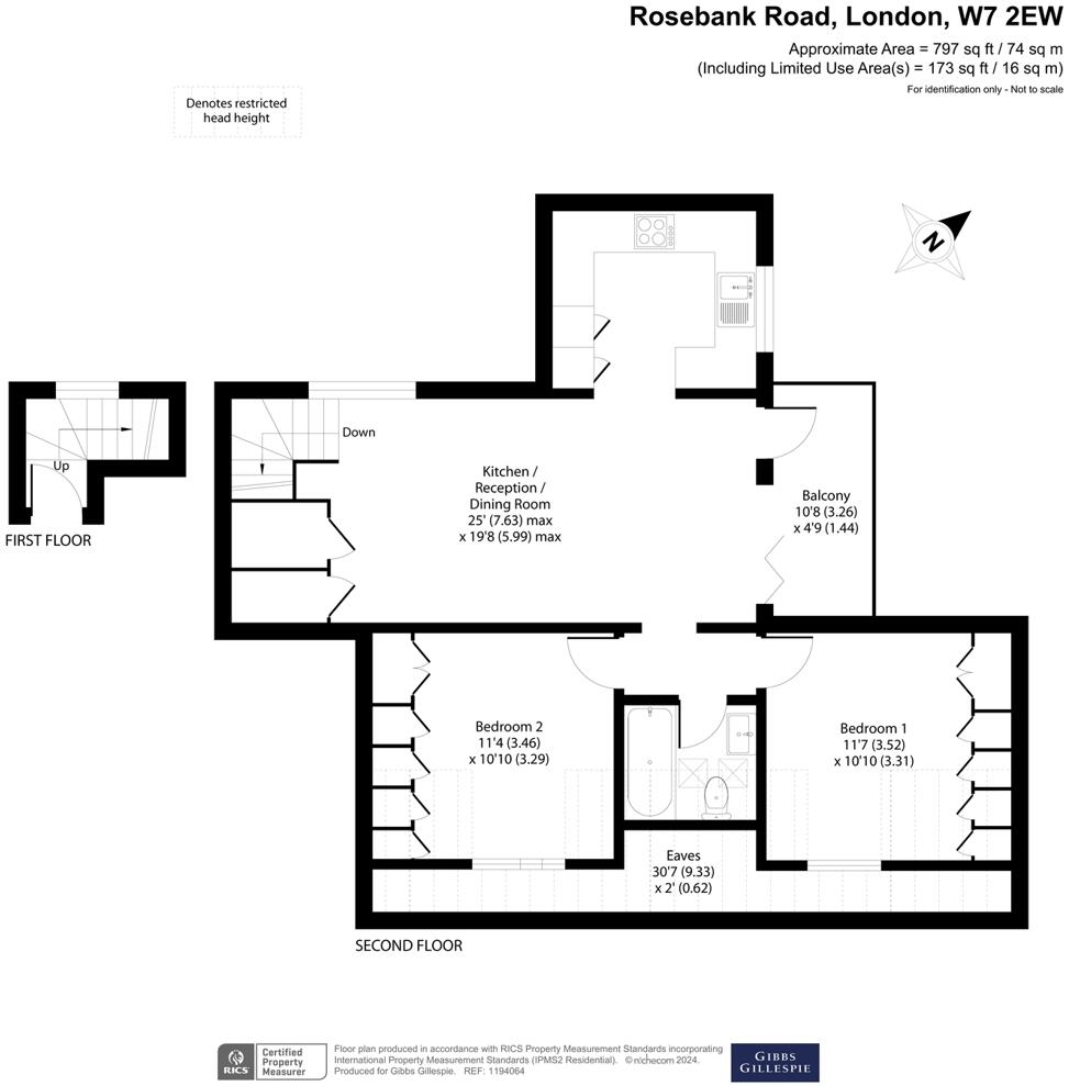
Stunning penthouse apartment with panoramic views of the city skyline. This contemporary 2-bedroom property boasts an open-plan living space with bi fold doors opening out to a private balcony and flooding the room with natural light. The modern kitchen is fully equipped with high-end...
Property Oracle says ..
This two-bedroom, two-bathroom apartment in Hanwell, London, presents as a modern and well-maintained property. The images showcase a recent renovation with a contemporary design, including a modern kitchen, stylish bathrooms, and good-quality flooring. The apartment benefits from a roof terrace, which provides a degree of outdoor space, although it is relatively small. The location on Rosebank Road in Hanwell offers easy access to Hanwell station, making it convenient for commuting to central London. The area also has several highly-rated primary schools within walking distance, making it a potentially desirable area for families. While the precise square footage isn’t provided, the asking price appears to be competitive in comparison to other properties in the immediate vicinity. Potential buyers should be aware of the limited outdoor space and confirm the exact square footage to perform a comprehensive market value analysis.
Therefore, we give this property 6 / 10. *Disclaimer: This is our option and does constitute a recommendation or financial advice. Do your own research. *
- Price
- 7
- Condition
- 8
- Location
- 7
- Land
- 2
- Bedrooms
- 2
- Bathrooms
- 2
The heatmap indicates the level of crime in the area. The color of the heatmap indicates the crime severity and recency.
Metrics Year-on-Year
- Average area value
- 526,250.00 £Increased by 3.90 %
- Average area rental value
- 1,876.00 £/moIncreased by 3.25 %
- Est rental Yield
- 4.28 %Decreased by 0.47 %
- Crime Rate
- 7.00 %Unchanged by 0.00 %
Agent Activity
Northfields created the listing.
Nearby Schools
| Name | Type | Ofsted | Distance |
|---|---|---|---|
| St Mark'S Primary School | Community School | Good | 0.40 KM |
| St Joseph'S Catholic Primary School | Voluntary Aided School | Good | 0.69 KM |
| St Ann'S School | Community Special School | Outstanding | 0.70 KM |
| Oaklands Primary School | Community School | Good | 0.76 KM |
| Ealing Hospital Children'S Centre | Children's Centre Linked Site | 0.96 KM |
Images
Nearby Streets
| Name | Average Price | Average Sqft | Distance |
|---|---|---|---|
| Murray Court | £ 388,000 | 0 | 0.00 KM |
| Middle Road | £ 0 | 0 | 0.00 KM |
| Boston Road | £ 0 | 0 | 0.00 KM |
| Belvedere Road | £ 0 | 0 | 0.00 KM |
| George Street Car Park | £ 400,000 | 0 | 0.00 KM |
Nearby Transport
| Name | NLC | TLC | Distance |
|---|---|---|---|
| Hanwell | 3191 | HAN | 0.83 KM |
| Drayton Green | 3099 | DRG | 1.62 KM |
| Castle Bar Park | 3098 | CBP | 2.19 KM |
| West Ealing | 3188 | WEA | 2.23 KM |
| Syon Lane | 5609 | SYL | 2.91 KM |
Nearby Listings
| Address | Price | Type | Score | Distance |
|---|---|---|---|---|
| Rosebank Road, Hanwell, London | £ 595,000 | BUY | 6 / 10 | 0.00 KM |
| Rosebank Road, Hanwell, London | £ 650,000 | BUY | 6 / 10 | 0.00 KM |
| Rosebank Road, Hanwell, London | £ 599,950 | BUY | 6 / 10 | 0.00 KM |
| Rosebank Road, Hanwell | £ 595,000 | BUY | 6 / 10 | 0.02 KM |
| Rosebank Road, Hanwell | £ 565,000 | BUY | 6 / 10 | 0.02 KM |
Nearby Properties
| Address | Price | Distance |
|---|---|---|
| 101 Rosebank Road | £ 300,000 | 0.02 KM |
| 25 Rosebank Road | £ 89,000 | 0.02 KM |
| 69 Rosebank Road | £ 278,000 | 0.02 KM |
| 33 Rosebank Road | £ 905,000 | 0.02 KM |
| 13 Rosebank Road | £ 610,000 | 0.02 KM |