Habitat says ..
A beautifully presented, EXTENDED town house with a generous living space perfect for a growing family and entertaining friends!
Property Oracle says ..
Therefore, we give this property 6 / 10. *Disclaimer: This is our option and does constitute a recommendation or financial advice. Do your own research. *
- Price
- 5
- Condition
- 8
- Location
- 7
- Land
- 7
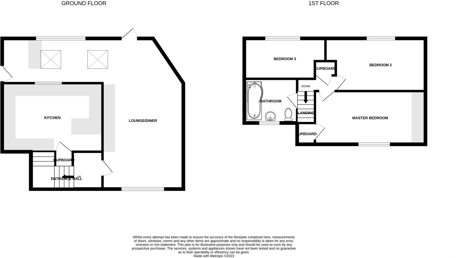
- Bedrooms
- 3
- Bathrooms
- 1
- Sqft (est)
- 877.00
The heatmap indicates the level of crime in the area. The color of the heatmap indicates the crime severity and recency.
Metrics Year-on-Year
- Average area value
- 196,030.00 £Decreased by 11.53 %
- Est sale value
- 231,528.00 £Increased by 15.79 %
- Average area rental value
- 806.00 £/moDecreased by 16.99 %
- Est letting value
- 877.00 £/moUnchanged by 0.00 %
- Est rental Yield
- 4.93 %Decreased by 6.27 %
- Crime Rate
- 0.00 %
from 221,581.00 £
from 199,956.00 £
from 971.00 £/mo
from 877.00 £/mo
from 5.26 %
from 0.00 %
Agent Activity
Habitat created the listing.
Nearby Schools
| Name | Type | Ofsted | Distance |
|---|---|---|---|
| Rushcroft Primary School | Community School | Good | 0.66 KM |
| The Crompton House Church Of England Academy | Academy Converter | Good | 0.71 KM |
| Beal Vale Primary School | Academy Converter | 0.74 KM | |
| St Mary'S Cofe Primary School High Crompton | Voluntary Aided School | Good | 0.98 KM |
| East Crompton St James Cofe Primary School | Voluntary Aided School | Good | 1.00 KM |
Images
Nearby Streets
| Name | Average Price | Average Sqft | Distance |
|---|---|---|---|
| Waveney Road | £ 117,000 | 0 | 0.00 KM |
| Sackville Close | £ 0 | 0 | 0.00 KM |
| Meadow Rise | £ 377,475 | 0 | 0.00 KM |
| Southdowns Close | £ 265,000 | 0 | 0.00 KM |
| The Orchards | £ 325,000 | 0 | 0.00 KM |
Nearby Transport
| Name | NLC | TLC | Distance |
|---|---|---|---|
| Smithy Bridge | 2660 | SMB | 5.54 KM |
| Rochdale | 2924 | RCD | 6.35 KM |
| Littleborough | 2661 | LTL | 6.54 KM |
| Castleton (Manchester) | 2919 | CAS | 8.44 KM |
| Mills Hill (Manchester) | 2920 | MIH | 8.52 KM |
Nearby Listings
| Address | Price | Type | Score | Distance |
|---|---|---|---|---|
| Derwent Drive, Oldham | £ 270,000 | BUY | 6 / 10 | 0.00 KM |
| Derwent Drive, Shaw, OL2 | £ 189,995 | BUY | 6 / 10 | 0.01 KM |
| Derwent Drive, Oldham, OL2 | £ 140,000 | BUY | 7 / 10 | 0.07 KM |
| Alwin Road, Oldham | £ 250,000 | BUY | 6 / 10 | 0.13 KM |
| 81 Trent Road, Shaw, Oldham, Lancashire, OL2 7YQ | £ 144,000 | BUY | 7 / 10 | 0.15 KM |
Nearby Properties
| Address | Price | Distance |
|---|---|---|
| 10 Derwent Drive | £ 167,500 | 0.01 KM |
| 24 Derwent Drive | £ 98,000 | 0.01 KM |
| 48 Derwent Drive | £ 950 | 0.01 KM |
| 34 Derwent Drive | £ 157,000 | 0.01 KM |
| 44 Derwent Drive | £ 105,000 | 0.01 KM |