Vicinity Homes says ..
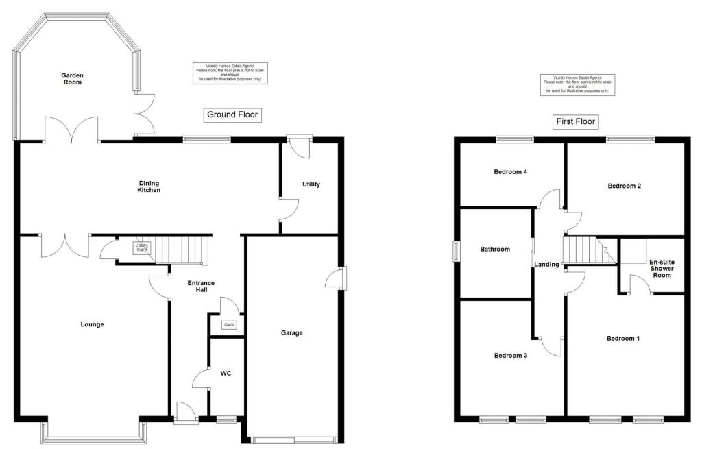
Vicinity Homes are delighted to offer to the market this spacious, bay fronted, detached family home situated in a cul-de-sac location on a sought after residential development to the South of Carlisle City Centre. The property is close to a range of local amenities, regular bus route, popular Pr...
Property Oracle says ..
This is a well-presented, modern detached property in a popular residential area of Carlisle. The house offers four bedrooms, two bathrooms, a modern kitchen, and a good-sized garden. The property is conveniently located for schools, transport links, and local amenities. The house benefits from a garage, patio, ensuite, and utility room. Overall, this property would make an ideal family home.
Therefore, we give this property 7 / 10. *Disclaimer: This is our option and does constitute a recommendation or financial advice. Do your own research. *
- Price
- 7
- Condition
- 8
- Location
- 7
- Land
- 7
- Bedrooms
- 4
- Bathrooms
- 2
- Sqft (est)
- 920.00
The heatmap indicates the level of crime in the area. The color of the heatmap indicates the crime severity and recency.
Metrics Year-on-Year
- Average area value
- 282,389.00 £Decreased by 5.89 %
- Est sale value
- 377,200.00 £Increased by 16.48 %
- Average area rental value
- 1,083.00 £/moDecreased by 11.16 %
- Est letting value
- 920.00 £/moUnchanged by 0.00 %
- Est rental Yield
- 4.60 %Decreased by 5.74 %
- Crime Rate
- 4.00 %Unchanged by 0.00 %
Agent Activity
Vicinity Homes created the listing.
Nearby Schools
| Name | Type | Ofsted | Distance |
|---|---|---|---|
| Pennine Way Primary School | Community School | Good | 0.58 KM |
| St John Henry Newman Catholic School | Voluntary Aided School | Requires improvement | 0.77 KM |
| Inglewood Junior School | Community School | Good | 1.17 KM |
| Inglewood Infant School | Community School | Requires improvement | 1.30 KM |
| Petteril Bank School | Community School | Good | 1.74 KM |
Images
Nearby Streets
| Name | Average Price | Average Sqft | Distance |
|---|---|---|---|
| Silverdale Road | £ 170,000 | 0 | 0.00 KM |
| Oak Lane | £ 0 | 0 | 0.00 KM |
| Pasture Walk | £ 0 | 0 | 0.00 KM |
| Pennine Gardens | £ 0 | 0 | 0.00 KM |
| Axon Drive | £ 282,500 | 0 | 0.00 KM |
Nearby Transport
| Name | NLC | TLC | Distance |
|---|---|---|---|
| Carlisle | 2118 | CAR | 4.72 KM |
| Wetheral | 7572 | WRL | 6.81 KM |
Nearby Listings
| Address | Price | Type | Score | Distance |
|---|---|---|---|---|
| Dalesman Drive, Carlisle | £ 280,000 | BUY | 7 / 10 | 0.00 KM |
| Dalesman Drive, Carlisle, CA1 | £ 290,000 | BUY | Unknown | 0.04 KM |
| Dalesman Drive, Carlisle, CA1 | £ 265,000 | BUY | 7 / 10 | 0.04 KM |
| Dalesman Drive, Carlisle | £ 295,000 | BUY | 6 / 10 | 0.04 KM |
| Watermans Walk, Carleton Grange, Carlisle, CA1 | £ 150,000 | BUY | 7 / 10 | 0.10 KM |
Nearby Properties
| Address | Price | Distance |
|---|---|---|
| 35 Dalesman Drive | £ 175,000 | 0.04 KM |
| 36 Dalesman Drive | £ 207,500 | 0.04 KM |
| 44 Dalesman Drive | £ 172,500 | 0.04 KM |
| 59 Dalesman Drive | £ 178,000 | 0.04 KM |
| 53 Dalesman Drive | £ 185,000 | 0.04 KM |