Denbigh Road, Cheltenham
By Steve Gooch Estate Agents
£ 135,000
Reviews
3 out of 5 stars
Steve Gooch Estate Agents says ..
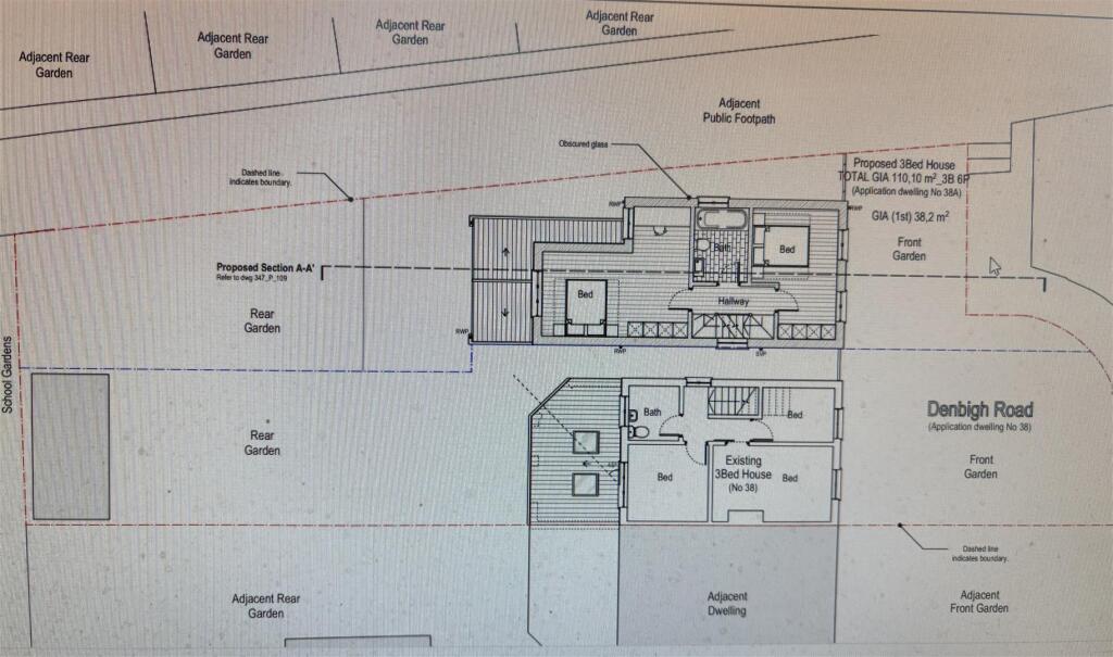
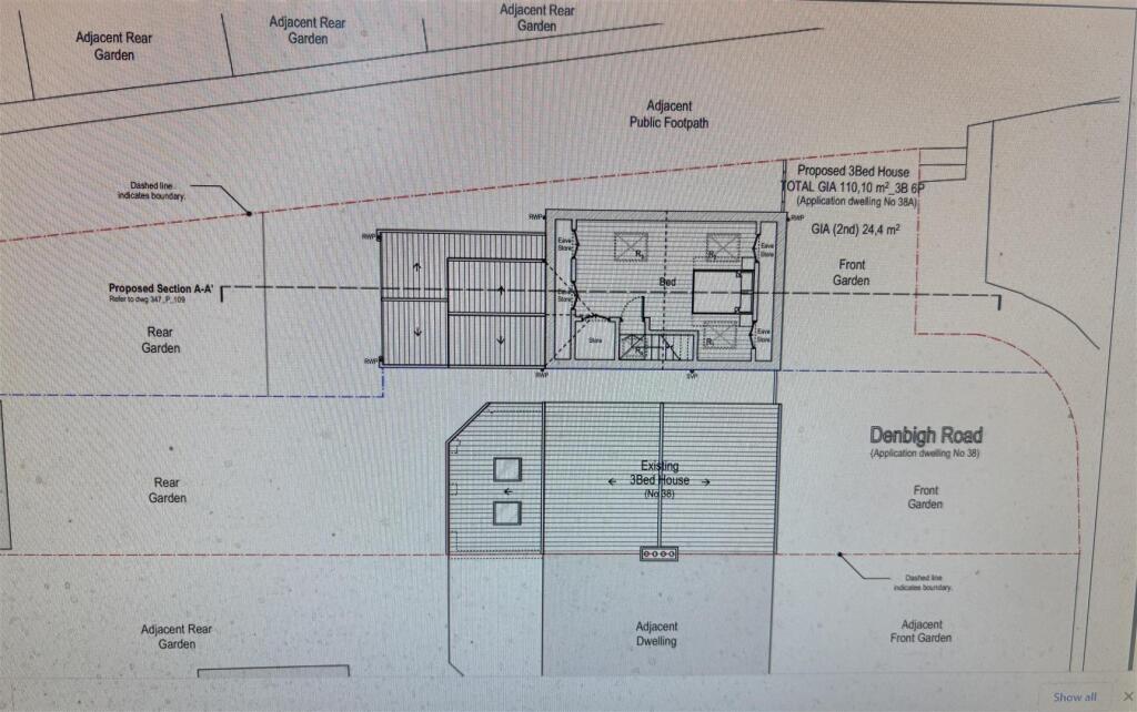
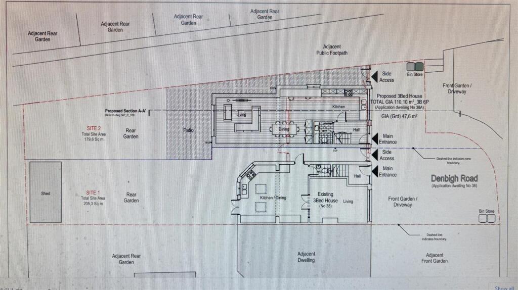
RARELY AVAILABLE BUILDING PLOT with PLANNING PERMISSION GRANTED for a THREE STOREY, THREE BEDROOM DETACHED HOUSE situated in this convenient and popular cul-de-sac location. Full Planning Permission has been granted for the construction of a 1200 square foot detached house. Onc...
Property Oracle says ..
This plot of land is located in the Up Hatherley area of Cheltenham, a town known for its excellent schools and convenient access to transportation links. The proximity to several highly-rated primary schools, such as Lakeside Primary School and Benhall Infant School, makes this location particularly attractive to families. The nearby Cheltenham Spa train station offers convenient access to other parts of the UK. While the plot itself is vacant, its size and potential for development should be considered. The average house price in the area is significantly higher than the list price of this plot, suggesting it could be a potentially good investment opportunity, depending on planning permissions and building costs.
Therefore, we give this property 7 / 10. *Disclaimer: This is our option and does constitute a recommendation or financial advice. Do your own research. *
- Price
- 7
- Condition
- 0
- Location
- 9
- Land
- 7
- Bedrooms
- 0
- Bathrooms
- 0
The heatmap indicates the level of crime in the area. The color of the heatmap indicates the crime severity and recency.
Metrics Year-on-Year
- Average area value
- 513,942.00 £Decreased by 2.28 %
- Average area rental value
- 2,061.00 £/moIncreased by 1.93 %
- Est rental Yield
- 4.81 %Increased by 4.34 %
- Crime Rate
- 2.00 %Unchanged by 0.00 %
Agent Activity
Steve Gooch Estate Agents created the listing.
Nearby Schools
| Name | Type | Ofsted | Distance |
|---|---|---|---|
| Lakeside Primary School | Community School | Good | 0.23 KM |
| Benhall Infant School | Community School | Outstanding | 0.66 KM |
| St Mark'S Church Of England Junior School | Voluntary Aided School | Good | 0.74 KM |
| Greatfield Park Primary School | Community School | Good | 0.94 KM |
| Up Hatherley Library Children'S Centre | Children's Centre | 1.09 KM |
Images
Nearby Streets
| Name | Average Price | Average Sqft | Distance |
|---|---|---|---|
| Nettleton Road | £ 0 | 0 | 0.00 KM |
| Caernarvon Close | £ 0 | 0 | 0.00 KM |
| Hatherley Road | £ 0 | 0 | 0.00 KM |
| Alma Road | £ 300,000 | 0 | 0.00 KM |
| Warren Close | £ 0 | 0 | 0.00 KM |
Nearby Transport
| Name | NLC | TLC | Distance |
|---|---|---|---|
| Cheltenham Spa | 4731 | CNM | 1.95 KM |
Nearby Listings
| Address | Price | Type | Score | Distance |
|---|---|---|---|---|
| Denbigh Road, Cheltenham | £ 135,000 | BUY | 7 / 10 | 0.00 KM |
| Denbigh Road, Cheltenham, Gloucestershire, GL51 | £ 450,000 | BUY | 6 / 10 | 0.07 KM |
| Ullswater Road, Hatherley, Cheltenham | £ 294,950 | BUY | 6 / 10 | 0.11 KM |
| Radnor Road, Hatherley, Cheltenham, GL51 | £ 375,000 | BUY | 6 / 10 | 0.18 KM |
| Keswick Road, Cheltenham | £ 310,000 | BUY | 7 / 10 | 0.26 KM |
Nearby Properties
| Address | Price | Distance |
|---|---|---|
| 19 Hazebrouck Close | £ 172,500 | 0.04 KM |
| 9 Hazebrouck Close | £ 190,000 | 0.04 KM |
| 15 Hazebrouck Close | £ 277,500 | 0.04 KM |
| 18 Hazebrouck Close | £ 343,000 | 0.04 KM |
| 16 Hazebrouck Close | £ 170,000 | 0.04 KM |