BI
Frances Street, Fulford, York YO10 4DP
By Bishops Personal Agents
£ 279,950
Reviews
3 out of 5 stars
Bishops Personal Agents says ..
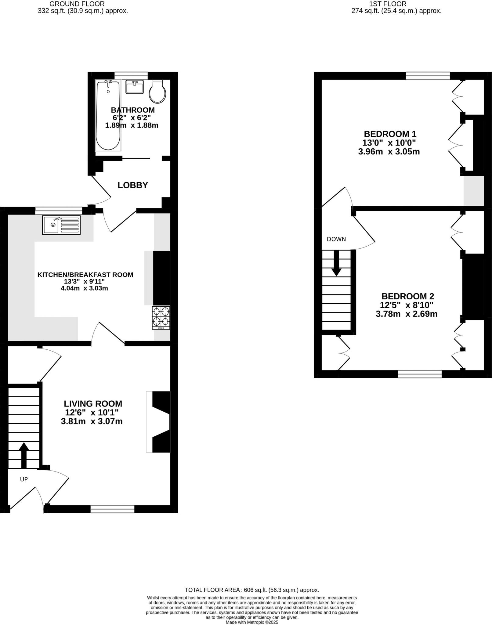
Bishops Personal Agents offer for sale, a fantastic opportunity to purchase a two-bedroom mid terraced house on Frances Street, situated in one of Yorks most sought-after locations just off Fulford Road, within easy walking distance to the York City Centre and local amenities. This property is su...
Property Oracle says ..
Therefore, we give this property 6 / 10. *Disclaimer: This is our option and does constitute a recommendation or financial advice. Do your own research. *
- Price
- 7
- Condition
- 5
- Location
- 7
- Land
- 6
- Bedrooms
- 2
- Bathrooms
- 1
- Sqft (est)
- 606.00
The heatmap indicates the level of crime in the area. The color of the heatmap indicates the crime severity and recency.
Metrics Year-on-Year
- Average area value
- 391,421.00 £Increased by 20.41 %
- Est sale value
- 242,400.00 £Decreased by 8.05 %
- Average area rental value
- 1,243.00 £/moDecreased by 1.97 %
- Est letting value
- 606.00 £/moUnchanged by 0.00 %
- Est rental Yield
- 3.81 %Decreased by 18.59 %
- Crime Rate
- 3.00 %Unchanged by 0.00 %
from 325,064.00 £
from 263,610.00 £
from 1,268.00 £/mo
from 606.00 £/mo
from 4.68 %
from 3.00 %
Agent Activity
Bishops Personal Agents created the listing.
Nearby Schools
| Name | Type | Ofsted | Distance |
|---|---|---|---|
| Danesgate Community | Pupil Referral Unit | Good | 0.38 KM |
| York Steiner School | Other Independent School | Inadequate | 0.48 KM |
| St George'S Catholic Primary School - A Catholic Voluntary Academy | Academy Converter | 0.56 KM | |
| Fishergate Primary School | Community School | Good | 0.59 KM |
| Knavesmire Children'S Centre | Children's Centre | 1.34 KM |
Images
Nearby Streets
| Name | Average Price | Average Sqft | Distance |
|---|---|---|---|
| Dower Court | £ 0 | 0 | 0.00 KM |
| St Ann's Court | £ 0 | 0 | 0.00 KM |
| Garden Court | £ 0 | 0 | 0.00 KM |
| Bishopthorpegate Street | £ 230,000 | 0 | 0.00 KM |
| Bishopgate Street | £ 0 | 0 | 0.00 KM |
Nearby Transport
| Name | NLC | TLC | Distance |
|---|---|---|---|
| York | 8263 | YRK | 2.13 KM |
| Poppleton | 8254 | POP | 8.50 KM |
Nearby Listings
| Address | Price | Type | Score | Distance |
|---|---|---|---|---|
| Frances Street, Fulford, York YO10 4DP | £ 279,950 | BUY | 6 / 10 | 0.00 KM |
| Frances Street, Fulford, York YO10 4DP | £ 299,950 | BUY | 6 / 10 | 0.00 KM |
| Frances Street, Fulford | £ 290,000 | BUY | 6 / 10 | 0.01 KM |
| Frances Street, York | £ 335,000 | BUY | Unknown | 0.05 KM |
| Ambrose Street, York, YO10 4DR | £ 300,000 | BUY | 7 / 10 | 0.05 KM |
Nearby Properties
| Address | Price | Distance |
|---|---|---|
| 66 Frances Street | £ 255,000 | 0.01 KM |
| 75 Frances Street | £ 305,000 | 0.01 KM |
| 82 Frances Street | £ 220,000 | 0.01 KM |
| 52 Frances Street | £ 196,000 | 0.01 KM |
| 55 Frances Street | £ 163,500 | 0.01 KM |