Kingswood says ..
ATTENTION FIRST TIME BUYERS AND INVESTORS!!! This one bedroom semi detached house is a great first step on the property ladder or a brilliant buy to let investment. With excellent transport links including bus routes, shops and amenities on the doorstep, the location is ideal. Call to arrange a v...
Property Oracle says ..
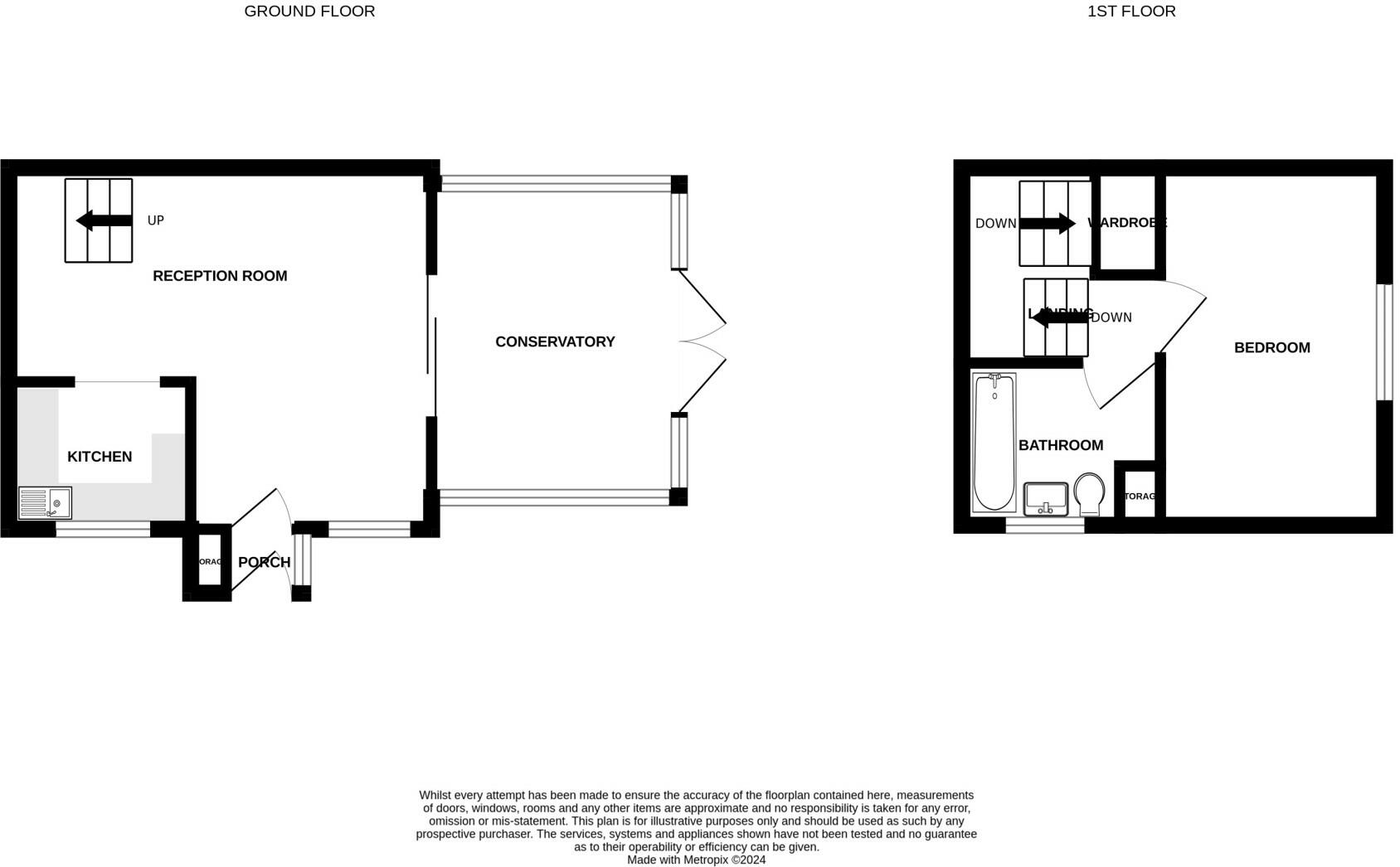
This one-bedroom semi-detached house in Preston, Lancashire, presents a mixed bag of features. Its location is a positive aspect, with relatively easy access to schools (good Ofsted ratings noted) and local amenities, enhancing its desirability for both first-time buyers and rental prospects. The property’s proximity to bus routes also adds to its convenience. However, the images reveal that it requires significant modernisation. The interior finishes are dated and there are clear signs of work needed including damaged walls and outdated fixtures in the living area, kitchen, and bathroom. The lack of outdoor space is a significant drawback, as there is practically no garden, just a small paved patio. For investors, the potential rental yield needs to be carefully assessed considering the maintenance needed. Ultimately, this property presents an opportunity for a buyer willing to invest in renovations to modernise and increase its value, and may be attractive to investors seeking a potential rental opportunity in a convenient location. Further investigation of precise square footage would be needed to make a definitive value analysis.
Therefore, we give this property 4 / 10. *Disclaimer: This is our option and does constitute a recommendation or financial advice. Do your own research. *
- Price
- 7
- Condition
- 4
- Location
- 7
- Land
- 1
- Bedrooms
- 1
- Bathrooms
- 1
- Sqft (est)
- 1,000.00
The heatmap indicates the level of crime in the area. The color of the heatmap indicates the crime severity and recency.
Metrics Year-on-Year
- Average area value
- 334,099.00 £Decreased by 40.42 %
- Est sale value
- 341,000.00 £Decreased by 43.07 %
- Average area rental value
- 980.00 £/moIncreased by 0.82 %
- Est letting value
- 1,000.00 £/moUnchanged by 0.00 %
- Est rental Yield
- 3.52 %Increased by 69.23 %
- Crime Rate
- 4.00 %Unchanged by 0.00 %
Agent Activity
Kingswood marked this listing as sold.
Kingswood created the listing.
Nearby Schools
| Name | Type | Ofsted | Distance |
|---|---|---|---|
| Pool House Community Primary School | Community School | Good | 0.91 KM |
| Ingol Community Primary School | Community School | Good | 0.99 KM |
| Holy Family Catholic Primary School, Ingol, Preston | Voluntary Aided School | Good | 1.05 KM |
| Our Lady'S Catholic High School | Voluntary Aided School | Outstanding | 1.26 KM |
| Harris Primary School | Community School | Good | 1.26 KM |
Images
Nearby Streets
| Name | Average Price | Average Sqft | Distance |
|---|---|---|---|
| Wedge Close | £ 0 | 0 | 0.00 KM |
| Wood Drive | £ 0 | 0 | 0.00 KM |
| Sunningdale Street | £ 224,475 | 0 | 0.00 KM |
| Austin Crescent | £ 170,000 | 0 | 0.00 KM |
| St Theresa's Drive | £ 240,000 | 0 | 0.00 KM |
Nearby Transport
| Name | NLC | TLC | Distance |
|---|---|---|---|
| Preston (Lancs) | 2753 | PRE | 4.30 KM |
| Lostock Hall | 2689 | LOH | 8.51 KM |
| Salwick | 2673 | SLW | 8.87 KM |
Nearby Listings
| Address | Price | Type | Score | Distance |
|---|---|---|---|---|
| Greenfield Way, Preston, PR2 | £ 90,000 | BUY | 4 / 10 | 0.00 KM |
| Mayfield Avenue, Ingol, PR2 | £ 300,000 | BUY | 6 / 10 | 0.06 KM |
| Greenfield Way, Ingol, Preston, Lancashire, PR2 | £ 50,000 | BUY | 6 / 10 | 0.07 KM |
| Higher Greenfield, Ingol, Preston | £ 312,500 | BUY | 7 / 10 | 0.10 KM |
| Mayfield Avenue, Preston, PR2 3 | £ 385,000 | BUY | 7 / 10 | 0.11 KM |
Nearby Properties
| Address | Price | Distance |
|---|---|---|
| 50 Greenfield Way | £ 77,000 | 0.03 KM |
| 76 Greenfield Way | £ 84,000 | 0.03 KM |
| 64 Greenfield Way | £ 100,000 | 0.03 KM |
| 60 Greenfield Way | £ 96,750 | 0.03 KM |
| 88 Greenfield Way | £ 51,000 | 0.03 KM |