Barton Street, Macclesfield
By Gascoigne Halman
£ 189,950
Reviews
3 out of 5 stars
Gascoigne Halman says ..
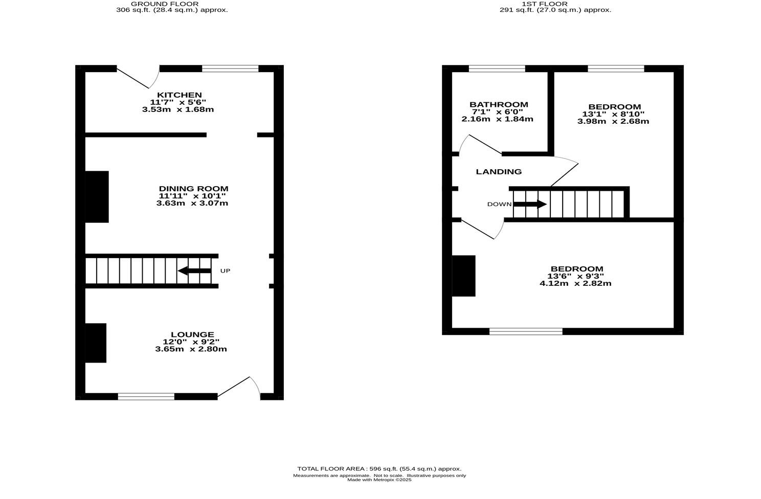
A well presented two double bedroom mid terrace house with larger than average first floor accommodation. Two Reception rooms, fitted kitchen, decorative private garden including a brick and timber shed, great location within walking distance of the town centre.
Property Oracle says ..
This is a two-bedroom terraced house on Barton Street in Macclesfield Central. The property benefits from a modern kitchen and bathroom, but the bedrooms could use some updating. It has a rear garden with a shed. The location is convenient, with schools and transport links nearby. The asking price of £189,950 appears reasonable in the context of the local market and the property’s condition. The property retains some of its traditional features.
Therefore, we give this property 6 / 10. *Disclaimer: This is our option and does constitute a recommendation or financial advice. Do your own research. *
- Price
- 7
- Condition
- 7
- Location
- 7
- Land
- 6
- Bedrooms
- 2
- Bathrooms
- 1
- Sqft (est)
- 596.32
The heatmap indicates the level of crime in the area. The color of the heatmap indicates the crime severity and recency.
Metrics Year-on-Year
- Average area value
- 236,999.00 £Decreased by 1.19 %
- Est sale value
- 163,988.00 £Increased by 4.96 %
- Average area rental value
- 1,057.00 £/moIncreased by 6.66 %
- Est letting value
- 596.32 £/moUnchanged by 0.00 %
- Est rental Yield
- 5.35 %Increased by 7.86 %
- Crime Rate
- 8.00 %Unchanged by 0.00 %
Agent Activity
Gascoigne Halman created the listing.
Nearby Schools
| Name | Type | Ofsted | Distance |
|---|---|---|---|
| Parkroyal Community School | Academy Converter | Good | 0.50 KM |
| Christ The King Catholic And Church Of England Primary School | Academy Sponsor Led | 0.65 KM | |
| The Macclesfield Academy | Academy Sponsor Led | Requires improvement | 0.71 KM |
| Macclesfield College | Further Education | Good | 0.78 KM |
| The Fermain Academy | Free Schools Alternative Provision | Outstanding | 0.85 KM |
Images
Nearby Streets
| Name | Average Price | Average Sqft | Distance |
|---|---|---|---|
| Park Vale Road | £ 0 | 0 | 0.00 KM |
| Saint John's Road | £ 0 | 0 | 0.00 KM |
| Holland Street | £ 0 | 0 | 0.00 KM |
| Woodside Drive | £ 0 | 0 | 0.00 KM |
| Armoury Court | £ 182,467 | 0 | 0.00 KM |
Nearby Transport
| Name | NLC | TLC | Distance |
|---|---|---|---|
| Macclesfield | 2871 | MAC | 1.24 KM |
| Prestbury | 2875 | PRB | 4.67 KM |
| Adlington (Cheshire) | 2939 | ADC | 7.33 KM |
Nearby Listings
| Address | Price | Type | Score | Distance |
|---|---|---|---|---|
| Barton Street, Macclesfield | £ 189,950 | BUY | 6 / 10 | 0.00 KM |
| Grovewood Mews, Macclesfield, SK11 6AB | £ 150,000 | BUY | Unknown | 0.07 KM |
| Park Lane, Macclesfield | £ 550,000 | BUY | 6 / 10 | 0.07 KM |
| South Park Road, Macclesfield | £ 185,000 | BUY | 7 / 10 | 0.10 KM |
| South Park Road, Macclesfield, Cheshire | £ 170,000 | BUY | Unknown | 0.11 KM |
Nearby Properties
| Address | Price | Distance |
|---|---|---|
| 69 Barton Street | £ 170,000 | 0.01 KM |
| 55 Barton Street | £ 86,500 | 0.01 KM |
| 75 Barton Street | £ 100,000 | 0.01 KM |
| 77 Barton Street | £ 125,000 | 0.01 KM |
| 49 Barton Street | £ 122,000 | 0.01 KM |