Price and Co says ..
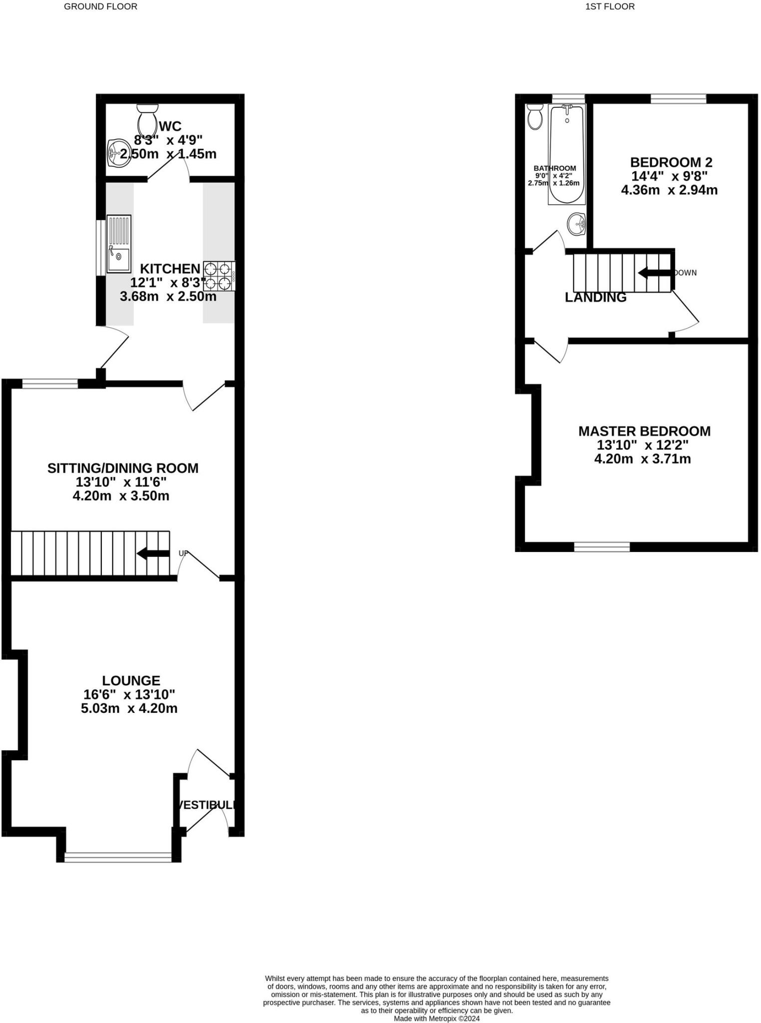
Welcoming to the sales market 126 Arnold Street, this impressive and well maintained two bedroom terraced property is a real credit to its current owners. A perfect opportunity for first time buyers or buy to let investors that is offered with No Onward Chain. This residence offers versatile spac...
Property Oracle says ..
This is a two-bedroom terraced property located on Arnold Street, Bolton. The property is listed with Price and Co for £160,000. It features two bathrooms and has a square footage of 866.67 sqft. The property is situated in a residential area with nearby schools and transportation links. The interior appears to be in good condition, with a modern kitchen and bathroom. While there isn’t significant land, the price seems reasonable compared to other properties in the area. Overall, this property presents a good opportunity for first-time buyers or investors.
Therefore, we give this property 6 / 10. *Disclaimer: This is our option and does constitute a recommendation or financial advice. Do your own research. *
- Price
- 8
- Condition
- 7
- Location
- 6
- Land
- 3
- Bedrooms
- 2
- Bathrooms
- 2
- Sqft (est)
- 866.67
The heatmap indicates the level of crime in the area. The color of the heatmap indicates the crime severity and recency.
Metrics Year-on-Year
- Average area value
- 196,030.00 £Decreased by 11.53 %
- Est sale value
- 228,800.88 £Increased by 15.79 %
- Average area rental value
- 806.00 £/moDecreased by 16.99 %
- Est letting value
- 866.67 £/moUnchanged by 0.00 %
- Est rental Yield
- 4.93 %Decreased by 6.27 %
- Crime Rate
- 0.00 %
Agent Activity
Price and Co created the listing.
Nearby Schools
| Name | Type | Ofsted | Distance |
|---|---|---|---|
| St Joseph'S Rc Primary School, Halliwell, Bolton | Voluntary Aided School | Good | 0.21 KM |
| Oxford Grove Primary School | Community School | Good | 0.31 KM |
| Al-Huda Primary School | Other Independent School | Good | 0.33 KM |
| St Thomas C Of E Primary School, Halliwell | Voluntary Aided School | Good | 0.62 KM |
| Oxford Grove Start Well Children'S Centre | Children's Centre | 0.66 KM |
Images
Nearby Streets
| Name | Average Price | Average Sqft | Distance |
|---|---|---|---|
| Holy Harbour Street | £ 145,000 | 0 | 0.00 KM |
| Oscar Street | £ 0 | 0 | 0.00 KM |
| Ryder Street | £ 100,000 | 0 | 0.00 KM |
| Back Canada Street South | £ 0 | 0 | 0.00 KM |
| Back Huxley Street | £ 0 | 0 | 0.00 KM |
Nearby Transport
| Name | NLC | TLC | Distance |
|---|---|---|---|
| Bolton | 2599 | BON | 3.22 KM |
| Hall-I'-Th'-Wood | 2572 | HID | 3.96 KM |
| Bromley Cross (Lancs) | 2697 | BMC | 4.82 KM |
| Lostock | 2598 | LOT | 5.49 KM |
| Moses Gate | 2606 | MSS | 6.61 KM |
Nearby Listings
| Address | Price | Type | Score | Distance |
|---|---|---|---|---|
| Arnold Street, Bolton, BL1 | £ 160,000 | BUY | 6 / 10 | 0.00 KM |
| Elgin Street, Bolton, Greater Manchester, BL1 | £ 160,000 | BUY | Unknown | 0.07 KM |
| Elgin Street, BOLTON, Lancashire, BL1 | £ 160,000 | BUY | 5 / 10 | 0.07 KM |
| Arnold Street, Smithills | £ 169,950 | BUY | 5 / 10 | 0.08 KM |
| Arnold Street, Bolton, BL1 | £ 110,000 | BUY | 4 / 10 | 0.10 KM |
Nearby Properties
| Address | Price | Distance |
|---|---|---|
| 79 Arnold Street | £ 75,000 | 0.07 KM |
| 84 Arnold Street | £ 120,000 | 0.07 KM |
| 83 Arnold Street | £ 60,500 | 0.07 KM |
| 94 Arnold Street | £ 85,000 | 0.07 KM |
| 124 Arnold Street | £ 68,000 | 0.07 KM |