Coach House Lane, St. George, Bristol
By The Property Centre
£ 170,000
Reviews
2 out of 5 stars
The Property Centre says ..
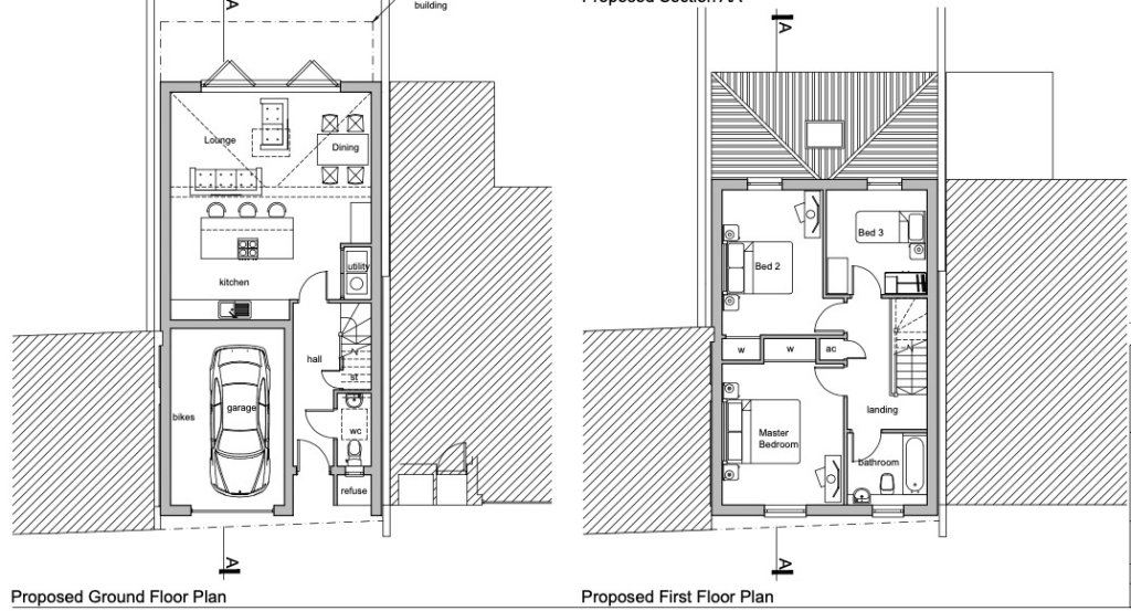
An opportunity to purchase a parcel of land, currently occupied by a large garage/workshop (approx. 906 sq ft) with lapsed planning for demolition and the erection of a 3 bedroom house with garage and rear garden.
Property Oracle says ..
This property, located on Coach House Lane in St. George, Bristol, is listed as a plot with a current structure that requires significant renovation. The property features 3 bedrooms and 2 bathrooms. While the square footage is not specified, the plot size is adequate. The location offers access to local amenities and transportation, but some nearby schools require improvement. The property’s condition is poor, requiring extensive work. However, the list price of £170,000 reflects this, presenting an opportunity for buyers willing to undertake a renovation project. The land requires clearing and landscaping. The property is listed by The Property Centre. Nearby streets include Summerhill Road, Richmond Road, and Beaufort Road. Lawrence Hill train station is located 2.26 KM away.
Therefore, we give this property 5 / 10. *Disclaimer: This is our option and does constitute a recommendation or financial advice. Do your own research. *
- Price
- 9
- Condition
- 2
- Location
- 6
- Land
- 5
- Bedrooms
- 3
- Bathrooms
- 2
The heatmap indicates the level of crime in the area. The color of the heatmap indicates the crime severity and recency.
Metrics Year-on-Year
- Average area value
- 590,893.00 £Increased by 22.51 %
- Average area rental value
- 2,120.00 £/moIncreased by 44.51 %
- Est rental Yield
- 4.31 %Increased by 18.08 %
- Crime Rate
- 10.00 %Unchanged by 0.00 %
Agent Activity
The Property Centre created the listing.
Nearby Schools
| Name | Type | Ofsted | Distance |
|---|---|---|---|
| Summerhill Infant School | Community School | Good | 0.32 KM |
| Summerhill Academy | Academy Converter | Requires improvement | 0.33 KM |
| St Patrick'S Catholic Primary School | Academy Converter | Outstanding | 0.96 KM |
| The Kingfisher School | Academy Sponsor Led | Requires improvement | 1.09 KM |
| St Anne'S Park Children'S Centre | Children's Centre Linked Site | 1.09 KM |
Images
Nearby Streets
| Name | Average Price | Average Sqft | Distance |
|---|---|---|---|
| Summerhill Road | £ 0 | 0 | 0.00 KM |
| Richmond Road | £ 428,750 | 0 | 0.00 KM |
| Beaufort Road | £ 438,000 | 0 | 0.00 KM |
| Whitehall Avenue | £ 318,315 | 0 | 0.00 KM |
| Wyatts View | £ 220,000 | 0 | 0.00 KM |
Nearby Transport
| Name | NLC | TLC | Distance |
|---|---|---|---|
| Lawrence Hill | 3225 | LWH | 2.26 KM |
| Stapleton Road | 3250 | SRD | 2.60 KM |
| Bristol Temple Meads | 3231 | BRI | 4.28 KM |
| Montpelier | 3203 | MTP | 5.03 KM |
| Filton Abbey Wood | 3235 | FIT | 5.42 KM |
Nearby Listings
| Address | Price | Type | Score | Distance |
|---|---|---|---|---|
| Coach House Lane, St. George, Bristol | £ 170,000 | BUY | 5 / 10 | 0.00 KM |
| Coach House Lane, St George | £ 525,000 | BUY | 8 / 10 | 0.02 KM |
| Coach House Lane, St. George, Bristol | £ 485,000 | BUY | 7 / 10 | 0.05 KM |
| Beaconsfield Road, St George | £ 310,000 | BUY | 6 / 10 | 0.06 KM |
| Beaconsfield Road, Bristol | £ 310,000 | BUY | 7 / 10 | 0.06 KM |
Nearby Properties
| Address | Price | Distance |
|---|---|---|
| 2 Coach House Lane | £ 268,450 | 0.01 KM |
| 13 Rose Road | £ 278,000 | 0.07 KM |
| 4 Rose Road | £ 410,000 | 0.07 KM |
| 10 Rose Road | £ 175,551 | 0.07 KM |
| 12 Rose Road | £ 230,000 | 0.07 KM |