Romans says ..
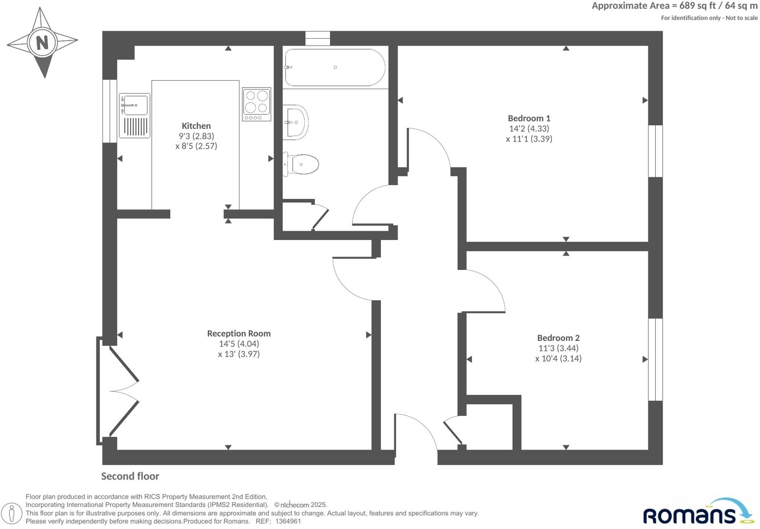
*** NO ONWARD CHAIN *** Romans are delighted to present this spacious two bedroom top floor apartment benefitting from a allocated parking. The property opens into a welcoming hallway that leads to a bright and spacious reception room measuring 14’5. The separate 9"3 ki...
Property Oracle says ..
This is a two-bedroom apartment in Bracknell, Berkshire. It is in good condition and benefits from a modern kitchen and bathroom. The property is located close to local schools and Bracknell train station. The asking price of £230,000 seems reasonable given the location, condition, and size of the property. The apartment is 539.50 sqft.
Therefore, we give this property 6 / 10. *Disclaimer: This is our option and does constitute a recommendation or financial advice. Do your own research. *
- Price
- 7
- Condition
- 8
- Location
- 7
- Land
- 3
- Bedrooms
- 2
- Bathrooms
- 1
- Sqft (est)
- 539.50
The heatmap indicates the level of crime in the area. The color of the heatmap indicates the crime severity and recency.
Metrics Year-on-Year
- Average area value
- 333,000.00 £Decreased by 4.86 %
- Est sale value
- 231,445.50 £Increased by 30.00 %
- Average area rental value
- 1,472.00 £/moIncreased by 12.45 %
- Est letting value
- 539.50 £/moUnchanged by 0.00 %
- Est rental Yield
- 5.30 %Increased by 18.04 %
- Crime Rate
- 12.00 %Unchanged by 0.00 %
Agent Activity
Romans created the listing.
Nearby Schools
| Name | Type | Ofsted | Distance |
|---|---|---|---|
| St Joseph'S Catholic Primary School, Bracknell | Voluntary Aided School | Outstanding | 0.38 KM |
| Garth Hill College | Community School | Good | 0.56 KM |
| Ranelagh School | Academy Converter | Outstanding | 0.76 KM |
| Sandy Lane Primary School | Community School | Good | 0.92 KM |
| Holly Spring Primary School | Community School | Good | 1.09 KM |
Images
Nearby Streets
| Name | Average Price | Average Sqft | Distance |
|---|---|---|---|
| Park Road | £ 0 | 0 | 0.00 KM |
| Willow Drive | £ 0 | 0 | 0.00 KM |
| Weather Way | £ 0 | 0 | 0.00 KM |
| Kenilworth Avenue | £ 550,000 | 0 | 0.00 KM |
| Dashwood Close | £ 585,000 | 0 | 0.00 KM |
Nearby Transport
| Name | NLC | TLC | Distance |
|---|---|---|---|
| Bracknell | 5693 | BCE | 1.08 KM |
| Martins Heron | 5692 | MAO | 2.29 KM |
| Ascot (Berks) | 5666 | ACT | 7.50 KM |
| Bagshot | 5681 | BAG | 8.37 KM |
| Camberley | 5682 | CAM | 8.98 KM |
Nearby Listings
| Address | Price | Type | Score | Distance |
|---|---|---|---|---|
| Kelvin Gate, Bracknell, Berkshire | £ 230,000 | BUY | 6 / 10 | 0.00 KM |
| Kelvin Gate, Bracknell, Berkshire, RG12 2TG | £ 180,000 | BUY | 6 / 10 | 0.00 KM |
| Kelvin Gate, Bracknell, Berkshire, RG12 | £ 200,000 | BUY | 6 / 10 | 0.02 KM |
| Kelvin Gate, Bracknell, Berkshire, RG12 | £ 200,000 | BUY | 5 / 10 | 0.02 KM |
| Kelvin Gate, Bracknell, Berkshire | £ 170,000 | BUY | Unknown | 0.02 KM |
Nearby Properties
| Address | Price | Distance |
|---|---|---|
| 46 Kelvin Gate | £ 229,000 | 0.01 KM |
| 47 Kelvin Gate | £ 212,000 | 0.01 KM |
| 24 Kelvin Gate | £ 162,000 | 0.01 KM |
| 26 Kelvin Gate | £ 181,500 | 0.01 KM |
| 52 Kelvin Gate | £ 222,500 | 0.01 KM |