Whitehill Road, Gravesend, DA12
By The Agency UK
£ 375,000
Reviews
3 out of 5 stars
The Agency UK says ..
This charming Victorian home suits first time buyers, investors, or small families seeking space and character near Gravesend town centre and great schools. With modern interiors, a sunny garden, and potential parking, it’s ready to enjoy
Property Oracle says ..
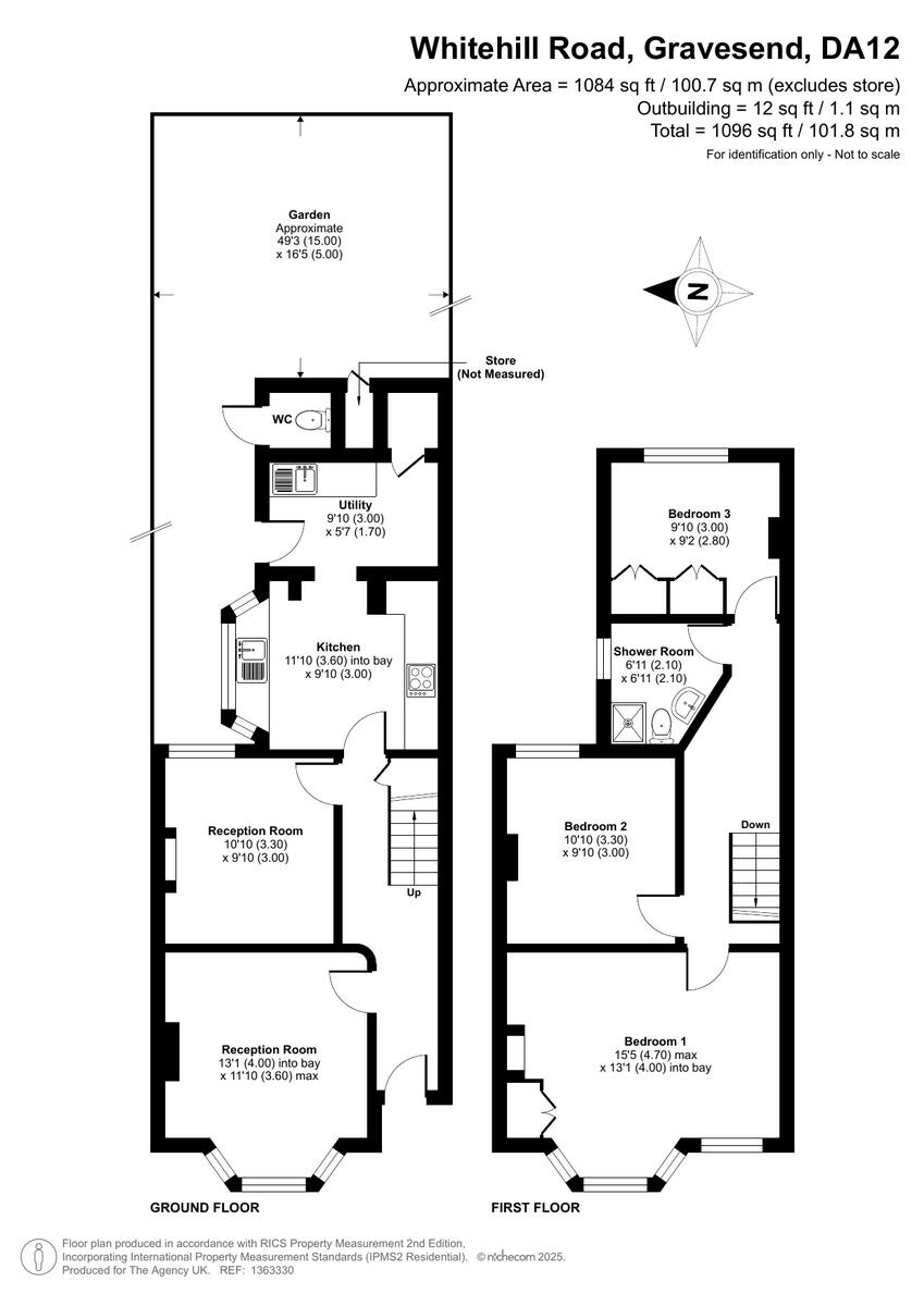
This is a three-bedroom end-of-terrace house located on Whitehill Road in Gravesend. The property is situated in a central locality and is within walking distance of Whitehill Primary School. Gravesend train station is 1.77 km away. The property has a garden. While the property appears to be in fair condition, it would benefit from some modernisation. The asking price of £375,000 seems reasonable given the location, size, and condition of the property.
Therefore, we give this property 6 / 10. *Disclaimer: This is our option and does constitute a recommendation or financial advice. Do your own research. *
- Price
- 7
- Condition
- 5
- Location
- 7
- Land
- 7
- Bedrooms
- 3
- Bathrooms
- 1
- Sqft (est)
- 1,100.13
The heatmap indicates the level of crime in the area. The color of the heatmap indicates the crime severity and recency.
Metrics Year-on-Year
- Average area value
- 487,124.00 £Increased by 94.35 %
- Est sale value
- 677,680.08 £Increased by 112.41 %
- Average area rental value
- 1,220.00 £/moIncreased by 6.46 %
- Est letting value
- 1,100.13 £/moUnchanged by 0.00 %
- Est rental Yield
- 3.01 %Decreased by 45.17 %
- Crime Rate
- 4.00 %Unchanged by 0.00 %
Agent Activity
The Agency UK created the listing.
Nearby Schools
| Name | Type | Ofsted | Distance |
|---|---|---|---|
| Whitehill Primary School | Academy Converter | Good | 0.37 KM |
| Kings Farm Children'S Centre | Children's Centre | 0.38 KM | |
| Holy Trinity Church Of England Primary School | Academy Converter | 1.07 KM | |
| St John'S Catholic Comprehensive | Voluntary Aided School | Good | 1.09 KM |
| King'S Farm Primary School | Community School | Good | 1.17 KM |
Images
Nearby Streets
| Name | Average Price | Average Sqft | Distance |
|---|---|---|---|
| Canterbury Road | £ 0 | 0 | 0.00 KM |
| Woods Terrace | £ 0 | 0 | 0.00 KM |
| Arnold Road | £ 475,000 | 0 | 0.00 KM |
| Jellicoe Avenue | £ 0 | 0 | 0.00 KM |
| Old Road East | £ 342,500 | 0 | 0.00 KM |
Nearby Transport
| Name | NLC | TLC | Distance |
|---|---|---|---|
| Gravesend | 5172 | GRV | 1.77 KM |
| Tilbury Town | 7462 | TIL | 4.49 KM |
| Sole Street | 5126 | SOR | 5.10 KM |
| Meopham | 5116 | MEP | 5.21 KM |
| Northfleet | 5120 | NFL | 6.09 KM |
Nearby Listings
| Address | Price | Type | Score | Distance |
|---|---|---|---|---|
| Whitehill Road, Gravesend, DA12 | £ 375,000 | BUY | 6 / 10 | 0.00 KM |
| Whitehill Road, Gravesend | £ 795,000 | BUY | Unknown | 0.02 KM |
| Whitehill Road, Gravesend, Kent, DA12 | £ 450,000 | BUY | 7 / 10 | 0.02 KM |
| Whitehill Road, Gravesend, Kent, DA12 | £ 375,000 | BUY | 6 / 10 | 0.09 KM |
| Sharland Road, Gravesend, Kent, DA12 | £ 290,000 | BUY | 6 / 10 | 0.10 KM |
Nearby Properties
| Address | Price | Distance |
|---|---|---|
| 77 Whitehill Road | £ 215,000 | 0.04 KM |
| 81 Whitehill Road | £ 330,000 | 0.04 KM |
| 75 Whitehill Road | £ 350,000 | 0.04 KM |
| 73a Whitehill Road | £ 73,000 | 0.04 KM |
| 55 Whitehill Road | £ 310,000 | 0.04 KM |