Thomas Samuel says ..
Situated in Aughton, this property benefits from a tranquil residential setting whilst being in close proximity to a range of local amenities, including shops, schools, and transport links.
Property Oracle says ..
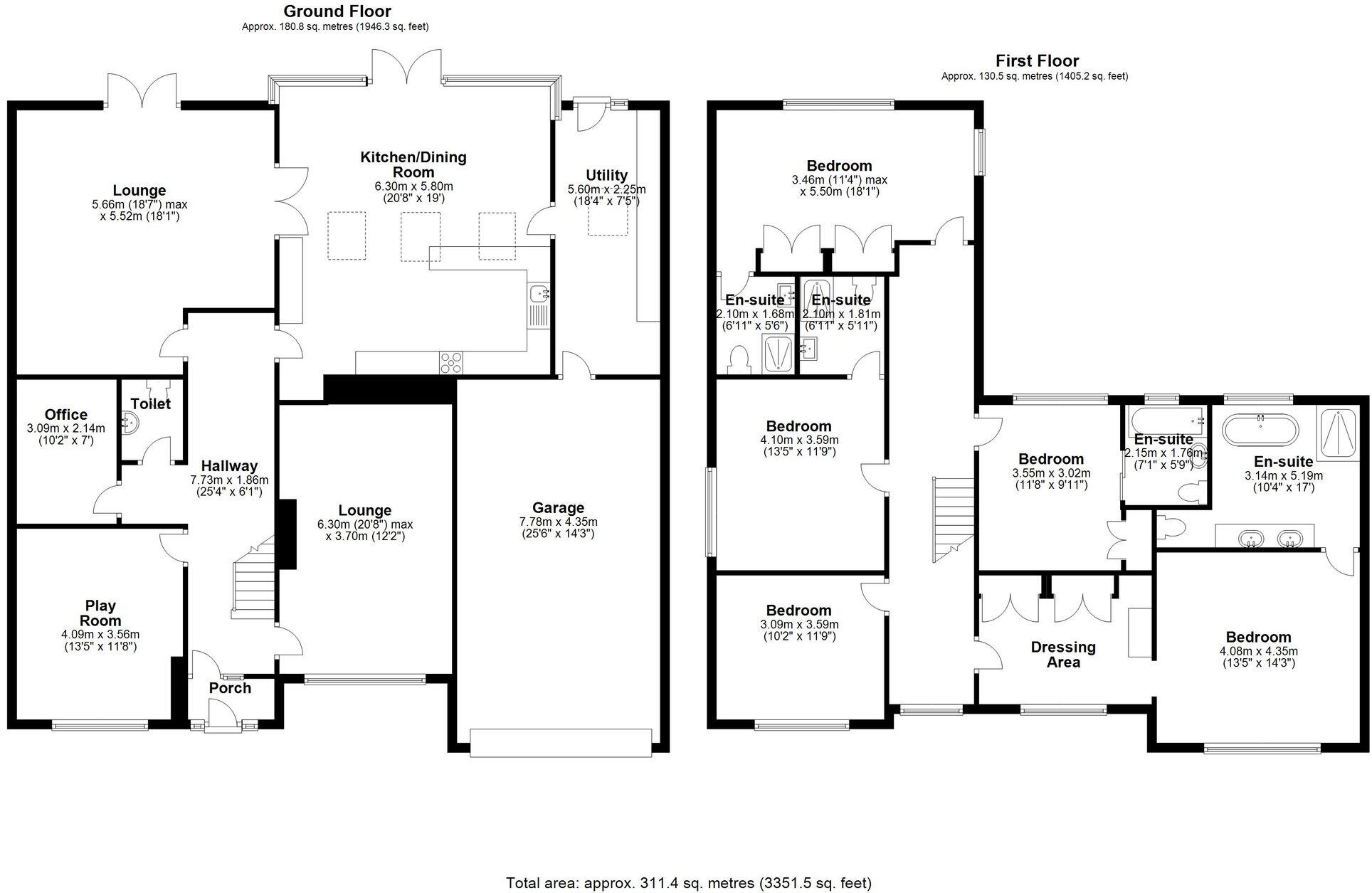
This five-bedroom, four-bathroom detached house located on Turnpike Road in Aughton, Lancashire, presents itself as a substantial and well-maintained family home. The property appears recently renovated or constructed to a high standard, with modern kitchen and bathroom fittings as evident in the high-quality photographs provided. The interior décor is stylish and contemporary. The property’s exterior presents well, and the large garden offers excellent outdoor space. The location in Aughton benefits from its highly regarded schools and relatively convenient transport links via nearby Merseyrail stations. While the exact plot size is unavailable, the property undoubtedly boasts ample space both indoors and out. A detailed structural survey and valuation would be beneficial before purchase to confirm the property’s condition and fully assess its market value relative to similar properties in the area given the limited data available on comparable properties.
Therefore, we give this property 7 / 10. *Disclaimer: This is our option and does constitute a recommendation or financial advice. Do your own research. *
- Price
- 7
- Condition
- 9
- Location
- 8
- Land
- 7
- Bedrooms
- 5
- Bathrooms
- 4
- Sqft (est)
- 3,351.50
The heatmap indicates the level of crime in the area. The color of the heatmap indicates the crime severity and recency.
Metrics Year-on-Year
- Average area value
- 920,602.00 £Increased by 66.18 %
- Est sale value
- 1,675,750.00 £Increased by 35.50 %
- Average area rental value
- 3,132.00 £/moIncreased by 136.38 %
- Est letting value
- 3,351.50 £/mo
- Est rental Yield
- 4.08 %Increased by 42.16 %
- Crime Rate
- 10.00 %Unchanged by 0.00 %
Agent Activity
Thomas Samuel marked this listing as sold.
Thomas Samuel created the listing.
Nearby Schools
| Name | Type | Ofsted | Distance |
|---|---|---|---|
| Aughton St Michael'S Church Of England Primary School | Voluntary Controlled School | Outstanding | 0.66 KM |
| Aughton Christ Church Church Of England Voluntary Controlled Primary School | Voluntary Controlled School | Outstanding | 1.37 KM |
| Aughton Town Green Primary School | Community School | Good | 1.77 KM |
| Pontville School | Other Independent Special School | Outstanding | 2.34 KM |
| St Bede'S Catholic High School | Voluntary Aided School | Good | 2.44 KM |
Images
Nearby Streets
| Name | Average Price | Average Sqft | Distance |
|---|---|---|---|
| Beaufort Close | £ 625,000 | 0 | 0.00 KM |
| School Close | £ 399,950 | 0 | 0.00 KM |
| Gaw Hill Lane | £ 0 | 0 | 0.00 KM |
| Beech Road | £ 789,975 | 0 | 0.00 KM |
| Sunnyside | £ 0 | 0 | 0.00 KM |
Nearby Transport
| Name | NLC | TLC | Distance |
|---|---|---|---|
| Town Green | 2283 | TWN | 1.44 KM |
| Aughton Park | 2215 | AUG | 2.06 KM |
| Maghull North | 6576 | MNS | 4.01 KM |
| Ormskirk | 2281 | OMS | 4.08 KM |
| Maghull | 2155 | MAG | 5.40 KM |
Nearby Listings
| Address | Price | Type | Score | Distance |
|---|---|---|---|---|
| Turnpike Road, Aughton, L39 | £ 850,000 | BUY | 7 / 10 | 0.00 KM |
| Cirrus Drive, Aughton, L39 | £ 550,000 | BUY | 8 / 10 | 0.11 KM |
| Beaufort Close, Aughton | £ 625,000 | BUY | 7 / 10 | 0.15 KM |
| Narrow Lane, Aughton L39 5EW | £ 350,000 | BUY | 8 / 10 | 0.20 KM |
| Bracknel Way, Aughton | £ 600,000 | BUY | 7 / 10 | 0.23 KM |
Nearby Properties
| Address | Price | Distance |
|---|---|---|
| 9 Cirrus Drive | £ 425,000 | 0.11 KM |
| 8 Cirrus Drive | £ 445,000 | 0.11 KM |
| 6 Cirrus Drive | £ 425,000 | 0.14 KM |
| 3 Cirrus Drive | £ 194,950 | 0.14 KM |
| 7 Beaufort Close | £ 395,000 | 0.16 KM |