Phoenix Avenue, Phoenix Park Way, Scunthorpe, DN15 8NH
By Gleeson Homes (Yorkshire East)
£ 218,995
Reviews
3 out of 5 stars
Gleeson Homes (Yorkshire East) says ..
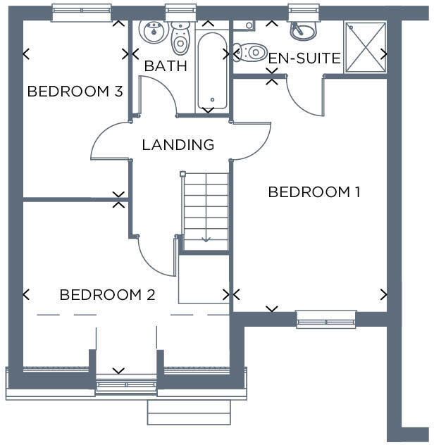
This home features a turfed front and rear garden with full 6ft timber fencing, outside tap and gate as standard. The Keady is a stunning three bedroom semi-detached home with a modern kitchen-diner and separate living room. A central staircase leads to the upstairs where you'll find...
Property Oracle says ..
This property is a 3-bedroom semi-detached house located in Scunthorpe, North Lincolnshire. The location benefits from being relatively close to several schools which have received a good Ofsted rating, and is within a reasonable distance of Scunthorpe train station. The property itself appears to be in excellent condition, and is newly built. It includes a small garden. While the list price is slightly above the average price for the area, considering the property’s condition, modern amenities and the relatively small plot size, the price seems reasonable.
Therefore, we give this property 6 / 10. *Disclaimer: This is our option and does constitute a recommendation or financial advice. Do your own research. *
- Price
- 7
- Condition
- 10
- Location
- 7
- Land
- 3
- Bedrooms
- 3
- Bathrooms
- 0
- Sqft (est)
- 645.00
The heatmap indicates the level of crime in the area. The color of the heatmap indicates the crime severity and recency.
Metrics Year-on-Year
- Average area value
- 235,000.00 £Increased by 7.42 %
- Est sale value
- 194,790.00 £Increased by 43.13 %
- Average area rental value
- 1,149.00 £/moDecreased by 3.45 %
- Est letting value
- 645.00 £/moUnchanged by 0.00 %
- Est rental Yield
- 5.87 %Decreased by 10.11 %
- Crime Rate
- 8.00 %Unchanged by 0.00 %
Agent Activity
Gleeson Homes (Yorkshire East) created the listing.
Nearby Schools
| Name | Type | Ofsted | Distance |
|---|---|---|---|
| Outwood Academy Foxhills | Academy Converter | Good | 0.65 KM |
| Crosby Primary School | Community School | Good | 1.15 KM |
| Henderson Avenue Children'S Centre | Children's Centre | 1.15 KM | |
| Oasis Academy Henderson Avenue | Academy Sponsor Led | Good | 1.17 KM |
| The St Lawrence Academy | Academy Sponsor Led | Good | 1.59 KM |
Images
Nearby Streets
| Name | Average Price | Average Sqft | Distance |
|---|---|---|---|
| Trafalgar Court | £ 0 | 0 | 0.00 KM |
| Lockwood Court | £ 0 | 0 | 0.00 KM |
| Robinson Close | £ 0 | 0 | 0.00 KM |
| Sheffield Street West | £ 85,000 | 0 | 0.00 KM |
| Edwards Road | £ 0 | 0 | 0.00 KM |
Nearby Transport
| Name | NLC | TLC | Distance |
|---|---|---|---|
| Scunthorpe | 6456 | SCU | 2.39 KM |
| Althorpe | 6532 | ALP | 8.13 KM |
Nearby Listings
| Address | Price | Type | Score | Distance |
|---|---|---|---|---|
| Phoenix Avenue, Phoenix Park Way, Scunthorpe, DN15 8NH | £ 249,995 | BUY | 7 / 10 | 0.00 KM |
| Phoenix Avenue, Phoenix Park Way, Scunthorpe, DN15 8NH | £ 218,995 | BUY | 6 / 10 | 0.00 KM |
| Phoenix Avenue, Phoenix Park Way, Scunthorpe, DN15 8NH | £ 104,998 | BUY | 7 / 10 | 0.00 KM |
| Phoenix Avenue, Phoenix Park Way, Scunthorpe, DN15 8NH | £ 109,998 | BUY | 7 / 10 | 0.00 KM |
| Phoenix Avenue, Phoenix Park Way, Scunthorpe, DN15 8NH | £ 155,995 | BUY | 6 / 10 | 0.00 KM |
Nearby Properties
| Address | Price | Distance |
|---|---|---|
| 23 Skippingdale Road | £ 111,000 | 0.17 KM |
| 38 Skippingdale Road | £ 115,000 | 0.17 KM |
| 25 Skippingdale Road | £ 160,000 | 0.17 KM |
| 39 Skippingdale Road | £ 87,000 | 0.17 KM |
| 8 Skippingdale Road | £ 125,000 | 0.17 KM |