Acorn says ..
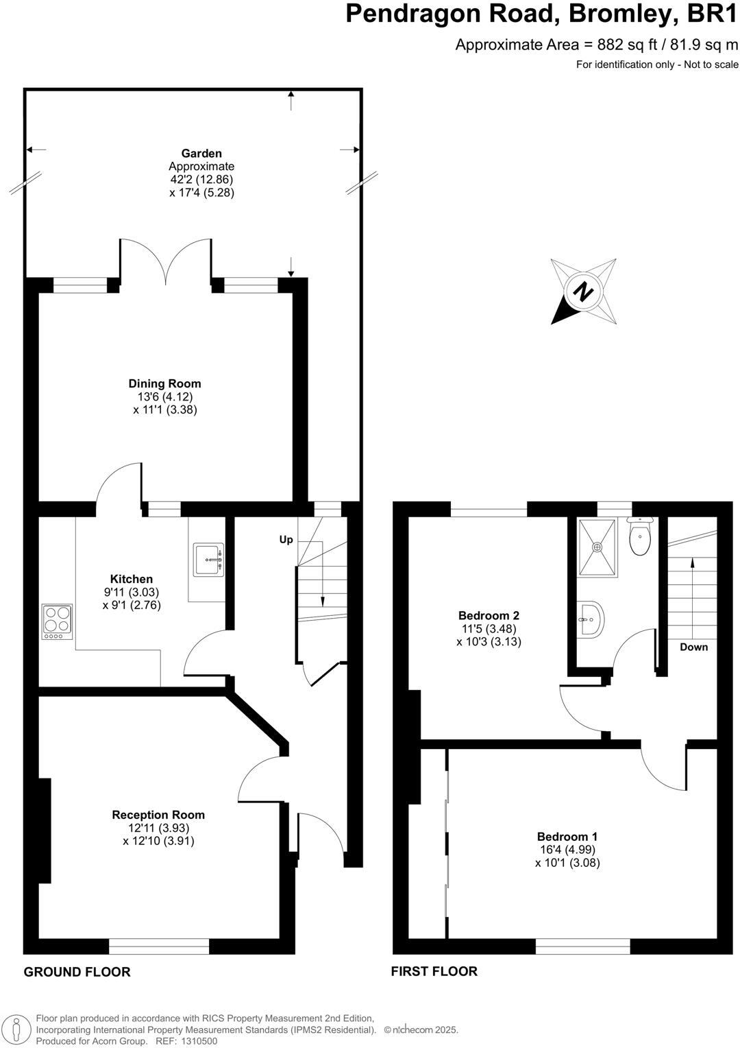
Acorn are pleased to welcome this home to the market which is nestled in a sought-after residential pocket of Grove Park, this beautifully presented two-bedroom house on Pendragon Road offers generous living space, modern features, and exceptional outdoor appeal – perfect for first-time buy...
Property Oracle says ..
Therefore, we give this property 7 / 10. *Disclaimer: This is our option and does constitute a recommendation or financial advice. Do your own research. *
- Price
- 8
- Condition
- 8
- Location
- 7
- Land
- 7
- Bedrooms
- 2
- Bathrooms
- 1
- Sqft (est)
- 1,419.85
The heatmap indicates the level of crime in the area. The color of the heatmap indicates the crime severity and recency.
Metrics Year-on-Year
- Average area value
- 323,750.00 £Decreased by 24.60 %
- Est sale value
- 616,214.90 £Decreased by 11.43 %
- Average area rental value
- 1,700.00 £/moDecreased by 5.97 %
- Est letting value
- 2,839.70 £/moUnchanged by 0.00 %
- Est rental Yield
- 6.30 %Increased by 24.75 %
- Crime Rate
- 11.00 %Unchanged by 0.00 %
from 429,349.00 £
from 695,726.50 £
from 1,808.00 £/mo
from 2,839.70 £/mo
from 5.05 %
from 11.00 %
Agent Activity
Acorn marked this listing as sold.
Acorn created the listing.
Nearby Schools
| Name | Type | Ofsted | Distance |
|---|---|---|---|
| Drumbeat School And Asd Service | Community Special School | Good | 0.13 KM |
| Haberdashers' Aske'S Knights Temple Grove | Academy Converter | 0.30 KM | |
| Haberdashers' Aske'S Knights Academy | Academy Sponsor Led | Good | 0.56 KM |
| Launcelot Primary School | Community School | Good | 0.64 KM |
| Good Shepherd Rc School | Voluntary Aided School | Good | 0.70 KM |
Images
Nearby Streets
| Name | Average Price | Average Sqft | Distance |
|---|---|---|---|
| Riverbank Road | £ 0 | 0 | 0.00 KM |
| Dagonet Road | £ 425,000 | 0 | 0.00 KM |
| Merlinmead | £ 0 | 0 | 0.00 KM |
| Palace View | £ 0 | 0 | 0.00 KM |
| Stratfield House | £ 0 | 0 | 0.00 KM |
Nearby Transport
| Name | NLC | TLC | Distance |
|---|---|---|---|
| Grove Park | 5139 | GRP | 0.95 KM |
| Lee | 5110 | LEE | 1.96 KM |
| Sundridge Park | 5155 | SUP | 2.24 KM |
| Bromley North | 5096 | BMN | 2.69 KM |
| Hither Green | 5107 | HGR | 2.71 KM |
Nearby Listings
| Address | Price | Type | Score | Distance |
|---|---|---|---|---|
| Pendragon Road, Bromley | £ 425,000 | BUY | 7 / 10 | 0.00 KM |
| Roundtable Road, Bromley, BR1 | £ 450,000 | BUY | 5 / 10 | 0.07 KM |
| Roundtable Road, Bromley, BR1 | £ 400,000 | BUY | Unknown | 0.07 KM |
| Roundtable Road, Bromley, BR1 | £ 400,000 | BUY | 6 / 10 | 0.07 KM |
| Pendragon Road, Bromley | £ 415,000 | BUY | 6 / 10 | 0.10 KM |
Nearby Properties
| Address | Price | Distance |
|---|---|---|
| 94 Pendragon Road | £ 490,000 | 0.01 KM |
| 30 Pendragon Road | £ 230,000 | 0.01 KM |
| 52 Pendragon Road | £ 216,000 | 0.01 KM |
| 92 Pendragon Road | £ 184,000 | 0.01 KM |
| 62 Pendragon Road | £ 315,000 | 0.01 KM |