Hill Terrace, Stow, Galashiels, Scottish Borders, TD1
UM

Hill Terrace, Stow, Galashiels, Scottish Borders, TD1

By Umega

£ 160,000

Reviews

3 out of 5 stars

Umega says ..

Nestled in a peaceful, tucked-away setting, 1 Hill Terrace is an attractive end-terraced home offering a wonderful sense of privacy while being just a short stroll from the heart of Stow village.

Property Oracle says ..

This end-of-terrace property in Stow, Galashiels, presents a well-maintained and modern living space. The interior features updated kitchen and bathroom, bright living areas, and two bedrooms. The property benefits from a garden with a shed and a patio, offering outdoor space. Its location provides convenient access to transportation via the nearby Stow train station. While the price per square foot is above the area average, the overall condition and recent updates make it a competitive offering in the market.

Therefore, we give this property 7 / 10. *Disclaimer: This is our option and does constitute a recommendation or financial advice. Do your own research. *

Price
7
Condition
8
Location
7
Land
6
Bedrooms
2
Bathrooms
1
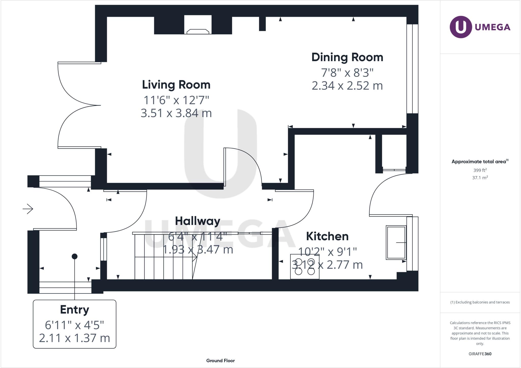
Sqft (est)
710.00

The heatmap indicates the level of crime in the area. The color of the heatmap indicates the crime severity and recency.

Metrics Year-on-Year

Average area value
194,167.00 £
Increased by 13.72 %
from 170,735.00 £
Est sale value
108,630.00 £
Decreased by 16.39 %
from 129,930.00 £
Average area rental value
625.00 £/mo
Decreased by 19.35 %
from 775.00 £/mo
Est letting value
0.00 £/mo
from 0.00 £/mo
Est rental Yield
3.86 %
Decreased by 29.17 %
from 5.45 %
Crime Rate
0.00 %
from 0.00 %

Agent Activity

  • Umega created the listing.

Images

Picture No. 44 Picture No. 18 Picture No. 33 Picture No. 16 Picture No. 13 Picture No. 17 Picture No. 41 Picture No. 35 Picture No. 38 Picture No. 37 Picture No. 03 Picture No. 01 Picture No. 69 Picture No. 71 Picture No. 05 Picture No. 31 Picture No. 30 Picture No. 28 Picture No. 26 Picture No. 55 Picture No. 45 Picture No. 54 Picture No. 50 Picture No. 58 Picture No. 59 Picture No. 63 Picture No. 65 Picture No. 66 Picture No. 67 Picture No. 68 Picture No. 47

Nearby Streets

NameAverage PriceAverage SqftDistance
Manor Park £ 000.00 KM
Wedale View £ 000.00 KM
Station Road £ 000.00 KM
Hay Park Loan £ 270,00000.00 KM
Cotland Place £ 000.00 KM

Nearby Transport

NameNLCTLCDistance
Stow9396SOI0.51 KM

Nearby Listings

AddressPriceTypeScoreDistance
Hill Terrace, Stow, Galashiels, Scottish Borders, TD1 £ 160,000BUY7 / 100.00 KM
107 Galashiels Road, Stow, TD1 £ 130,000BUYUnknown0.08 KM
Galashiels Road, Stow, Galashiels, TD1 £ 350,000BUY6 / 100.09 KM
Craigend Road, Stow, Galashiels, Scottish Borders £ 465,000BUY7 / 100.11 KM
109 Galashiels Road, Stow, Galashiels £ 99,950BUY6 / 100.21 KM