CAPEL DEWI, LLANDYSUL. SA44 4PP
DA

CAPEL DEWI, LLANDYSUL. SA44 4PP

By Dai Lewis

£ 625,000

Reviews

3 out of 5 stars

Dai Lewis says ..

Fferm Penybanc is a truly delightful 19.5 acre small working farm enjoying an elevated position overlooking its idyllic valley land with a range of outbuildings and self-sufficiency garden providing a lifestyle property of immense charm.

Property Oracle says ..

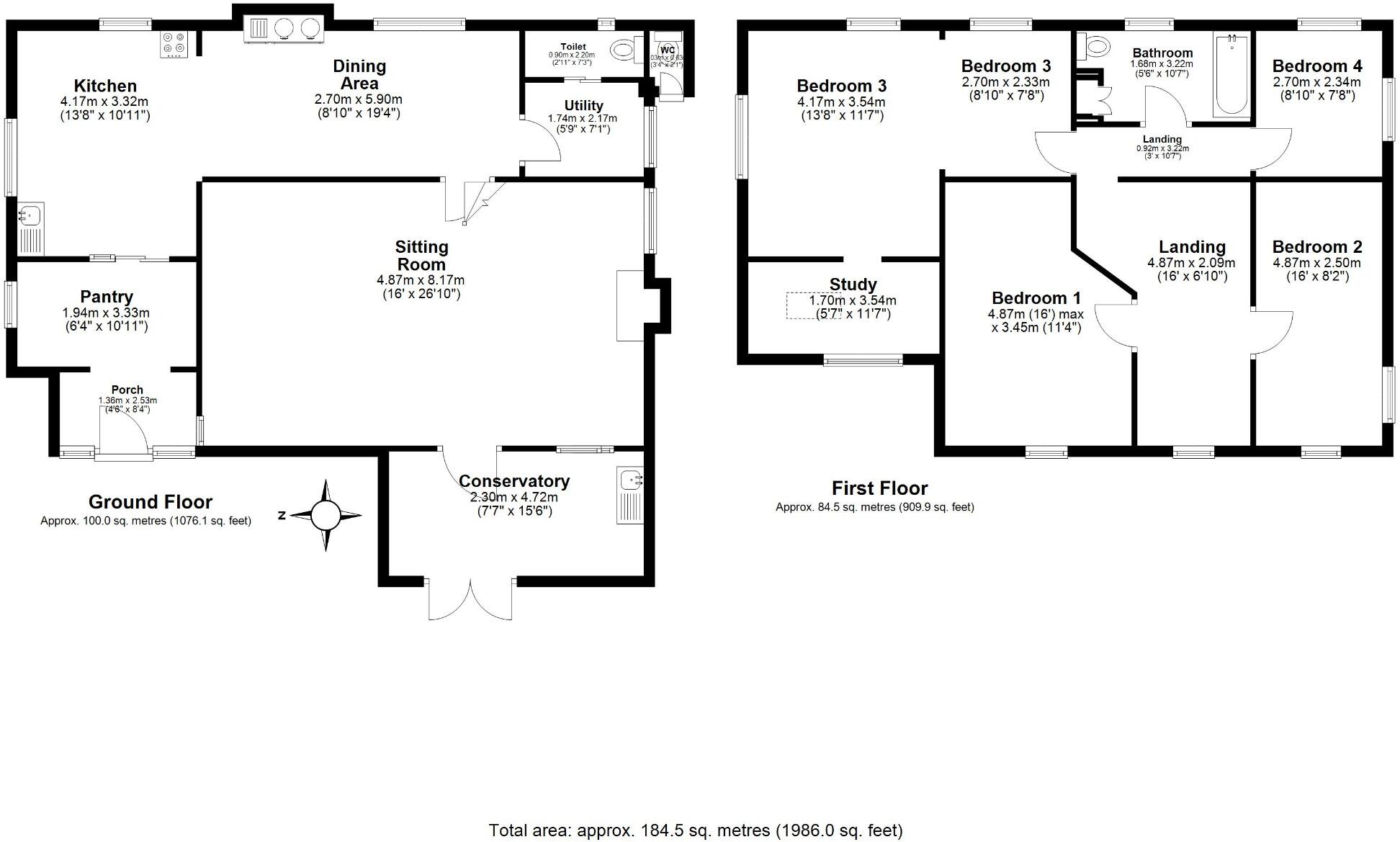
This is a four-bedroom farmhouse located in Capel Dewi, Llandysul. The property includes a significant amount of land and outbuildings, characteristic of a traditional farm. While the house has some modernised interiors, it retains its traditional charm. The location is rural, offering peace and quiet, but is a distance from major amenities. The listing price is £625,000.

Therefore, we give this property 7 / 10. *Disclaimer: This is our option and does constitute a recommendation or financial advice. Do your own research. *

Price
6
Condition
7
Location
6
Land
9
Bedrooms
4
Bathrooms
0

The heatmap indicates the level of crime in the area. The color of the heatmap indicates the crime severity and recency.

Metrics Year-on-Year

Average area value
398,765.00 £
Decreased by 0.35 %
from 400,154.00 £
Average area rental value
1,263.00 £/mo
Increased by 3.52 %
from 1,220.00 £/mo
Est rental Yield
3.80 %
Increased by 3.83 %
from 3.66 %
Crime Rate
0.00 %
from 0.00 %

Agent Activity

  • Dai Lewis created the listing.

Nearby Schools

NameTypeOfstedDistance
Ysgol Gynradd Wirfoddol LlanllwniWelsh Establishment6.53 KM
Cae'R Felin Community SchoolWelsh Establishment6.57 KM
Ysgol Dyffryn Cledlyn Vc CiwWelsh Establishment8.35 KM
Ysgol TalgarregWelsh Establishment9.46 KM

Images

Nearby Streets

NameAverage PriceAverage SqftDistance
Derlwyn £ 000.00 KM
Heol Y Waun £ 000.00 KM

Nearby Listings

AddressPriceTypeScoreDistance
CAPEL DEWI, LLANDYSUL. SA44 4PP £ 625,000BUY7 / 100.00 KM
Capel Dewi, Llandysul, SA44 £ 550,000BUY8 / 100.33 KM
Capel Dewi, Llandysul, SA44 £ 550,000BUY6 / 100.35 KM
Capel Dewi, Llandysul, SA44 £ 595,000BUY7 / 100.37 KM
Capel Dewi , Llandysul, SA44 £ 250,000BUY7 / 100.73 KM

Nearby Properties

AddressPriceDistance
1 Derlwyn £ 88,0000.90 KM
3 Derlwyn £ 92,0000.90 KM