Weavers Close, Gravesend, DA11
By Rochester Estates
£ 425,000
Reviews
3 out of 5 stars
Rochester Estates says ..
Robin & Rochester are delighted to present this well-positioned 4-bedroom family home, ideally located in the heart of Gravesend.
Property Oracle says ..
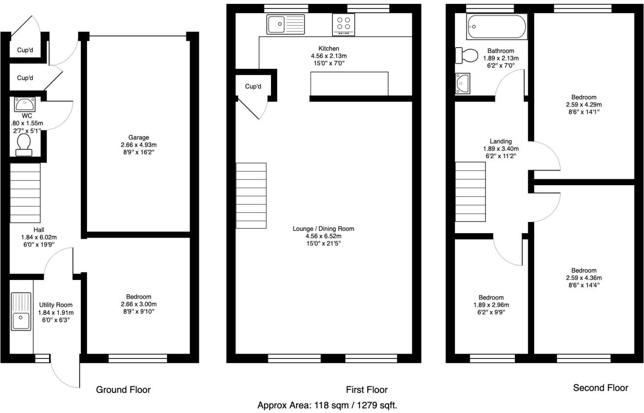
The property is located in Weavers Close, Gravesend, which is in close proximity to Gravesend Train Station (0.67 KM), providing convenient access to London and other major cities. Several schools are also nearby, including Mayfield Grammar School (0.41 KM), rated as “Outstanding” by Ofsted. This positive aspect is enhanced by the presence of a well-maintained garden, visible in the provided images, which adds to the overall appeal and desirability of the property. The property appears to be in generally good condition, although some minor cosmetic updates might enhance its presentation. The interior images show a well-maintained interior with updated kitchen and bathroom fixtures. The flooring in some areas shows signs of wear and tear, suggesting potential for improvement. The overall condition, however, is not indicative of significant repair or renovation needs. The property includes a private garden, as shown in the provided images. While the plot size is not specified, the garden appears to be of a reasonable size for a terraced property in this location. The garden’s condition seems well-maintained and offers a pleasant outdoor space. The list price of £425,000 is higher than the average price of £218,000 for the area. However, the property is larger than the average, with 1,270.14 sqft compared to the average of 717 sqft. Considering the nearby properties, some terraced houses are listed for significantly higher prices (e.g., £500,000 on Darnley Road). The proximity to excellent schools and transport links, along with the good condition and presence of a garden, could justify a higher price point. A more detailed analysis of comparable properties with similar features would be needed to fully assess the value for money.
Therefore, we give this property 7 / 10. *Disclaimer: This is our option and does constitute a recommendation or financial advice. Do your own research. *
- Price
- 7
- Condition
- 8
- Location
- 9
- Land
- 7
- Bedrooms
- 4
- Bathrooms
- 2
- Sqft (est)
- 1,270.14
The heatmap indicates the level of crime in the area. The color of the heatmap indicates the crime severity and recency.
Metrics Year-on-Year
- Average area value
- 238,083.00 £Decreased by 19.19 %
- Est sale value
- 382,312.14 £Decreased by 17.31 %
- Average area rental value
- 1,361.00 £/moIncreased by 8.10 %
- Est letting value
- 1,270.14 £/moUnchanged by 0.00 %
- Est rental Yield
- 6.86 %Increased by 33.72 %
- Crime Rate
- 5.00 %Unchanged by 0.00 %
Agent Activity
Rochester Estates created the listing.
Nearby Schools
| Name | Type | Ofsted | Distance |
|---|---|---|---|
| Mayfield Grammar School, Gravesend | Academy Converter | Outstanding | 0.41 KM |
| Bronte School | Other Independent School | 0.43 KM | |
| Wrotham Road Primary School | Academy Converter | 0.45 KM | |
| Cecil Road Primary And Nursery School | Foundation School | Good | 0.81 KM |
| Saint George'S Church Of England School | Academy Converter | Good | 0.91 KM |
Images
Nearby Streets
| Name | Average Price | Average Sqft | Distance |
|---|---|---|---|
| Portland Road | £ 0 | 0 | 0.00 KM |
| Sheppy Place | £ 0 | 0 | 0.00 KM |
| Lennox Road | £ 0 | 0 | 0.00 KM |
| Trinity Point | £ 0 | 0 | 0.00 KM |
| South Street | £ 0 | 0 | 0.00 KM |
Nearby Transport
| Name | NLC | TLC | Distance |
|---|---|---|---|
| Gravesend | 5172 | GRV | 0.67 KM |
| Tilbury Town | 7462 | TIL | 3.05 KM |
| Northfleet | 5120 | NFL | 4.42 KM |
| Ebbsfleet International | 5566 | EBD | 4.72 KM |
| Meopham | 5116 | MEP | 5.61 KM |
Nearby Listings
| Address | Price | Type | Score | Distance |
|---|---|---|---|---|
| Weavers Close, Gravesend, Kent, DA11 | £ 375,000 | BUY | 6 / 10 | 0.00 KM |
| Weavers Close, Gravesend, DA11 | £ 425,000 | BUY | 7 / 10 | 0.00 KM |
| Essex Road, Gravesend, Kent, DA11 | £ 550,000 | BUY | Unknown | 0.11 KM |
| Essex Road, Gravesend, Kent, DA11 | £ 500,000 | BUY | 7 / 10 | 0.14 KM |
| Kent Road, Gravesend, Gravesend, Kent, DA11 | £ 475,000 | BUY | 6 / 10 | 0.19 KM |
Nearby Properties
| Address | Price | Distance |
|---|---|---|
| 1 Weavers Close | £ 410,000 | 0.01 KM |
| 4 Weavers Close | £ 167,500 | 0.01 KM |
| 5 Weavers Close | £ 272,000 | 0.01 KM |
| 17 Weavers Close | £ 300,000 | 0.01 KM |
| 117b Darnley Road | £ 380,000 | 0.04 KM |