Selsfield Drive, Brighton
By Phillips & Still
£ 225,000
Reviews
2 out of 5 stars
Phillips & Still says ..
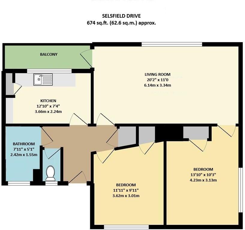
Spacious two-bedroom apartment in popular Selsfield Drive, Brighton. Features a private balcony and generously sized rooms. A perfect blank canvas for first-time buyers or investors.
Property Oracle says ..
This 2-bedroom apartment on Selsfield Drive in Brighton offers good value for money compared to the area average. It is conveniently located near transportation and schools. However, the property is in need of renovation, particularly the bathroom and kitchen.
Therefore, we give this property 5 / 10. *Disclaimer: This is our option and does constitute a recommendation or financial advice. Do your own research. *
- Price
- 8
- Condition
- 4
- Location
- 7
- Land
- 3
- Bedrooms
- 2
- Bathrooms
- 1
- Sqft (est)
- 674.00
The heatmap indicates the level of crime in the area. The color of the heatmap indicates the crime severity and recency.
Metrics Year-on-Year
- Average area value
- 382,813.00 £Decreased by 14.91 %
- Est sale value
- 341,044.00 £Increased by 7.43 %
- Average area rental value
- 2,220.00 £/moIncreased by 4.18 %
- Est letting value
- 1,348.00 £/moUnchanged by 0.00 %
- Est rental Yield
- 6.96 %Increased by 22.54 %
- Crime Rate
- 15.00 %Unchanged by 0.00 %
Agent Activity
Phillips & Still created the listing.
Nearby Schools
| Name | Type | Ofsted | Distance |
|---|---|---|---|
| Homewood College | Community Special School | Requires improvement | 0.61 KM |
| Moulsecoomb Primary School | Academy Sponsor Led | 0.64 KM | |
| Moulsecoomb Children'S Centre | Children's Centre | 0.73 KM | |
| University Of Brighton | Higher Education Institutions | Good | 0.75 KM |
| Coombe Road Primary School | Community School | Good | 0.93 KM |
Images
Nearby Streets
| Name | Average Price | Average Sqft | Distance |
|---|---|---|---|
| Lambourne Close | £ 0 | 0 | 0.00 KM |
| Robin Davis Close | £ 0 | 0 | 0.00 KM |
| Peace Close | £ 0 | 0 | 0.00 KM |
| Roundway | £ 466,667 | 0 | 0.00 KM |
| Forest Road | £ 0 | 0 | 0.00 KM |
Nearby Transport
| Name | NLC | TLC | Distance |
|---|---|---|---|
| Moulsecoomb | 5312 | MCB | 0.47 KM |
| London Road (Brighton) | 5281 | LRB | 2.69 KM |
| Falmer | 5337 | FMR | 3.43 KM |
| Brighton | 5268 | BTN | 3.59 KM |
| Preston Park | 5285 | PRP | 4.48 KM |
Nearby Listings
| Address | Price | Type | Score | Distance |
|---|---|---|---|---|
| Selsfield Drive, Brighton | £ 225,000 | BUY | 5 / 10 | 0.00 KM |
| Selsfield Drive, Brighton | £ 275,000 | BUY | 6 / 10 | 0.06 KM |
| Selsfield Drive, Brighton | £ 250,000 | BUY | 4 / 10 | 0.25 KM |
| Southall Avenue, Brighton, BN2 | £ 450,000 | BUY | 6 / 10 | 0.28 KM |
| Selsfield Drive, Brighton | £ 240,000 | BUY | 5 / 10 | 0.32 KM |
Nearby Properties
| Address | Price | Distance |
|---|---|---|
| 1 Selsfield Drive | £ 190,000 | 0.00 KM |
| 26 Selsfield Drive | £ 112,000 | 0.00 KM |
| 24 Selsfield Drive | £ 13,523 | 0.00 KM |
| 30 Selsfield Drive | £ 250,000 | 0.00 KM |
| 23 Selsfield Drive | £ 97,000 | 0.00 KM |