Kingstons says ..
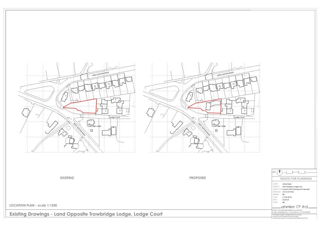
A fantastic opportunity to purchase a building plot with full planning permission to construct a four double bedroom detached home with double garage. On the south-easterly outskirts of town close to shops, primary schools and parkland & riverside walks.
Property Oracle says ..
This property on West Ashton Road, Trowbridge, presents a unique opportunity as it is listed as a plot with planning permission for a new build or significant renovation. The location offers reasonable access to schools, transportation, and local amenities, although its position on a main road may be a consideration. The artist’s impression suggests a modern design. The asking price of £200,000 appears competitive, reflecting the value of the land and the potential for creating a bespoke property in a desirable location. Further investigation into the planning permissions and any associated restrictions is recommended.
Therefore, we give this property 6 / 10. *Disclaimer: This is our option and does constitute a recommendation or financial advice. Do your own research. *
- Price
- 8
- Condition
- 7
- Location
- 6
- Land
- 6
- Bedrooms
- 4
- Bathrooms
- 3
- Sqft (est)
- 966.00
The heatmap indicates the level of crime in the area. The color of the heatmap indicates the crime severity and recency.
Metrics Year-on-Year
- Average area value
- 296,000.00 £Increased by 16.27 %
- Est sale value
- 325,542.00 £Increased by 99.41 %
- Average area rental value
- 1,040.00 £/moIncreased by 8.67 %
- Est letting value
- 966.00 £/mo
- Est rental Yield
- 4.22 %Decreased by 6.43 %
- Crime Rate
- 2.00 %Unchanged by 0.00 %
Agent Activity
Kingstons created the listing.
Nearby Schools
| Name | Type | Ofsted | Distance |
|---|---|---|---|
| Longfield Children'S Centre | Children's Centre | 0.54 KM | |
| Paxcroft Primary School | Foundation School | Good | 0.60 KM |
| Oasis Academy Longmeadow | Academy Sponsor Led | Requires improvement | 0.90 KM |
| Bellefield Primary And Nursery School | Voluntary Controlled School | Good | 1.12 KM |
| Bellefield Children'S Centre | Children's Centre | 1.12 KM |
Images
Nearby Streets
| Name | Average Price | Average Sqft | Distance |
|---|---|---|---|
| Green Lane | £ 0 | 0 | 0.00 KM |
| Honeysuckle Close | £ 425,000 | 0 | 0.00 KM |
| Lavender Close | £ 0 | 0 | 0.00 KM |
| Lark Down | £ 209,950 | 0 | 0.00 KM |
| Southfield Court | £ 0 | 0 | 0.00 KM |
Nearby Transport
| Name | NLC | TLC | Distance |
|---|---|---|---|
| Trowbridge | 3348 | TRO | 1.98 KM |
| Westbury | 5712 | WSB | 5.67 KM |
| Bradford-On-Avon | 3341 | BOA | 6.87 KM |
| Dilton Marsh | 5502 | DMH | 7.76 KM |
| Melksham | 3346 | MKM | 8.98 KM |
Nearby Listings
| Address | Price | Type | Score | Distance |
|---|---|---|---|---|
| West Ashton Road, Trowbridge | £ 200,000 | BUY | 6 / 10 | 0.00 KM |
| West Ashton Road, Trowbridge | £ 200,000 | BUY | Unknown | 0.08 KM |
| Jasmine Way, Trowbridge | £ 450,000 | BUY | 7 / 10 | 0.12 KM |
| Clarendon Road, Trowbridge | £ 400,000 | BUY | 6 / 10 | 0.13 KM |
| Clarendon Road, Trowbridge | £ 375,000 | BUY | 6 / 10 | 0.14 KM |
Nearby Properties
| Address | Price | Distance |
|---|---|---|
| 41 West Ashton Road | £ 488,000 | 0.04 KM |
| 5 Green Lane | £ 420,000 | 0.05 KM |
| 42 Clarendon Road | £ 189,011 | 0.14 KM |
| 75 Clarendon Road | £ 325,000 | 0.14 KM |
| 40 Clarendon Road | £ 269,950 | 0.14 KM |