Springfield Road, Wigan, WN6 7BB
By Morgan H Lewis
£ 140,000
Reviews
2 out of 5 stars
Morgan H Lewis says ..
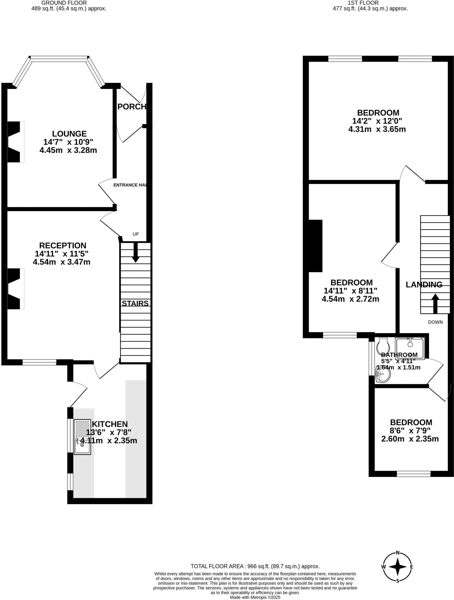
A fantastic opportunity for first time buyers and rental investors, this terraced house has three bedrooms and is situated along Springfield Road, in the heart of Springfield within walking distance of Mesnes Park, the Town Centre and Stations for travel to Liverpool and Manchester. There is c...
Property Oracle says ..
This three-bedroom terraced house in Wigan is listed at £140,000. The property is located on Springfield Road, in the Wigan West area, close to several schools and train stations. While the location is convenient, the property itself shows signs of needing some modernisation. The images reveal dated interiors and some cosmetic work is required. The kitchen and bathroom appear functional but are not modern. There is no garden. Compared to the average price per square foot in the area (£197), the listed price appears reasonable, given the property’s condition and lack of outdoor space. However, nearby comparable properties suggest a slightly higher price range might be expected.
Therefore, we give this property 5 / 10. *Disclaimer: This is our option and does constitute a recommendation or financial advice. Do your own research. *
- Price
- 7
- Condition
- 6
- Location
- 7
- Land
- 1
- Bedrooms
- 3
- Bathrooms
- 1
- Sqft (est)
- 966.00
The heatmap indicates the level of crime in the area. The color of the heatmap indicates the crime severity and recency.
Metrics Year-on-Year
- Average area value
- 177,800.00 £Increased by 0.95 %
- Est sale value
- 204,792.00 £Increased by 23.98 %
- Average area rental value
- 902.00 £/moIncreased by 19.47 %
- Est letting value
- 966.00 £/mo
- Est rental Yield
- 6.09 %Increased by 18.48 %
- Crime Rate
- 0.00 %
Agent Activity
Morgan H Lewis marked this listing as sold.
Morgan H Lewis created the listing.
Nearby Schools
| Name | Type | Ofsted | Distance |
|---|---|---|---|
| Wigan St Andrew'S Cofe Junior And Infant School | Voluntary Aided School | Good | 0.22 KM |
| Sacred Heart Catholic Primary School | Voluntary Aided School | Good | 0.49 KM |
| St John Fisher Catholic High School | Voluntary Aided School | Good | 0.61 KM |
| Beech Hill & Sacred Heart Children'S Centre | Children's Centre Linked Site | 0.62 KM | |
| Beech Hill Community Primary School | Community School | Good | 0.65 KM |
Images
Nearby Streets
| Name | Average Price | Average Sqft | Distance |
|---|---|---|---|
| Waterloo Street | £ 0 | 0 | 0.00 KM |
| Saint Andrew's Drive | £ 235,000 | 0 | 0.00 KM |
| Railway Street | £ 0 | 0 | 0.00 KM |
| Pagefield Close | £ 0 | 0 | 0.00 KM |
| Beresford Street | £ 150,000 | 0 | 0.00 KM |
Nearby Transport
| Name | NLC | TLC | Distance |
|---|---|---|---|
| Wigan Wallgate | 2406 | WGW | 1.96 KM |
| Wigan North Western | 2363 | WGN | 2.02 KM |
| Pemberton | 2403 | PEM | 3.56 KM |
| Ince (Manchester) | 2236 | INC | 4.40 KM |
| Gathurst | 2397 | GST | 5.12 KM |
Nearby Listings
| Address | Price | Type | Score | Distance |
|---|---|---|---|---|
| Springfield Road, Wigan, WN6 7BB | £ 140,000 | BUY | 5 / 10 | 0.00 KM |
| Springfield Road, Springfield, Wigan, WN6 7BB | £ 175,000 | BUY | 6 / 10 | 0.01 KM |
| First Avenue, Wigan, WN6 | £ 130,000 | BUY | 5 / 10 | 0.05 KM |
| Whiteside Avenue, Wigan, WN6 | £ 125,000 | BUY | 5 / 10 | 0.10 KM |
| Springfield Road, Wigan | £ 140,000 | BUY | Unknown | 0.13 KM |
Nearby Properties
| Address | Price | Distance |
|---|---|---|
| 56 Springfield Road | £ 96,000 | 0.00 KM |
| 68 Springfield Road | £ 105,000 | 0.00 KM |
| 60 Springfield Road | £ 64,000 | 0.00 KM |
| 66 Springfield Road | £ 109,950 | 0.00 KM |
| 33 Springfield Road | £ 109,000 | 0.00 KM |