Auchentorlie Street, Flat 0/2, Thornwood, Glasgow, G11 7TP
By Clyde Property
£ 139,000
Reviews
3 out of 5 stars
Clyde Property says ..
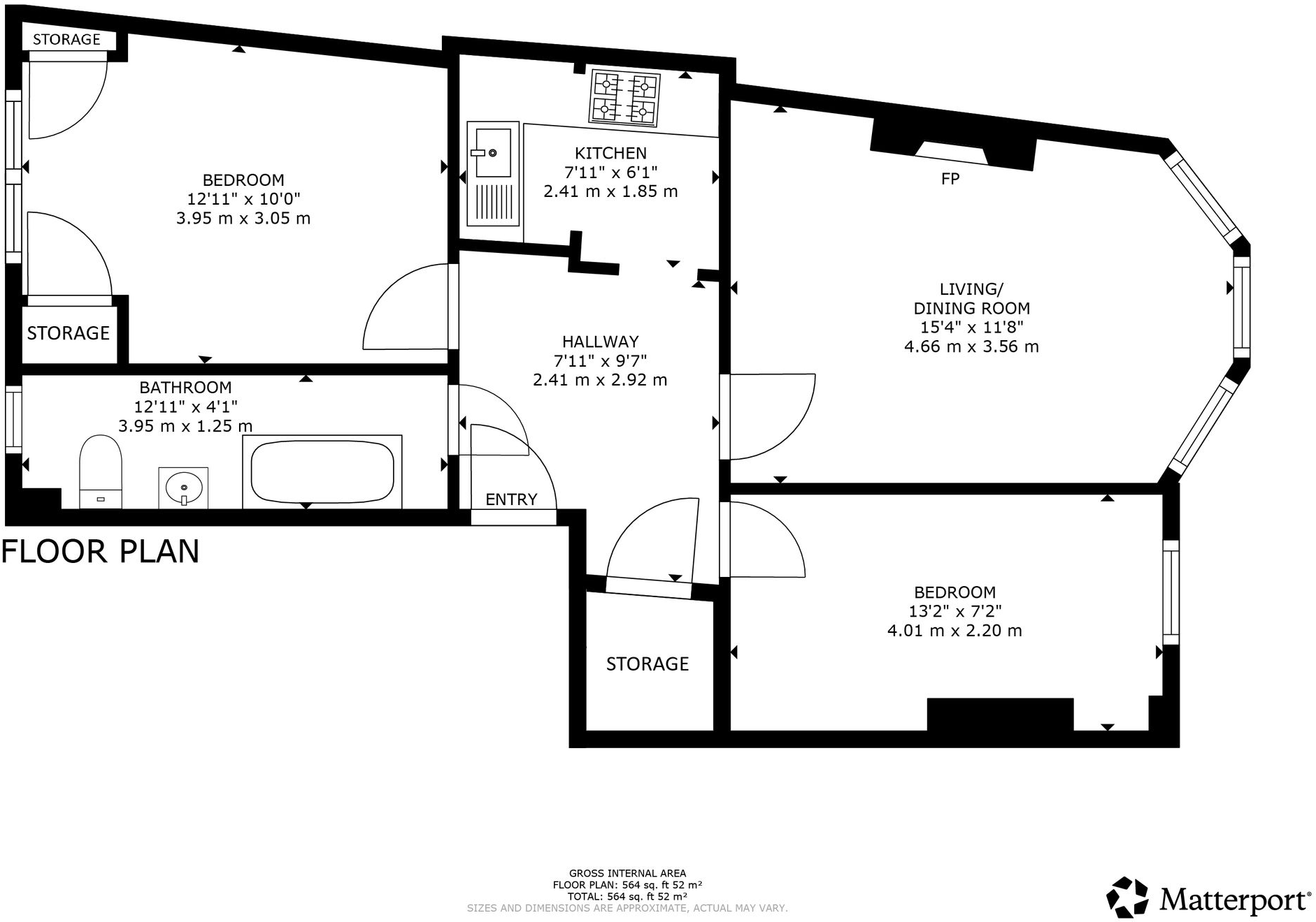
Located at ground floor level of an attractive, red sandstone tenement this two bedroom apartment offers bright, well-appointed living space.
Property Oracle says ..
This is a two-bedroom flat in the Thornwood area of Glasgow. The property is in reasonable condition, although some modernisation may be required. The property benefits from a small garden to the front and a shared garden to the rear. The property is well-located for local amenities and transportation links. The list price of £139,000 represents fair value for money.
Therefore, we give this property 6 / 10. *Disclaimer: This is our option and does constitute a recommendation or financial advice. Do your own research. *
- Price
- 7
- Condition
- 6
- Location
- 7
- Land
- 5
- Bedrooms
- 2
- Bathrooms
- 1
- Sqft (est)
- 580.50
The heatmap indicates the level of crime in the area. The color of the heatmap indicates the crime severity and recency.
Metrics Year-on-Year
- Average area value
- 211,368.00 £Decreased by 19.75 %
- Est sale value
- 159,057.00 £Decreased by 16.46 %
- Average area rental value
- 1,169.00 £/moDecreased by 9.73 %
- Est letting value
- 580.50 £/moUnchanged by 0.00 %
- Est rental Yield
- 6.64 %Increased by 12.54 %
- Crime Rate
- 0.00 %
Agent Activity
Clyde Property created the listing.
Images
Nearby Streets
| Name | Average Price | Average Sqft | Distance |
|---|---|---|---|
| Maule Drive | £ 0 | 0 | 0.00 KM |
| Exeter Lane | £ 0 | 0 | 0.00 KM |
| Exeter Drive | £ 0 | 0 | 0.00 KM |
| Apsley Lane | £ 89,000 | 0 | 0.00 KM |
| Ardery Street | £ 0 | 0 | 0.00 KM |
Nearby Transport
| Name | NLC | TLC | Distance |
|---|---|---|---|
| Hyndland | 9845 | HYN | 1.17 KM |
| Partick | 9917 | PTK | 1.28 KM |
| Jordanhill | 9995 | JOR | 1.41 KM |
| Anniesland | 9972 | ANL | 2.06 KM |
| Kelvindale | 1655 | KVD | 2.78 KM |
Nearby Listings
| Address | Price | Type | Score | Distance |
|---|---|---|---|---|
| Auchentorlie Street, Flat 0/2, Thornwood, Glasgow, G11 7TP | £ 139,000 | BUY | 6 / 10 | 0.00 KM |
| 1/1 15 Kennoway Drive, Thornwood, Glasgow, G11 | £ 180,000 | BUY | Unknown | 0.06 KM |
| Dumbarton Road, Flat 2/1, Thornwood, Glasgow, G11 6RA | £ 155,000 | BUY | Unknown | 0.07 KM |
| Kennoway Drive, Thornwood, Glasgow, City of Glasgow, G11 7TZ | £ 130,000 | BUY | Unknown | 0.07 KM |
| Dumbarton Road, Thornwood, Glasgow, G11 | £ 120,000 | BUY | 4 / 10 | 0.08 KM |