HA
Smith Barry Circus, Upper Rissington, GL54
By Harvey Holland
£ 950,000
Reviews
3 out of 5 stars
Harvey Holland says ..
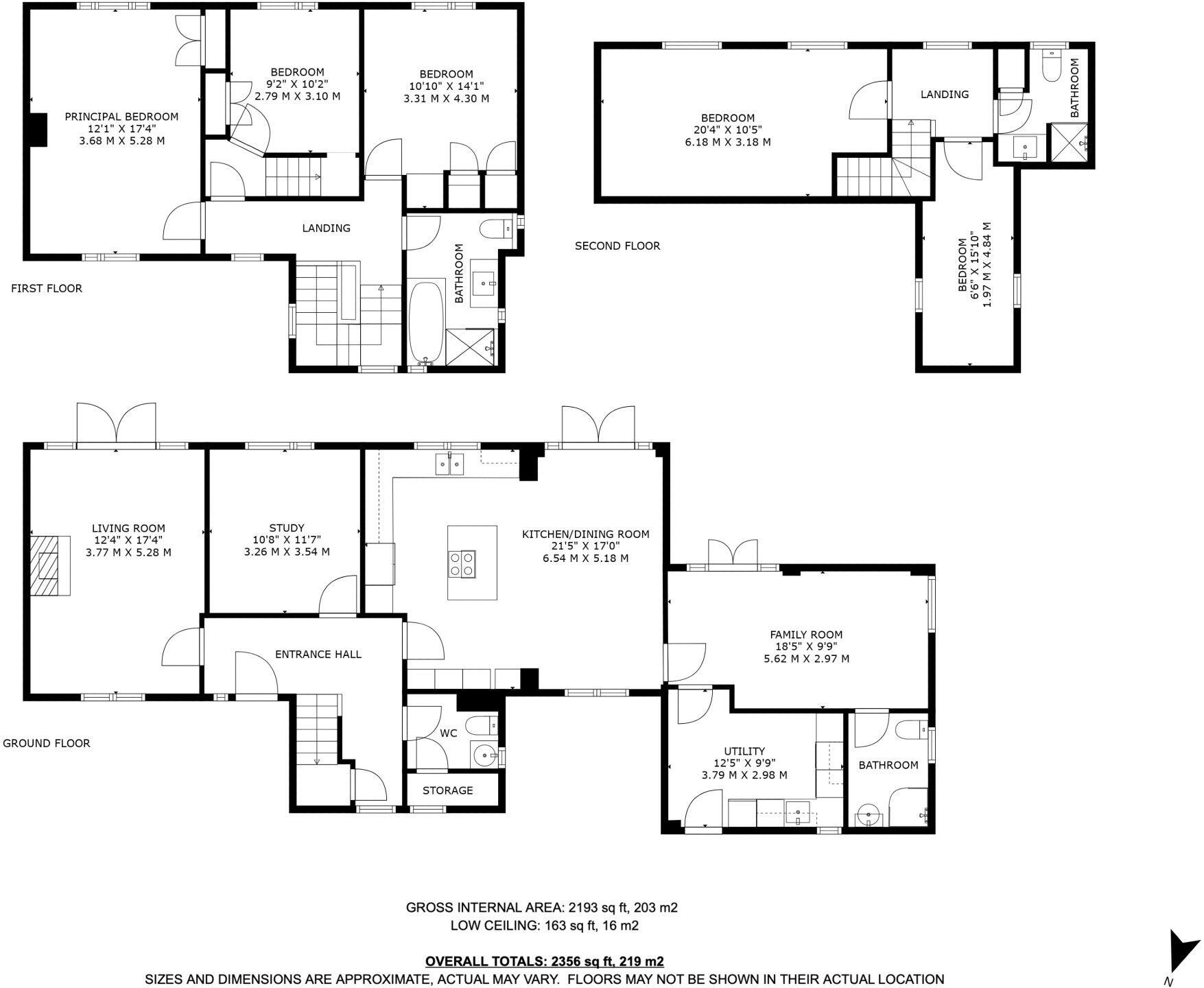
Spacious family home with gardens and nature views
Property Oracle says ..
Therefore, we give this property 7 / 10. *Disclaimer: This is our option and does constitute a recommendation or financial advice. Do your own research. *
- Price
- 5
- Condition
- 8
- Location
- 9
- Land
- 9
- Bedrooms
- 5
- Bathrooms
- 2
- Sqft (est)
- 1,773.25
The heatmap indicates the level of crime in the area. The color of the heatmap indicates the crime severity and recency.
Metrics Year-on-Year
- Average area value
- 241,538.00 £Decreased by 4.18 %
- Est sale value
- 491,190.25 £Increased by 2.97 %
- Average area rental value
- 846.00 £/moIncreased by 4.19 %
- Est letting value
- 0.00 £/mo
- Est rental Yield
- 4.20 %Increased by 8.53 %
- Crime Rate
- 17.00 %Unchanged by 0.00 %
from 252,064.00 £
from 477,004.25 £
from 812.00 £/mo
from 0.00 £/mo
from 3.87 %
from 17.00 %
Agent Activity
Harvey Holland created the listing.
Nearby Schools
| Name | Type | Ofsted | Distance |
|---|---|---|---|
| The Rissington School | Community School | Outstanding | 3.01 KM |
| Springboard Children'S Centre (Stow) | Children's Centre | 6.37 KM | |
| Stow-On-The-Wold Primary School | Community School | Good | 6.46 KM |
| Bledington Primary School | Community School | Outstanding | 6.68 KM |
| The Cotswold Academy | Academy Converter | Outstanding | 7.03 KM |
Images
Nearby Streets
| Name | Average Price | Average Sqft | Distance |
|---|---|---|---|
| Lancaster Drive | £ 0 | 0 | 0.00 KM |
| Hurricane Close | £ 0 | 0 | 0.00 KM |
| Sandy Lane | £ 509,167 | 0 | 0.00 KM |
| Manor House Cottages | £ 0 | 0 | 0.00 KM |
Nearby Transport
| Name | NLC | TLC | Distance |
|---|---|---|---|
| Kingham | 3008 | KGM | 7.97 KM |
Nearby Listings
| Address | Price | Type | Score | Distance |
|---|---|---|---|---|
| Smith Barry Circus, Upper Rissington, GL54 | £ 950,000 | BUY | 7 / 10 | 0.00 KM |
| Godfrey Place, Upper Rissington, GL54 | £ 320,000 | BUY | Unknown | 0.32 KM |
| Beechcraft Road, Upper Rissington | £ 450,000 | BUY | 7 / 10 | 0.38 KM |
| Westland Close, Upper Rissington, Cheltenham. GL54 2RF | £ 465,000 | BUY | 7 / 10 | 0.39 KM |
| Lutyens Court, Upper Rissington | £ 450,000 | BUY | 8 / 10 | 0.39 KM |
Nearby Properties
| Address | Price | Distance |
|---|---|---|
| 4 Smith Barry Circus | £ 175,000 | 0.05 KM |
| 6 Smith Barry Circus | £ 875,000 | 0.05 KM |
| 8 Smith Barry Circus | £ 765,000 | 0.05 KM |
| 5 Smith Barry Circus | £ 485,000 | 0.06 KM |
| 7 Smith Barry Circus | £ 377,500 | 0.06 KM |