North End Way, London, NW3
By Jeremy Leaf & Co
£ 1,600,000
Reviews
2 out of 5 stars
Jeremy Leaf & Co says ..
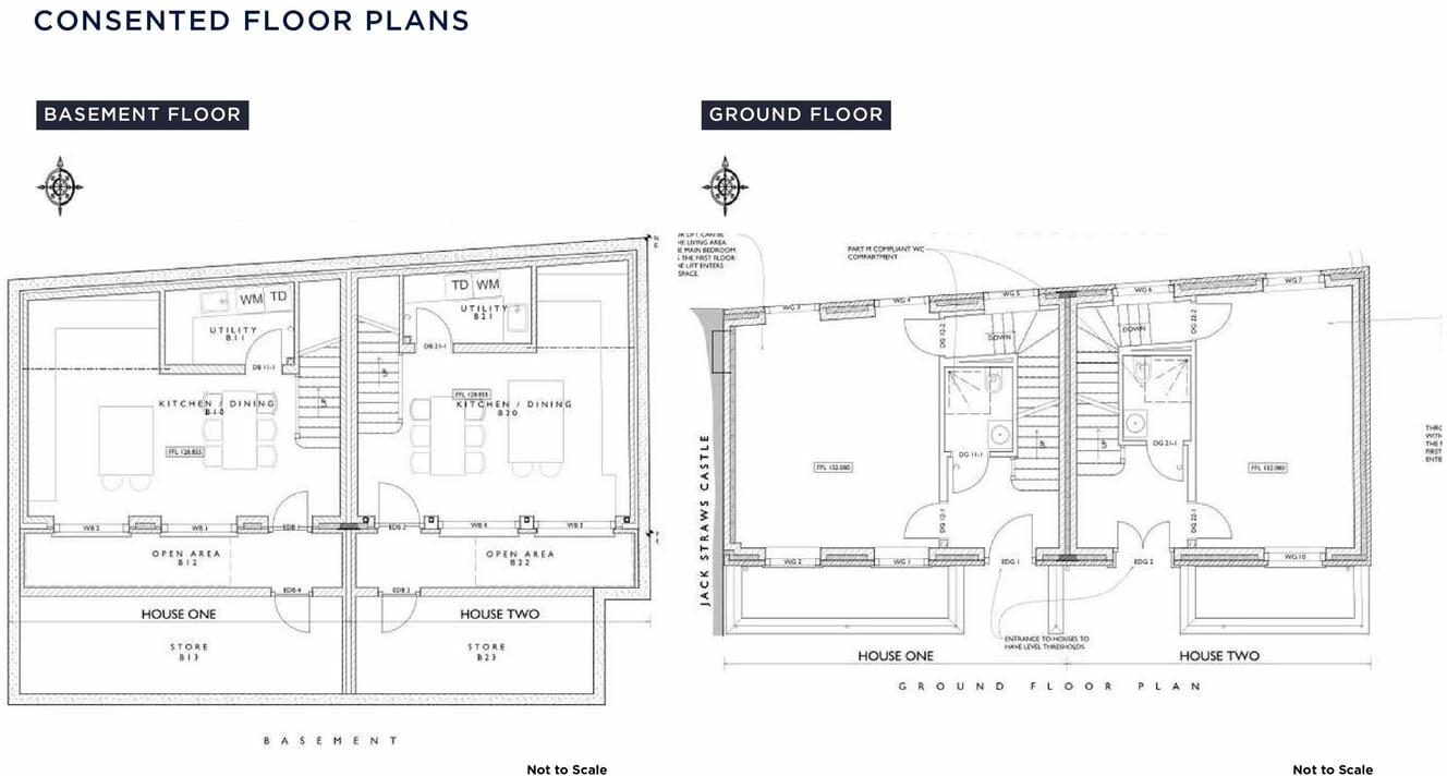
Cleared site with planning consent for 2x 4 bed/3 bath houses in a prime location adjacent to Hampstead Heath.
Property Oracle says ..
This property is a cleared site in Hampstead, London, with planning permission for two four-bedroom houses. The location in NW3, near Hampstead Heath and with several nearby schools, is highly desirable. Hampstead’s prime location in North West London and its affluent character generally attract strong property prices. While the £1,600,000 list price seems potentially reasonable considering the prime location and the potential return from building two houses, buyers should carefully factor in the costs and uncertainties inherent in new construction projects. The lack of current dwelling details prevents detailed condition analysis. The provided image depicts a partially constructed area, suggesting that this property is intended for development and not immediate residential use. Access to local amenities, including good schools, adds significantly to the value of this land, but the lack of current building and land details makes precise assessment of this property challenging. More precise data, such as sq ft measurements of the land, would allow for a more comprehensive assessment and market value calculation.
Therefore, we give this property 5 / 10. *Disclaimer: This is our option and does constitute a recommendation or financial advice. Do your own research. *
- Price
- 7
- Condition
- 5
- Location
- 9
- Land
- 2
- Bedrooms
- 0
- Bathrooms
- 0
The heatmap indicates the level of crime in the area. The color of the heatmap indicates the crime severity and recency.
Metrics Year-on-Year
- Average area value
- 2,218,571.00 £Increased by 9.99 %
- Average area rental value
- 3,652.00 £/moIncreased by 18.30 %
- Est rental Yield
- 1.98 %Increased by 7.61 %
- Crime Rate
- 2.00 %Unchanged by 0.00 %
Agent Activity
Jeremy Leaf & Co created the listing.
Nearby Schools
| Name | Type | Ofsted | Distance |
|---|---|---|---|
| Christ Church Primary School, Hampstead | Voluntary Aided School | Outstanding | 0.57 KM |
| Heathside Preparatory School | Other Independent School | Requires improvement | 0.64 KM |
| New End Primary School | Community School | Good | 0.67 KM |
| Hampstead Parochial Church Of England Primary School | Voluntary Aided School | Good | 0.74 KM |
| St Anthony'S School For Girls | Other Independent School | 0.85 KM |
Images
Nearby Streets
| Name | Average Price | Average Sqft | Distance |
|---|---|---|---|
| Stamford Close | £ 0 | 0 | 0.00 KM |
| Wildwood Terrace | £ 0 | 0 | 0.00 KM |
| Holly Berry Lane | £ 0 | 0 | 0.00 KM |
| Cannon Lane | £ 15,000,000 | 0 | 0.00 KM |
| Church Row | £ 850,000 | 0 | 0.00 KM |
Nearby Transport
| Name | NLC | TLC | Distance |
|---|---|---|---|
| Finchley Road And Frognal | 1445 | FNY | 1.45 KM |
| Hampstead Heath | 1413 | HDH | 1.82 KM |
| West Hampstead Thameslink | 1525 | WHP | 2.06 KM |
| West Hampstead | 1421 | WHD | 2.11 KM |
| South Hampstead | 1451 | SOH | 2.40 KM |
Nearby Listings
| Address | Price | Type | Score | Distance |
|---|---|---|---|---|
| North End Way, London, NW3 | £ 1,600,000 | BUY | 5 / 10 | 0.00 KM |
| Jack Straws Castle North End Way, Hampstead, NW3 | £ 995,000 | BUY | 8 / 10 | 0.02 KM |
| Jack Straws Castle, North End Way, Hampstead, London, NW3 | £ 1,780,000 | BUY | 7 / 10 | 0.02 KM |
| Jack Straws Castle Hampstead Heath NW3 | £ 1,395,000 | BUY | Unknown | 0.02 KM |
| Jack Straws Castle, North End Way, Hampstead, London, NW3 | £ 995,000 | BUY | 7 / 10 | 0.02 KM |
Nearby Properties
| Address | Price | Distance |
|---|---|---|
| The Old Cottage | £ 2,290,000 | 0.34 KM |
| Chestnut Cottage | £ 4,775,000 | 0.34 KM |
| 32 Hampstead Grove | £ 5,300,000 | 0.37 KM |
| 42 Hampstead Grove | £ 1,725,000 | 0.37 KM |
| 38 Hampstead Grove | £ 2,615,000 | 0.37 KM |