Clarkes Estates says ..
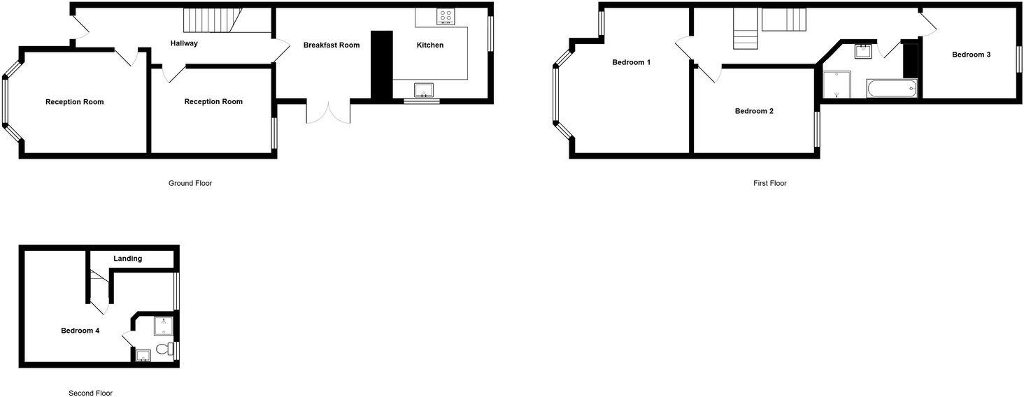
Located on the edge of Bognor Regis town centre is this CHAIN FREE, REFURBISHED and beautifully presented four-bedroom semi-detached home with THREE RECEPTION ROOMS, modern fitted kitchen with integrated appliances, and TWO BATHROOMS. Original features such as open fireplaces, wood panelling, ...
Property Oracle says ..
This is a four-bedroom semi-detached house on Sturges Road, Bognor Regis. The property benefits from its Marine locality, offering proximity to the beach, local amenities, and transportation links, including Bognor Regis train station. The house has been modernised, featuring a contemporary kitchen and updated bathrooms, while retaining some traditional features. The property includes a small garden. The asking price of £385,000 seems reasonable given the property’s condition, size (930 sqft), and location, especially when compared to the average price per square foot in the area.
Therefore, we give this property 6 / 10. *Disclaimer: This is our option and does constitute a recommendation or financial advice. Do your own research. *
- Price
- 7
- Condition
- 8
- Location
- 7
- Land
- 5
- Bedrooms
- 4
- Bathrooms
- 2
- Sqft (est)
- 930.00
The heatmap indicates the level of crime in the area. The color of the heatmap indicates the crime severity and recency.
Metrics Year-on-Year
- Average area value
- 417,776.00 £Increased by 5.86 %
- Est sale value
- 500,340.00 £Increased by 29.95 %
- Average area rental value
- 1,253.00 £/moDecreased by 3.76 %
- Est letting value
- 930.00 £/moUnchanged by 0.00 %
- Est rental Yield
- 3.60 %Decreased by 9.09 %
- Crime Rate
- 24.00 %Unchanged by 0.00 %
Agent Activity
Clarkes Estates created the listing.
Nearby Schools
| Name | Type | Ofsted | Distance |
|---|---|---|---|
| Bognor Regis Nursery School | Local Authority Nursery School | Outstanding | 0.34 KM |
| Bognor Children And Family Centre | Children's Centre | 0.36 KM | |
| Edward Bryant School | Academy Converter | Good | 0.72 KM |
| St Mary'S Catholic Primary School | Voluntary Aided School | Good | 0.78 KM |
| South Bersted Cofe Primary School | Voluntary Controlled School | Good | 1.11 KM |
Images
Nearby Streets
| Name | Average Price | Average Sqft | Distance |
|---|---|---|---|
| Fletcher Way | £ 0 | 0 | 0.00 KM |
| Stanley Close | £ 90,000 | 0 | 0.00 KM |
| York Road | £ 0 | 0 | 0.00 KM |
| Hawthorn Road | £ 265,000 | 0 | 0.00 KM |
| Gordon Avenue | £ 0 | 0 | 0.00 KM |
Nearby Transport
| Name | NLC | TLC | Distance |
|---|---|---|---|
| Bognor Regis | 5253 | BOG | 0.28 KM |
| Barnham | 5252 | BAA | 6.55 KM |
Nearby Listings
| Address | Price | Type | Score | Distance |
|---|---|---|---|---|
| Sturges Road, Bognor Regis | £ 415,000 | BUY | 7 / 10 | 0.00 KM |
| Sturges Road, Bognor Regis | £ 385,000 | BUY | 6 / 10 | 0.00 KM |
| Sturges Road, Deal House, PO21 | £ 140,000 | BUY | 7 / 10 | 0.02 KM |
| Sturges Road, Bognor Regis | £ 440,000 | BUY | 8 / 10 | 0.05 KM |
| Ockley Road, Bognor Regis, West Sussex, PO21 | £ 200,000 | BUY | 5 / 10 | 0.06 KM |
Nearby Properties
| Address | Price | Distance |
|---|---|---|
| 4 Sturges Road | £ 305,000 | 0.01 KM |
| 18 Sturges Road | £ 410,000 | 0.01 KM |
| 1 Sturges Road | £ 149,950 | 0.01 KM |
| 20 Sturges Road | £ 500,000 | 0.01 KM |
| 9a Sturges Road | £ 155,000 | 0.01 KM |