Redwood Walk, Surbiton
MA

Redwood Walk, Surbiton

By Matthew James

£ 1,175,000

Reviews

4 out of 5 stars

Matthew James says ..

An outstanding, spacious linked detached house with extensive flexible accommodation. Located within the highly desirable Southborough Estate on a very quiet private road. Surbiton mainline station and high street are within walking distance. The many benefits include a large dual-aspect living r...

Property Oracle says ..

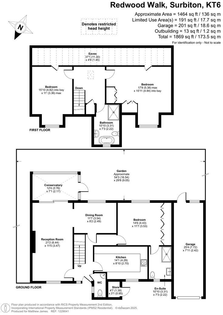
This property is located in Redwood Walk, Surbiton, a desirable area in Kingston Upon Thames. The area benefits from excellent transport links via Surbiton train station, providing easy access to London Waterloo. The property itself is a three-bedroom, two-bathroom house with a significant plot size of 1,869 sqft. Based on the provided images, the property appears to be well-maintained and in good condition, with modern updates to the kitchen and bathrooms. The presence of a conservatory and a well-landscaped garden adds to its appeal. The list price of £1,175,000 is higher than the average price for the area (£758,992), but considering the property’s size (2,958 sqft), condition, and desirable location, the price may be justified. However, a comprehensive valuation from a local estate agent would be recommended to confirm this.

Therefore, we give this property 8 / 10. *Disclaimer: This is our option and does constitute a recommendation or financial advice. Do your own research. *

Price
7
Condition
9
Location
9
Land
8
Bedrooms
3
Bathrooms
2
Sqft (est)
2,958.57
Lot (est)
1,869.00

The heatmap indicates the level of crime in the area. The color of the heatmap indicates the crime severity and recency.

Metrics Year-on-Year

Average area value
887,143.00 £
Increased by 60.41 %
from 553,030.00 £
Est sale value
2,100,584.70 £
Decreased by 7.67 %
from 2,275,140.33 £
Average area rental value
2,469.00 £/mo
Increased by 31.61 %
from 1,876.00 £/mo
Est letting value
2,958.57 £/mo
Decreased by 50.00 %
from 5,917.14 £/mo
Est rental Yield
3.34 %
Decreased by 17.94 %
from 4.07 %
Crime Rate
0.00 %
from 0.00 %

Agent Activity

  • Matthew James created the listing.

Nearby Schools

NameTypeOfstedDistance
Shrewsbury House SchoolOther Independent School0.17 KM
Southborough High SchoolAcademy ConverterGood0.81 KM
St Matthew'S Cofe Primary SchoolVoluntary Aided SchoolGood1.02 KM
Long Ditton Village Sure Start Children'S CentreChildren's Centre Linked Site1.06 KM
Surbiton Town Children'S CentreChildren's Centre Linked Site1.07 KM

Images

1229041 (1).jpg 1229041 (3).jpg 1229041 (5).jpg 1229041 (4).jpg 1229041 (17).jpg 1229041 (2).jpg 1229041 (16).jpg 1229041 (12).jpg 1229041 (6).jpg 1229041 (8).jpg 1229041 (7).jpg 1229041 (11).jpg 1229041 (13).jpg 1229041 (14).jpg 1229041 (15).jpg 1229041 (9).jpg 1229041 (18).jpg 1229041 (10).jpg

Nearby Streets

NameAverage PriceAverage SqftDistance
Ditton Grange Close £ 000.00 KM
Ditton Grange Drive £ 675,83300.00 KM
The Drive £ 000.00 KM
Sylvan Gardens £ 000.00 KM
Sunningdale Close £ 000.00 KM

Nearby Transport

NameNLCTLCDistance
Surbiton5571SUR1.21 KM
Chessington North5582CSN2.06 KM
Chessington South5554CSS2.82 KM
Tolworth5573TOL3.00 KM
Berrylands5581BRS3.41 KM

Nearby Listings

AddressPriceTypeScoreDistance
Redwood Walk, Surbiton £ 1,175,000BUY8 / 100.00 KM
Malcolm Drive, Surbiton £ 1,250,000BUY6 / 100.08 KM
Malcolm Drive, Surbiton, KT6 £ 1,500,000BUY8 / 100.15 KM
Ditton Road, Surbiton £ 1,750,000BUY7 / 100.17 KM
Dunton Close, Surbiton £ 1,100,000BUY6 / 100.23 KM

Nearby Properties

AddressPriceDistance
3 Redwood Walk £ 950,0000.01 KM
2 Redwood Walk £ 860,0000.01 KM
26 Langley Avenue £ 836,0000.14 KM
30 Langley Avenue £ 1,170,0000.14 KM
20a Langley Avenue £ 1,885,0000.14 KM