Pennys says ..
A Beautifully Presented And Extended 1930’s Semi Detached House Located In A Favoured And Convenient Location With Beautiful Sunny Aspect Rear Garden, Driveway And Garage
Property Oracle says ..
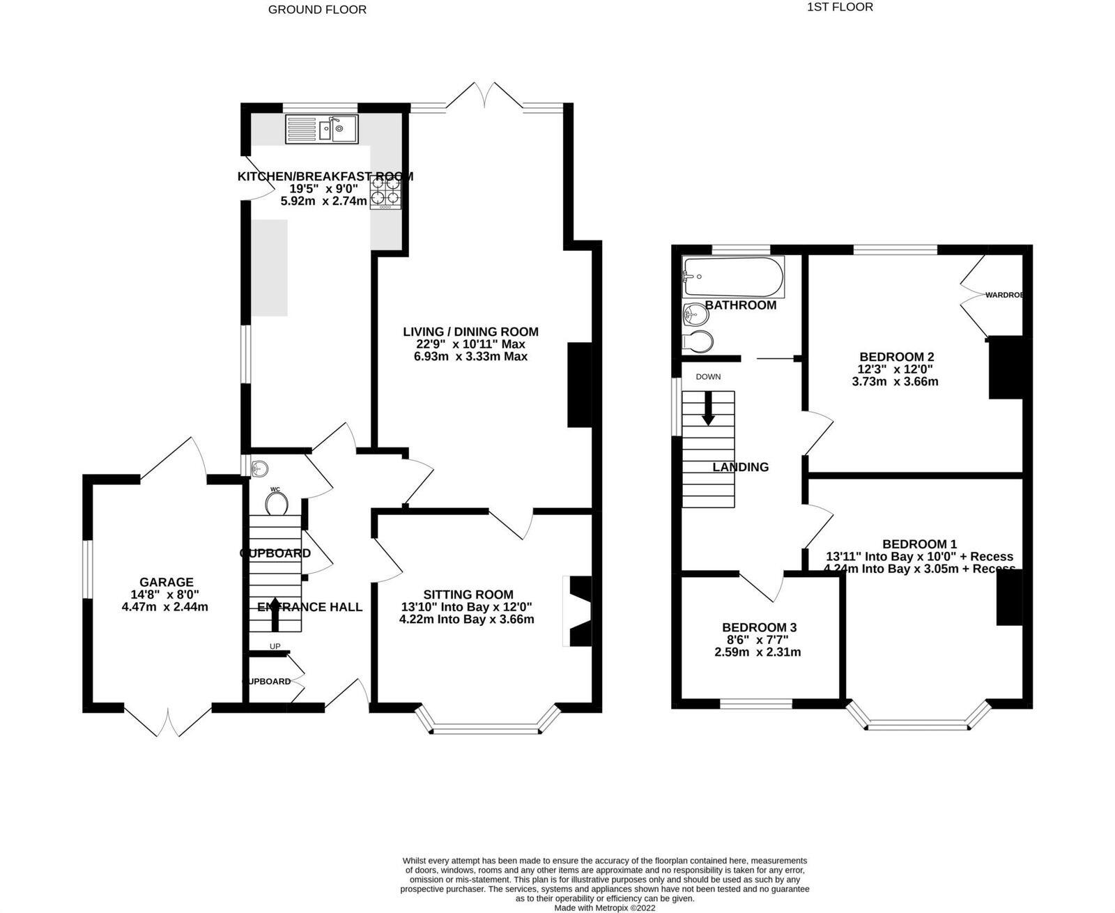
This property is a 3-bedroom semi-detached house located in Exmouth, Devon. The house is in good condition and has been recently updated in places, with a modern kitchen and bathroom. There is a good-sized garden with a shed and greenhouse. The location is good, with easy access to local amenities and transport links. The property is priced slightly above the average for the area, but considering its condition and features, it represents reasonable value for money.
Therefore, we give this property 7 / 10. *Disclaimer: This is our option and does constitute a recommendation or financial advice. Do your own research. *
- Price
- 7
- Condition
- 8
- Location
- 8
- Land
- 7
- Bedrooms
- 3
- Bathrooms
- 1
- Sqft (est)
- 1,493.28
The heatmap indicates the level of crime in the area. The color of the heatmap indicates the crime severity and recency.
Metrics Year-on-Year
- Average area value
- 391,731.00 £Decreased by 6.30 %
- Est sale value
- 492,782.40 £Decreased by 27.79 %
- Average area rental value
- 1,432.00 £/moIncreased by 19.33 %
- Est letting value
- 1,493.28 £/moUnchanged by 0.00 %
- Est rental Yield
- 4.39 %Increased by 27.62 %
- Crime Rate
- 4.00 %Unchanged by 0.00 %
Agent Activity
Pennys created the listing.
Nearby Schools
| Name | Type | Ofsted | Distance |
|---|---|---|---|
| Exmouth Community College | Academy Converter | Requires improvement | 0.94 KM |
| Withycombe Raleigh Church Of England Primary School | Voluntary Controlled School | Good | 1.07 KM |
| Brixington Primary Academy | Academy Sponsor Led | Requires improvement | 1.43 KM |
| Exmouth & District Children'S Centre | Children's Centre | 1.46 KM | |
| Exeter Road Community Primary School | Foundation School | Good | 1.56 KM |
Images
Nearby Streets
| Name | Average Price | Average Sqft | Distance |
|---|---|---|---|
| Seymour Road | £ 0 | 0 | 0.00 KM |
| Orchard Close | £ 440,000 | 0 | 0.00 KM |
| Pound Lane | £ 0 | 0 | 0.00 KM |
| Shackleton Close | £ 0 | 0 | 0.00 KM |
| Victoria Gardens | £ 375,000 | 0 | 0.00 KM |
Nearby Transport
| Name | NLC | TLC | Distance |
|---|---|---|---|
| Exmouth | 5756 | EXM | 1.80 KM |
| Lympstone Village | 5761 | LYM | 3.02 KM |
| Starcross | 3413 | SCS | 4.60 KM |
| Lympstone Commando | 5762 | LYC | 4.78 KM |
| Exton | 5760 | EXN | 5.49 KM |
Nearby Listings
| Address | Price | Type | Score | Distance |
|---|---|---|---|---|
| Featherbed Lane, Exmouth, EX8 3NE | £ 475,000 | BUY | 7 / 10 | 0.00 KM |
| Featherbed Lane, Exmouth, EX8 3NE | £ 460,000 | BUY | Unknown | 0.00 KM |
| Seymour Road, Exmouth, Devon | £ 400,000 | BUY | 6 / 10 | 0.06 KM |
| Featherbed Lane, Exmouth, Devon, EX8 | £ 475,000 | BUY | 6 / 10 | 0.07 KM |
| Featherbed Lane, Exmouth, Devon, EX8 | £ 450,000 | BUY | Unknown | 0.09 KM |
Nearby Properties
| Address | Price | Distance |
|---|---|---|
| 56 Featherbed Lane | £ 483,320 | 0.01 KM |
| 25 Featherbed Lane | £ 371,000 | 0.01 KM |
| 52 Featherbed Lane | £ 350,000 | 0.01 KM |
| 40 Featherbed Lane | £ 430,000 | 0.01 KM |
| 30 Featherbed Lane | £ 251,500 | 0.01 KM |