HO
Rolleston On Dove, Burton On Trent
By Hopkins & Dainty
£ 419,995
Reviews
3 out of 5 stars
Hopkins & Dainty says ..
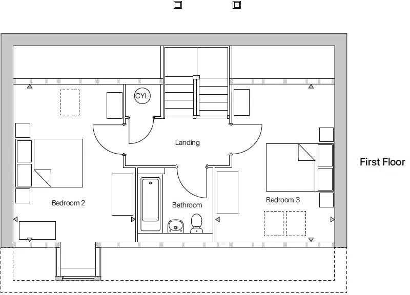
OPEN 7 DAYS A WEEK - HOPKINS & DAINTY of TICKNALL are pleased to offer THE BRAMBLE. A BRAND NEW HOME on the edge of Rolleston On Dove, near Burton. The BRAMBLE is a two storey detached dormer bungalow, offering well appointed and spacious living accommodation, on a generous garden plot; with...
Property Oracle says ..
Therefore, we give this property 7 / 10. *Disclaimer: This is our option and does constitute a recommendation or financial advice. Do your own research. *
- Price
- 6
- Condition
- 9
- Location
- 7
- Land
- 7
- Bedrooms
- 2
- Bathrooms
- 2
- Sqft (est)
- 323.00
The heatmap indicates the level of crime in the area. The color of the heatmap indicates the crime severity and recency.
Metrics Year-on-Year
- Average area value
- 476,875.00 £Increased by 24.90 %
- Est sale value
- 130,815.00 £Increased by 25.39 %
- Average area rental value
- 1,814.00 £/moIncreased by 18.80 %
- Est letting value
- 323.00 £/moUnchanged by 0.00 %
- Est rental Yield
- 4.56 %Decreased by 5.00 %
- Crime Rate
- 6.00 %Unchanged by 0.00 %
from 381,806.00 £
from 104,329.00 £
from 1,527.00 £/mo
from 323.00 £/mo
from 4.80 %
from 6.00 %
Agent Activity
Hopkins & Dainty created the listing.
Nearby Schools
| Name | Type | Ofsted | Distance |
|---|---|---|---|
| John Of Rolleston Primary School | Academy Converter | 0.40 KM | |
| The Fountains Primary School | Academy Special Converter | 1.37 KM | |
| The Fountains High School | Academy Special Converter | 1.37 KM | |
| St Modwen'S Catholic Primary School | Voluntary Aided School | Good | 1.49 KM |
| Outwoods Primary School | Academy Converter | 1.56 KM |
Images
Nearby Streets
| Name | Average Price | Average Sqft | Distance |
|---|---|---|---|
| Wragg Close | £ 0 | 0 | 0.00 KM |
| Craythorne Road | £ 424,995 | 0 | 0.00 KM |
| Field Drive | £ 0 | 0 | 0.00 KM |
| Sherholt Road | £ 385,000 | 0 | 0.00 KM |
| Newbury Drive | £ 0 | 0 | 0.00 KM |
Nearby Transport
| Name | NLC | TLC | Distance |
|---|---|---|---|
| Burton-On-Trent | 1658 | BUT | 4.24 KM |
| Tutbury And Hatton | 1783 | TUT | 4.72 KM |
| Willington | 1905 | WIL | 9.07 KM |
Nearby Listings
| Address | Price | Type | Score | Distance |
|---|---|---|---|---|
| Rolleston On Dove, Burton On Trent | £ 354,995 | BUY | 7 / 10 | 0.00 KM |
| Rolleston On Dove, Burton On Trent | £ 409,995 | BUY | 7 / 10 | 0.00 KM |
| Rolleston On Dove, Burton On Trent | £ 424,995 | BUY | 7 / 10 | 0.00 KM |
| Rolleston On Dove, Burton On Trent | £ 419,995 | BUY | 7 / 10 | 0.00 KM |
| Wragg Close, Off Craythorne Road, Rolleston on Dove | £ 424,995 | BUY | Unknown | 0.07 KM |
Nearby Properties
| Address | Price | Distance |
|---|---|---|
| 15 Meadow Fields | £ 375,000 | 0.18 KM |
| 14 Meadow Fields | £ 320,000 | 0.18 KM |
| 18 Meadow Fields | £ 376,000 | 0.18 KM |
| 8 Meadow Fields | £ 550,000 | 0.18 KM |
| 22 Meadow Fields | £ 360,000 | 0.18 KM |