FO
Haye Close, Lyme Regis, Dorset, DT7
By Fortnam Smith & Banwell
£ 420,000
Reviews
3 out of 5 stars
Fortnam Smith & Banwell says ..
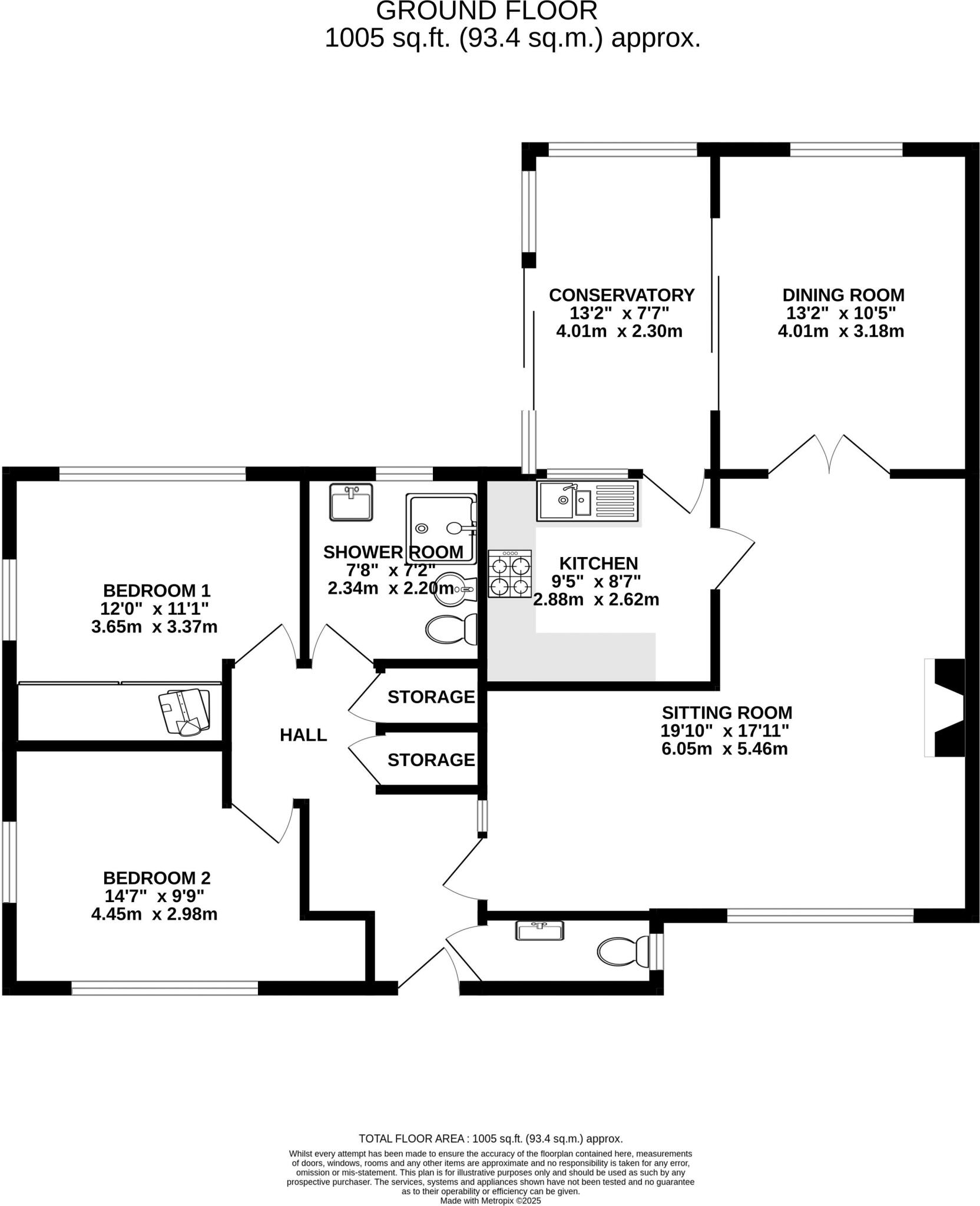
Situated within easy reach of the town centre and the seafront this semi detached bungalow with some views and private gardens is set at the head of a popular and peaceful cul de sac. It is estimated to have been built in the late 1960s/70’s.
Property Oracle says ..
Therefore, we give this property 7 / 10. *Disclaimer: This is our option and does constitute a recommendation or financial advice. Do your own research. *
- Price
- 8
- Condition
- 6
- Location
- 8
- Land
- 7
- Bedrooms
- 2
- Bathrooms
- 1
- Sqft (est)
- 1,005.00
The heatmap indicates the level of crime in the area. The color of the heatmap indicates the crime severity and recency.
Metrics Year-on-Year
- Average area value
- 547,942.00 £Decreased by 8.74 %
- Est sale value
- 457,275.00 £Decreased by 25.04 %
- Average area rental value
- 1,256.00 £/moIncreased by 35.78 %
- Est letting value
- 1,005.00 £/mo
- Est rental Yield
- 2.75 %Increased by 48.65 %
- Crime Rate
- 1.00 %Unchanged by 0.00 %
from 600,447.00 £
from 610,035.00 £
from 925.00 £/mo
from 0.00 £/mo
from 1.85 %
from 1.00 %
Agent Activity
Fortnam Smith & Banwell created the listing.
Nearby Schools
| Name | Type | Ofsted | Distance |
|---|---|---|---|
| The Woodroffe School | Foundation School | Outstanding | 0.44 KM |
| St Michael'S Church Of England Voluntary Aided Primary School, Lyme Regis | Voluntary Aided School | Requires improvement | 1.29 KM |
| Beaminster And Lyme Regis Sure Start Children'S Centre | Children's Centre | 1.29 KM | |
| Mrs Ethelston'S Cofe Primary Academy | Academy Converter | Good | 1.67 KM |
| Charmouth Primary School | Community School | Requires improvement | 4.82 KM |
Images
Nearby Streets
| Name | Average Price | Average Sqft | Distance |
|---|---|---|---|
| Springhill | £ 0 | 0 | 0.00 KM |
| Manor Avenue | £ 0 | 0 | 0.00 KM |
| Mill Lane | £ 0 | 0 | 0.00 KM |
| Pine Walk | £ 0 | 0 | 0.00 KM |
| Dolphin Close | £ 0 | 0 | 0.00 KM |
Nearby Transport
| Name | NLC | TLC | Distance |
|---|---|---|---|
| Axminster | 5714 | AXM | 8.52 KM |
Nearby Listings
| Address | Price | Type | Score | Distance |
|---|---|---|---|---|
| Haye Close, Lyme Regis, Dorset, DT7 | £ 420,000 | BUY | 7 / 10 | 0.00 KM |
| Haye Close Lyme Regis | £ 430,000 | BUY | Unknown | 0.04 KM |
| Haye Gardens, Haye Lane, Lyme Regis | £ 820,000 | BUY | Unknown | 0.19 KM |
| Haye Lane, Lyme Regis | £ 850,000 | BUY | 8 / 10 | 0.20 KM |
| Uplyme Road, Lyme Regis, Dorset, DT7 | £ 181,000 | BUY | 5 / 10 | 0.23 KM |
Nearby Properties
| Address | Price | Distance |
|---|---|---|
| 14 St Georges Hill | £ 585,000 | 0.11 KM |
| 7 St Georges Hill | £ 420,000 | 0.11 KM |
| 4 St Georges Hill | £ 420,000 | 0.11 KM |
| 5 St Georges Hill | £ 485,000 | 0.11 KM |
| 9 St Georges Hill | £ 225,000 | 0.11 KM |