GA
Ash Court, King Edward Road, Knutsford
By Gascoigne Halman
£ 215,000
Reviews
3 out of 5 stars
Gascoigne Halman says ..
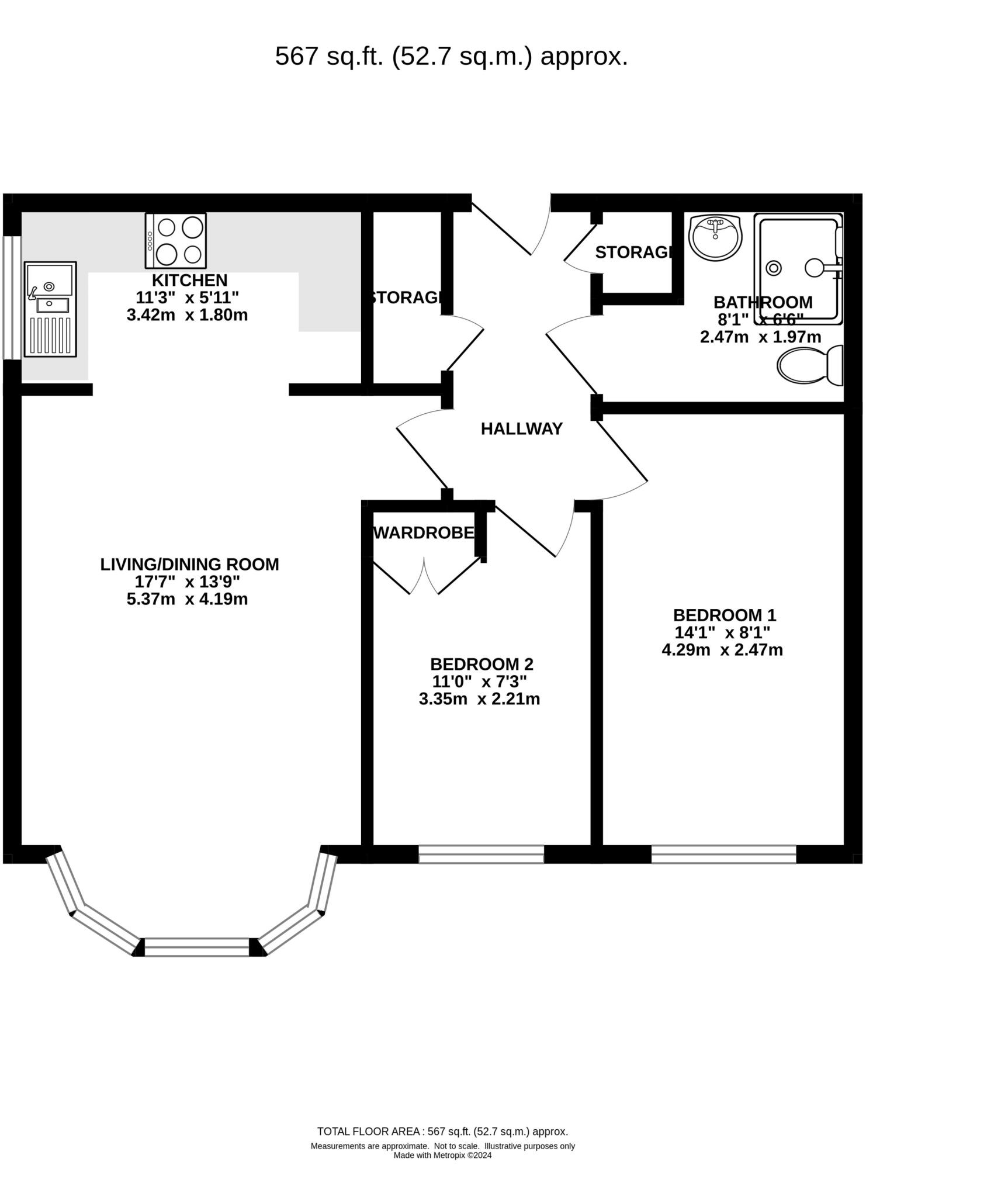
NO ONWARD CHAIN! Occupying a quiet corner position and therefore benefiting from only one adjoining neighbour, this immaculate second-floor apartment enjoys a sunny rear aspect within Ash Court, a sought-after retirement development for the over 60s. Ideally located, Ash Court is just steps f...
Property Oracle says ..
Therefore, we give this property 7 / 10. *Disclaimer: This is our option and does constitute a recommendation or financial advice. Do your own research. *
- Price
- 8
- Condition
- 7
- Location
- 8
- Land
- 6
- Bedrooms
- 2
- Bathrooms
- 1
- Sqft (est)
- 567.00
The heatmap indicates the level of crime in the area. The color of the heatmap indicates the crime severity and recency.
Metrics Year-on-Year
- Average area value
- 678,106.00 £Increased by 15.18 %
- Est sale value
- 332,262.00 £Increased by 35.96 %
- Average area rental value
- 1,651.00 £/moDecreased by 17.16 %
- Est letting value
- 567.00 £/moUnchanged by 0.00 %
- Est rental Yield
- 2.92 %Decreased by 28.08 %
- Crime Rate
- 82.00 %Unchanged by 0.00 %
from 588,724.00 £
from 244,377.00 £
from 1,993.00 £/mo
from 567.00 £/mo
from 4.06 %
from 82.00 %
Agent Activity
Gascoigne Halman created the listing.
Nearby Schools
| Name | Type | Ofsted | Distance |
|---|---|---|---|
| Egerton Primary School | Academy Converter | 0.07 KM | |
| Yorston Lodge School | Other Independent School | 0.41 KM | |
| Knutsford Academy | Academy Converter | Good | 0.67 KM |
| Cheshire Studio School | Studio Schools | Good | 0.67 KM |
| Bexton Primary School | Academy Converter | 1.07 KM |
Images
Nearby Streets
| Name | Average Price | Average Sqft | Distance |
|---|---|---|---|
| Elizabeth Gaskell Court | £ 0 | 0 | 0.00 KM |
| Drury Lane | £ 580,000 | 0 | 0.00 KM |
| Gloucester Road | £ 0 | 0 | 0.00 KM |
| Brook Lane | £ 0 | 0 | 0.00 KM |
| Woodvale Road | £ 1,000,000 | 0 | 0.00 KM |
Nearby Transport
| Name | NLC | TLC | Distance |
|---|---|---|---|
| Knutsford | 2848 | KNF | 0.47 KM |
| Mobberley | 2849 | MOB | 5.47 KM |
| Plumley | 2308 | PLM | 5.81 KM |
| Ashley | 2850 | ASY | 6.96 KM |
| Hale (Manchester) | 2845 | HAL | 8.96 KM |
Nearby Listings
| Address | Price | Type | Score | Distance |
|---|---|---|---|---|
| Ash Court, King Edward Road, Knutsford | £ 215,000 | BUY | 7 / 10 | 0.00 KM |
| King Edward Road, Ash Court King Edward Road, WA16 | £ 275,000 | BUY | 6 / 10 | 0.00 KM |
| King Edward Road, Ash Court King Edward Road, WA16 | £ 179,500 | BUY | 5 / 10 | 0.00 KM |
| King Edward Road, Ash Court King Edward Road, WA16 | £ 149,950 | BUY | 6 / 10 | 0.00 KM |
| King Edward Road, Ash Court King Edward Road, WA16 | £ 119,950 | BUY | 6 / 10 | 0.00 KM |
Nearby Properties
| Address | Price | Distance |
|---|---|---|
| 14 Regent Street | £ 295,000 | 0.19 KM |
| 11 Regent Street | £ 267,500 | 0.21 KM |
| 7 Regent Street | £ 287,000 | 0.21 KM |
| 5 Church View | £ 87,000 | 0.23 KM |
| 4 Church View | £ 375,000 | 0.23 KM |