Walter & Mair says ..
A most attractive detached 'Arts and Crafts' residence approaching 6000 square feet and occupying a south backing plot within the gates of the private and prestigious Webb Estate.
Property Oracle says ..
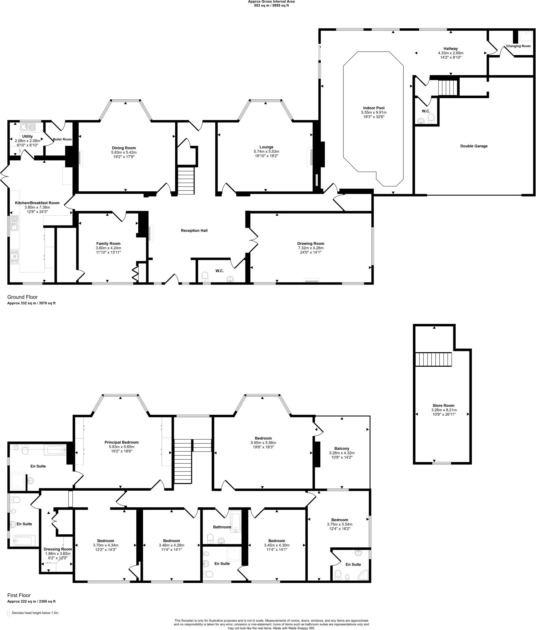
This property is a 6 bedroom, 5 bathroom detached house located in Purley, Surrey. The property is situated on a large plot with extensive gardens and boasts a swimming pool. The house itself appears to be well maintained and presented, displaying features consistent with a traditional style property that has undergone some modernisation. The location is excellent, with several highly-rated schools within a short distance, including The John Fisher School which has a ‘Good’ Ofsted rating. The proximity to multiple train stations provides convenient access to London and surrounding areas. Given the size of the property (4,675.96 sqft) and the generous plot size (5,955 sqft), the land score is high. The substantial garden offers ample space for outdoor activities and relaxation. While the property’s list price of £2,650,000 is significantly higher than the average price for the area (£620,217), it’s important to consider the significant differences in size and features. The average price per sqft in the area is £513, while this property is listed at a much lower price per sqft. Considering the property’s size, features (including the pool), condition, and location, the list price appears to be reasonable, although at the higher end of the market for the area. Further analysis of comparable properties in the immediate vicinity would provide a more precise valuation. Based on the images provided, the property appears to be in excellent condition. There is no visible evidence of wear and tear, and the interior is well-maintained and updated. The property also benefits from a modern kitchen.
Therefore, we give this property 9 / 10. *Disclaimer: This is our option and does constitute a recommendation or financial advice. Do your own research. *
- Price
- 8
- Condition
- 10
- Location
- 9
- Land
- 10
- Bedrooms
- 6
- Bathrooms
- 5
- Sqft (est)
- 4,675.96
- Lot (est)
- 5,955.00
The heatmap indicates the level of crime in the area. The color of the heatmap indicates the crime severity and recency.
Metrics Year-on-Year
- Average area value
- 616,068.00 £Decreased by 0.97 %
- Est sale value
- 2,749,464.48 £Increased by 27.00 %
- Average area rental value
- 1,898.00 £/moDecreased by 5.95 %
- Est letting value
- 4,675.96 £/moUnchanged by 0.00 %
- Est rental Yield
- 3.70 %Decreased by 4.88 %
- Crime Rate
- 0.00 %
Agent Activity
Walter & Mair created the listing.
Nearby Schools
| Name | Type | Ofsted | Distance |
|---|---|---|---|
| Laleham Lea School | Other Independent School | 0.51 KM | |
| Cumnor House School | Other Independent School | 0.56 KM | |
| The John Fisher School | Voluntary Aided School | Good | 0.64 KM |
| Woodcote High School | Academy Converter | Good | 1.24 KM |
| Woodcote Primary School | Academy Converter | 1.27 KM |
Images
Nearby Streets
| Name | Average Price | Average Sqft | Distance |
|---|---|---|---|
| Church Road | £ 0 | 0 | 0.00 KM |
| The Ridge | £ 0 | 0 | 0.00 KM |
| Badgers Walk | £ 0 | 0 | 0.00 KM |
| Linden Way | £ 0 | 0 | 0.00 KM |
| Meadow Close | £ 0 | 0 | 0.00 KM |
Nearby Transport
| Name | NLC | TLC | Distance |
|---|---|---|---|
| Reedham (London) | 5431 | RHM | 1.56 KM |
| Coulsdon Town | 5382 | CDN | 1.98 KM |
| Purley | 5379 | PUR | 2.27 KM |
| Coulsdon South | 5408 | CDS | 2.69 KM |
| Wallington | 5394 | WLT | 2.92 KM |
Nearby Listings
| Address | Price | Type | Score | Distance |
|---|---|---|---|---|
| Webb Estate, Purley, Surrey | £ 2,650,000 | BUY | 9 / 10 | 0.00 KM |
| Webb Estate, Purley, Surrey | £ 2,950,000 | BUY | 7 / 10 | 0.22 KM |
| 17 The South Border, Purley, CR8 | £ 2,250,000 | BUY | 7 / 10 | 0.27 KM |
| Promenade De Verdun, Purley, CR8 | £ 2,950,000 | BUY | 8 / 10 | 0.35 KM |
| Webb Estate, Purley, Surrey | £ 3,000,000 | BUY | 9 / 10 | 0.37 KM |
Nearby Properties
| Address | Price | Distance |
|---|---|---|
| 7 The South Border | £ 1,995,000 | 0.00 KM |
| 15 The South Border | £ 2,200,000 | 0.00 KM |
| 19 The South Border | £ 1,780,000 | 0.00 KM |
| 11 The South Border | £ 1,499,999 | 0.00 KM |
| 1 The South Border | £ 325,000 | 0.00 KM |