BE
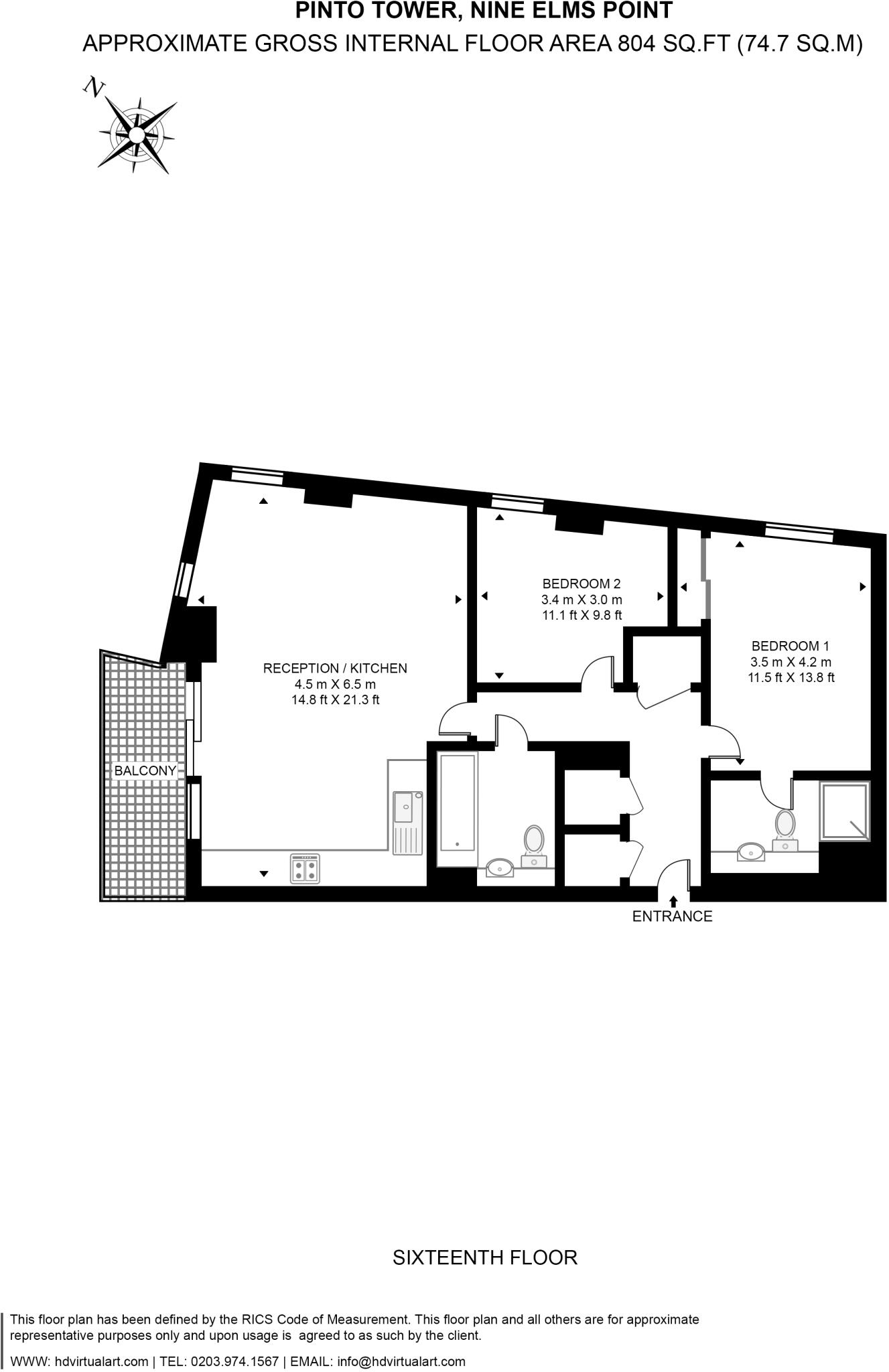
Hebden Place, Nine Elms, SW8
By Benham & Reeves - Kew
£ 720,000
Reviews
4 out of 5 stars
Benham & Reeves - Kew says ..
Two bedroom, two bathroom flat set in the sought after development of Nine Elms Point. Set on the 16th floor it Includes panoramic views.
Property Oracle says ..
Therefore, we give this property 8 / 10. *Disclaimer: This is our option and does constitute a recommendation or financial advice. Do your own research. *
- Price
- 9
- Condition
- 9
- Location
- 9
- Land
- 6
- Bedrooms
- 2
- Bathrooms
- 2
- Sqft (est)
- 804.00
The heatmap indicates the level of crime in the area. The color of the heatmap indicates the crime severity and recency.
Metrics Year-on-Year
- Average area value
- 1,317,905.00 £Decreased by 10.65 %
- Est sale value
- 1,524,384.00 £Increased by 28.72 %
- Average area rental value
- 2,872.00 £/moDecreased by 3.72 %
- Est letting value
- 3,216.00 £/moIncreased by 100.00 %
- Est rental Yield
- 2.62 %Increased by 7.82 %
- Crime Rate
- 8.00 %Unchanged by 0.00 %
from 1,474,911.00 £
from 1,184,292.00 £
from 2,983.00 £/mo
from 1,608.00 £/mo
from 2.43 %
from 8.00 %
Agent Activity
Benham & Reeves - Kew created the listing.
Nearby Schools
| Name | Type | Ofsted | Distance |
|---|---|---|---|
| Herbert Morrison Primary School | Community School | Outstanding | 0.37 KM |
| Wyvil Primary School And Resource Bases For Speech, Language And Communication Needs, And Autism | Foundation School | Outstanding | 0.38 KM |
| St Stephen'S Church Of England Primary School | Voluntary Aided School | Good | 0.72 KM |
| St Stephens Ce Primary School & Children'S Centre | Children's Centre | 0.73 KM | |
| Tachbrook Nursery School | Local Authority Nursery School | Good | 0.81 KM |
Images
Nearby Streets
| Name | Average Price | Average Sqft | Distance |
|---|---|---|---|
| Pascal Square | £ 1,222,000 | 0 | 0.00 KM |
| Bramley Crescent | £ 0 | 0 | 0.00 KM |
| Wyvil Road | £ 820,000 | 0 | 0.00 KM |
| Thorncroft Street | £ 0 | 0 | 0.00 KM |
| Walton Close | £ 0 | 0 | 0.00 KM |
Nearby Transport
| Name | NLC | TLC | Distance |
|---|---|---|---|
| Vauxhall | 5597 | VXH | 0.92 KM |
| Wandsworth Road | 5372 | WWR | 1.56 KM |
| Clapham High Street | 5301 | CLP | 1.71 KM |
| Queenstown Road (Battersea) | 5596 | QRB | 2.07 KM |
| Battersea Park | 5420 | BAK | 2.11 KM |
Nearby Listings
| Address | Price | Type | Score | Distance |
|---|---|---|---|---|
| Hebden Place, Nine Elms, SW8 | £ 720,000 | BUY | 8 / 10 | 0.00 KM |
| Hebden Place, Nine Elms, SW8 | £ 580,000 | BUY | 6 / 10 | 0.00 KM |
| Pinto Tower, Nine Elms Point, SW8 | £ 618,000 | BUY | 5 / 10 | 0.01 KM |
| Pinto Tower, Nine Elms Point | £ 485,000 | BUY | Unknown | 0.01 KM |
| Pinto Tower, Nine Elms Point, 4 Hebden Place, Nine Elms, London SW8 | £ 595,000 | BUY | 7 / 10 | 0.01 KM |
Nearby Properties
| Address | Price | Distance |
|---|---|---|
| 17 Davidson Gardens | £ 585,000 | 0.20 KM |
| 14 Davidson Gardens | £ 457,250 | 0.20 KM |
| 5 Davidson Gardens | £ 500,000 | 0.20 KM |
| 10 Davidson Gardens | £ 288,950 | 0.20 KM |
| 28 Davidson Gardens | £ 475,000 | 0.20 KM |