mile... says ..
Welcome to Greyhound Road; this beautifully designed garden apartment in Kensal Green
Property Oracle says ..
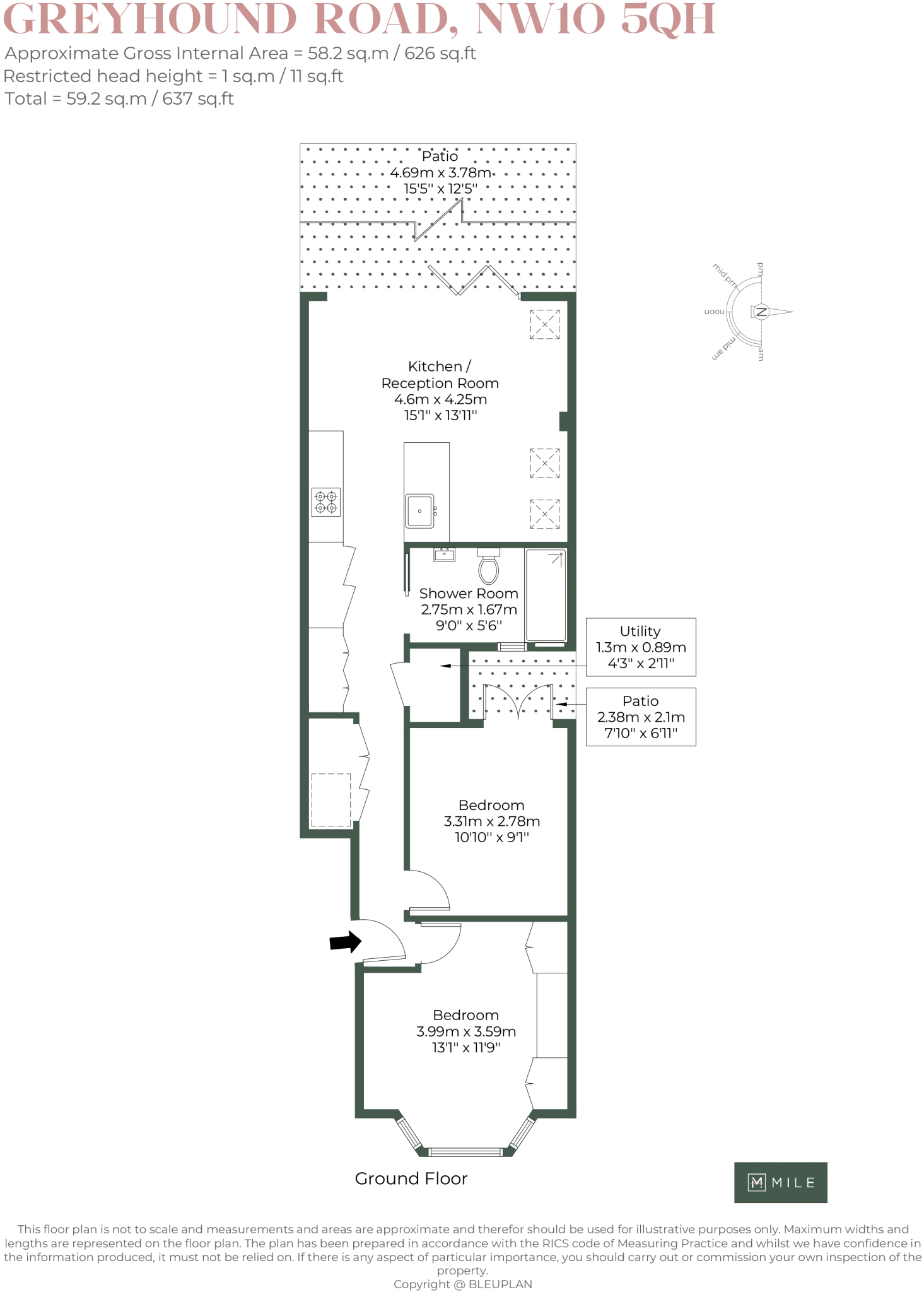
This ground floor flat is located on Greyhound Road, Kensal Green, London. The property benefits from being close to Kensal Green underground station (0.43km), providing convenient access to central London. Several well-regarded schools are also within a reasonable distance, including Princess Frederica Cofe Primary School and College Green School, both rated ‘Good’ or ‘Outstanding’ by Ofsted. The property itself appears to have been recently renovated to a high standard, with a modern kitchen and bathroom. The images show a light and airy space with a good use of natural light. The inclusion of a small patio garden is a definite plus.
The list price of £625,000 is slightly below the average price for the area (£690,826), however, the property is significantly smaller than the average at 773.82 sqft compared to 1079 sqft. Considering the high standard of the renovation and its desirable location, the price seems reasonable, particularly when compared to similar properties in the area such as 53b Greyhound Road which sold for £555,000.
Therefore, we give this property 7 / 10. *Disclaimer: This is our option and does constitute a recommendation or financial advice. Do your own research. *
- Price
- 7
- Condition
- 9
- Location
- 9
- Land
- 6
- Bedrooms
- 2
- Bathrooms
- 1
- Sqft (est)
- 773.82
The heatmap indicates the level of crime in the area. The color of the heatmap indicates the crime severity and recency.
Metrics Year-on-Year
- Average area value
- 745,000.00 £Decreased by 11.71 %
- Est sale value
- 591,972.30 £Decreased by 15.09 %
- Average area rental value
- 2,378.00 £/moIncreased by 14.49 %
- Est letting value
- 1,547.64 £/moUnchanged by 0.00 %
- Est rental Yield
- 3.83 %Increased by 29.83 %
- Crime Rate
- 6.00 %Unchanged by 0.00 %
Agent Activity
mile... created the listing.
Nearby Schools
| Name | Type | Ofsted | Distance |
|---|---|---|---|
| Princess Frederica Cofe Primary School | Voluntary Aided School | Good | 0.43 KM |
| College Green School And Services | Local Authority Nursery School | Outstanding | 0.62 KM |
| Kenmont Primary School | Community School | Good | 0.72 KM |
| Treetops Children'S Centre | Children's Centre | 0.97 KM | |
| Manor School | Academy Special Converter | Outstanding | 1.04 KM |
Images
Nearby Streets
| Name | Average Price | Average Sqft | Distance |
|---|---|---|---|
| Wrottesley Road | £ 0 | 0 | 0.00 KM |
| Wrottesley Road | £ 0 | 0 | 0.00 KM |
| Wrottesley Road | £ 0 | 0 | 0.00 KM |
| Wrottesley Road | £ 0 | 0 | 0.00 KM |
| Wrottesley Road | £ 0 | 0 | 0.00 KM |
Nearby Transport
| Name | NLC | TLC | Distance |
|---|---|---|---|
| Kensal Green | 1447 | KNL | 0.43 KM |
| Kensal Rise | 1448 | KNR | 1.04 KM |
| Willesden Junction | 1457 | WIJ | 1.74 KM |
| Brondesbury Park | 1438 | BSP | 2.31 KM |
| Queens Park (London) | 1419 | QPW | 2.66 KM |
Nearby Listings
| Address | Price | Type | Score | Distance |
|---|---|---|---|---|
| Greyhound Road, London | £ 625,000 | BUY | 7 / 10 | 0.00 KM |
| Greyhound Road, Kensal Rise, London NW10 | £ 1,300,000 | BUY | 6 / 10 | 0.02 KM |
| Felixstowe Road, Kensal Green, Lonon | £ 399,950 | BUY | 5 / 10 | 0.03 KM |
| Felixstowe Road, Kensal Rise | £ 825,000 | BUY | 7 / 10 | 0.05 KM |
| Felixstowe Road, Kensal Green, NW10 5SS | £ 825,000 | BUY | 7 / 10 | 0.05 KM |
Nearby Properties
| Address | Price | Distance |
|---|---|---|
| 35 Greyhound Road | £ 1,140,000 | 0.00 KM |
| 23 Greyhound Road | £ 890,000 | 0.00 KM |
| 27 Greyhound Road | £ 800,000 | 0.00 KM |
| 53b Greyhound Road | £ 555,000 | 0.00 KM |
| 45 Greyhound Road | £ 1,060,000 | 0.00 KM |