Ellisons says ..
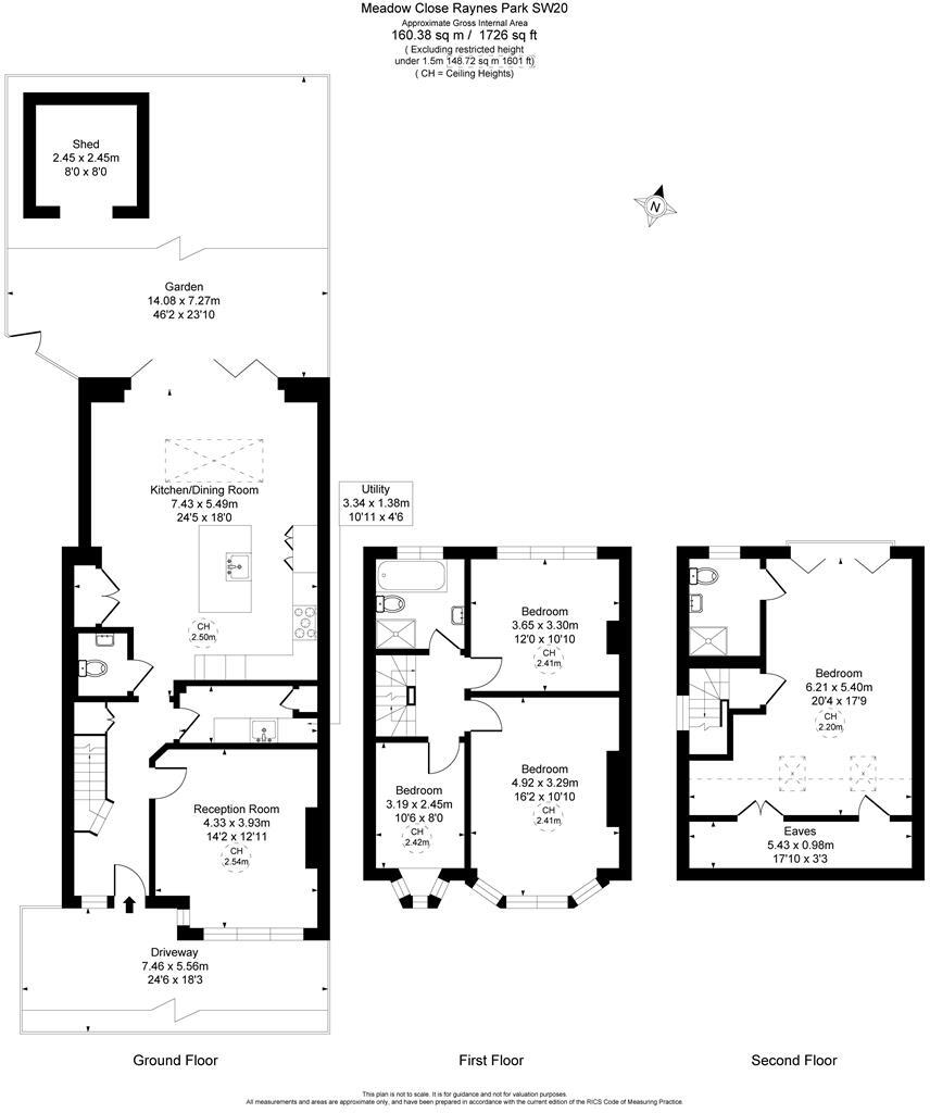
This truly exceptional 1,726 sqft/160 sqm FOUR DOUBLE BEDROOM, TWO BATHROOM 1930's end of terrace Blay house has been modernised meticulously and with no expense spared to the very highest order and benefits from many SIGNATURE features. There is a charming entrance hall with shoe and coat storag...
Property Oracle says ..
This end-of-terrace property on Meadow Close, Raynes Park, offers four bedrooms and two bathrooms within 1,726.32 sqft of living space. The house is in excellent condition, featuring modern interiors and a well-maintained garden. Located in a desirable area of Merton, it benefits from good schools and transportation links. The asking price of £1,100,000 is slightly above the local average but reflects the property’s size, condition, and location. It is a traditional property that has been modernised to a high standard.
Therefore, we give this property 7 / 10. *Disclaimer: This is our option and does constitute a recommendation or financial advice. Do your own research. *
- Price
- 6
- Condition
- 9
- Location
- 8
- Land
- 7
- Bedrooms
- 4
- Bathrooms
- 2
- Sqft (est)
- 1,726.32
The heatmap indicates the level of crime in the area. The color of the heatmap indicates the crime severity and recency.
Metrics Year-on-Year
- Average area value
- 652,765.00 £Decreased by 5.62 %
- Est sale value
- 944,297.04 £Decreased by 21.29 %
- Average area rental value
- 2,582.00 £/moIncreased by 3.28 %
- Est letting value
- 3,452.64 £/moUnchanged by 0.00 %
- Est rental Yield
- 4.75 %Increased by 9.45 %
- Crime Rate
- 2.00 %Unchanged by 0.00 %
Agent Activity
Ellisons created the listing.
Nearby Schools
| Name | Type | Ofsted | Distance |
|---|---|---|---|
| St John Fisher Rc Primary School | Voluntary Aided School | Good | 0.60 KM |
| The Bridge Children'S Centre | Children's Centre Linked Site | 1.05 KM | |
| West Wimbledon Primary School | Community School | Requires improvement | 1.13 KM |
| Raynes Park High School | Community School | Good | 1.29 KM |
| Blossom House School | Other Independent Special School | Outstanding | 1.31 KM |
Images
Nearby Streets
| Name | Average Price | Average Sqft | Distance |
|---|---|---|---|
| Meadow Close | £ 873,000 | 0 | 0.00 KM |
| Meadway | £ 740,000 | 0 | 0.00 KM |
| Greenway | £ 772,857 | 0 | 0.00 KM |
| Elm Close | £ 0 | 0 | 0.00 KM |
| Orchard Close | £ 1,048,889 | 0 | 0.00 KM |
Nearby Transport
| Name | NLC | TLC | Distance |
|---|---|---|---|
| Raynes Park | 5569 | RAY | 1.10 KM |
| Motspur Park | 5645 | MOT | 1.35 KM |
| Wimbledon Chase | 5612 | WBO | 1.92 KM |
| South Merton | 5292 | SMO | 2.57 KM |
| Worcester Park | 5579 | WCP | 2.77 KM |
Nearby Listings
| Address | Price | Type | Score | Distance |
|---|---|---|---|---|
| Meadow Close, Raynes Park | £ 1,100,000 | BUY | 7 / 10 | 0.00 KM |
| Meadow Close, London, SW20 | £ 880,000 | BUY | 7 / 10 | 0.01 KM |
| Meadow Close, Raynes Park, London, SW20 | £ 975,000 | BUY | 7 / 10 | 0.05 KM |
| Meadway, London | £ 750,000 | BUY | 6 / 10 | 0.06 KM |
| Meadow Close, London, SE6 | £ 300,000 | BUY | 6 / 10 | 0.06 KM |
Nearby Properties
| Address | Price | Distance |
|---|---|---|
| 19 Meadway | £ 432,000 | 0.04 KM |
| 1 Meadway | £ 320,000 | 0.04 KM |
| 10 Meadway | £ 283,000 | 0.04 KM |
| 14 Meadway | £ 485,000 | 0.04 KM |
| 23 Meadway | £ 117,000 | 0.04 KM |