The Brooks, Burghfield Common, Reading, Berkshire, RG7
By Savills New Homes
£ 925,000
Reviews
3 out of 5 stars
Savills New Homes says ..
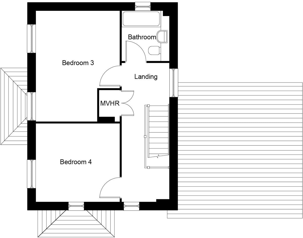
Plot 36 - The Bradfield -Positioned overlooking the green space this stunning four bedroom detached home with double garage and studio above - Offering versatile living
Property Oracle says ..
This is a modern detached property located in The Brooks development in Burghfield Common. The house features four bedrooms and three bathrooms. The interior is modern and well-maintained. The property is located near several schools. The price seems high compared to other properties in the area.
Therefore, we give this property 6 / 10. *Disclaimer: This is our option and does constitute a recommendation or financial advice. Do your own research. *
- Price
- 5
- Condition
- 9
- Location
- 7
- Land
- 6
- Bedrooms
- 4
- Bathrooms
- 3
- Sqft (est)
- 288.00
The heatmap indicates the level of crime in the area. The color of the heatmap indicates the crime severity and recency.
Metrics Year-on-Year
- Average area value
- 466,875.00 £Decreased by 13.73 %
- Est sale value
- 139,968.00 £Increased by 9.21 %
- Average area rental value
- 1,300.00 £/moDecreased by 39.81 %
- Est letting value
- 288.00 £/moUnchanged by 0.00 %
- Est rental Yield
- 3.34 %Decreased by 30.27 %
- Crime Rate
- 0.00 %
Agent Activity
Savills New Homes created the listing.
Nearby Schools
| Name | Type | Ofsted | Distance |
|---|---|---|---|
| Garland Junior School | Community School | Good | 0.79 KM |
| Burghfield St Mary'S C.E. Primary School | Voluntary Controlled School | Good | 1.39 KM |
| Mrs Bland'S Infant School | Community School | Good | 1.49 KM |
| The Willink School | Community School | Good | 1.70 KM |
| Mortimer St. John'S C.E. Infant School | Voluntary Controlled School | Good | 3.17 KM |
Images
Nearby Streets
| Name | Average Price | Average Sqft | Distance |
|---|---|---|---|
| Kestrel Way | £ 0 | 0 | 0.00 KM |
| Holmdene | £ 350,000 | 0 | 0.00 KM |
| Ash Lane | £ 0 | 0 | 0.00 KM |
| The Close | £ 270,000 | 0 | 0.00 KM |
| Brookside Walk | £ 425,000 | 0 | 0.00 KM |
Nearby Transport
| Name | NLC | TLC | Distance |
|---|---|---|---|
| Theale | 3153 | THE | 3.81 KM |
| Mortimer | 5501 | MOR | 4.30 KM |
| Tilehurst | 3154 | TLH | 8.08 KM |
| Bramley (Hampshire) | 5500 | BMY | 8.23 KM |
| Aldermaston | 3145 | AMT | 8.88 KM |
Nearby Listings
| Address | Price | Type | Score | Distance |
|---|---|---|---|---|
| The Brooks, Burghfield Common, Reading, Berkshire, RG7 | £ 595,000 | BUY | Unknown | 0.00 KM |
| The Brooks, Burghfield Common, Reading, Berkshire, RG7 | £ 925,000 | BUY | 6 / 10 | 0.00 KM |
| The Brooks, Clayhill Road, Burghfield Common, Reading, RG7 | £ 344,950 | BUY | 6 / 10 | 0.09 KM |
| The Brooks, Clayhill Road, Burghfield Common, Reading, RG7 | £ 595,000 | BUY | 7 / 10 | 0.11 KM |
| The Brooks, Clayhill Road, Burghfield Common, Reading, RG7 | £ 575,000 | BUY | 7 / 10 | 0.14 KM |
Nearby Properties
| Address | Price | Distance |
|---|---|---|
| 3 Dauntless Road | £ 352,500 | 0.24 KM |
| 32 Dauntless Road | £ 323,000 | 0.24 KM |
| 1 Dauntless Road | £ 383,000 | 0.24 KM |
| 8 Dauntless Road | £ 385,000 | 0.24 KM |
| 35 Dauntless Road | £ 325,000 | 0.24 KM |