Sowerbys says ..
Discover Olive Drove Barn – a stunning barn conversion set in 2 acres(STMS), offering modern living with character, spacious rooms, and a charming guest house. A perfect blend of comfort and privacy.
Property Oracle says ..
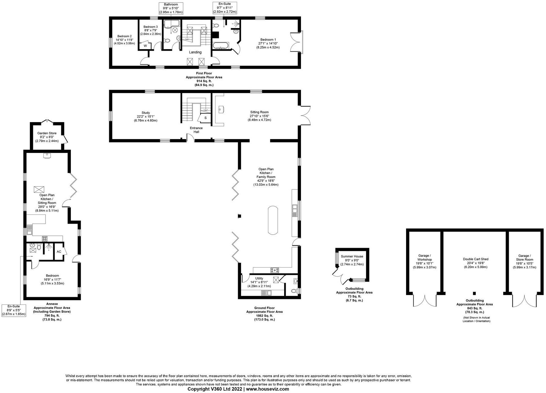
The property is a barn conversion located in Walpole Highway, Norfolk. The conversion appears to be of high quality, with exposed beams, a modern kitchen, and multiple living areas. The property benefits from a substantial plot of land, including a well-maintained lawn and what appears to be ample off-road parking. The location is rural, with the nearest primary school approximately 1.79km away. While this may not be ideal for families with young children who rely on walking or cycling to school, the area appears peaceful and quiet, which may appeal to some buyers. The lack of nearby transportation options is a potential drawback, especially for those who rely on public transport. Based on the images, the property is in excellent condition. It appears well-maintained and recently renovated. The interior is modern and stylish, with high-quality fixtures and fittings. Considering the property’s size (2,756 sqft), condition, and the substantial plot of land, the list price of £950,000 seems high compared to the average price per sqft in the area (£302). However, the property is a unique barn conversion, and this type of property often commands a premium price. Nearby comparable properties are all detached houses and lack the unique features and land size of the subject property. Therefore, while the price is above average, it may be justified given the property’s high-quality conversion, substantial land, and unique character.
Therefore, we give this property 7 / 10. *Disclaimer: This is our option and does constitute a recommendation or financial advice. Do your own research. *
- Price
- 7
- Condition
- 9
- Location
- 6
- Land
- 8
- Bedrooms
- 4
- Bathrooms
- 3
- Sqft (est)
- 2,756.00
The heatmap indicates the level of crime in the area. The color of the heatmap indicates the crime severity and recency.
Metrics Year-on-Year
- Average area value
- 245,074.00 £Decreased by 15.93 %
- Est sale value
- 647,660.00 £Decreased by 37.50 %
- Average area rental value
- 1,254.00 £/moDecreased by 5.43 %
- Est letting value
- 2,756.00 £/moUnchanged by 0.00 %
- Est rental Yield
- 6.14 %Increased by 12.45 %
- Crime Rate
- 0.00 %
Agent Activity
Sowerbys created the listing.
Nearby Schools
| Name | Type | Ofsted | Distance |
|---|---|---|---|
| Walpole Highway Primary School | Community School | Requires improvement | 1.79 KM |
| Anthony Curton Cofe Primary School | Academy Converter | Good | 2.50 KM |
| Terrington St John Primary School | Community School | Good | 4.37 KM |
| Walpole Cross Keys Primary School | Academy Converter | Good | 4.75 KM |
| Westfield House School | Other Independent Special School | Good | 5.41 KM |
Images
Nearby Streets
| Name | Average Price | Average Sqft | Distance |
|---|---|---|---|
| Wendale Close | £ 0 | 0 | 0.00 KM |
Nearby Listings
| Address | Price | Type | Score | Distance |
|---|---|---|---|---|
| Mill Road, Walpole Highway, PE14 | £ 950,000 | BUY | 7 / 10 | 0.00 KM |
| Mill Road, Walpole Highway | £ 600,000 | BUY | 6 / 10 | 0.25 KM |
| Mill Road, Walpole Highway PE14 | £ 375,000 | BUY | 5 / 10 | 0.26 KM |
| Mill Road, Walpole Highway | £ 475,000 | BUY | 6 / 10 | 0.85 KM |
| Mill Road, Walpole Highway, Wisbech, Norfolk, PE14 | £ 500,000 | BUY | 6 / 10 | 0.85 KM |
Nearby Properties
| Address | Price | Distance |
|---|---|---|
| The Holt | £ 113,000 | 0.82 KM |
| Aynsley House | £ 265,000 | 0.83 KM |
| Honey Bee | £ 150,000 | 0.85 KM |
| The Firs | £ 246,500 | 0.85 KM |
| Asbach | £ 130,000 | 0.85 KM |