Swaines Way, Heathfield, East Sussex, TN21 0AN
By Foresters
£ 300,000
Reviews
3 out of 5 stars
Foresters says ..
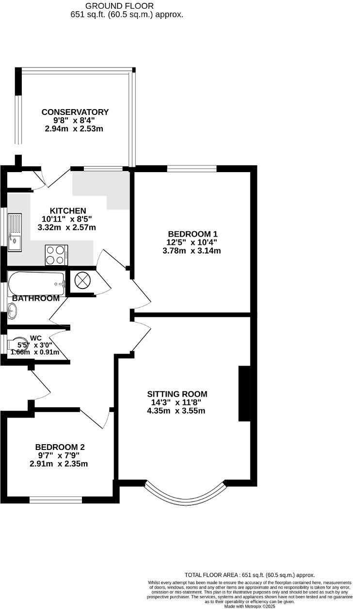
** NO CHAIN ** A well proportioned two bedroom semi-detached bungalow with plenty of potential, located on a 'no through' road with access onto the Cuckoo Trail nearby. Car port and off road p...
Property Oracle says ..
The property is a semi-detached bungalow located in Heathfield, East Sussex. The area has a mix of property types and prices. Several primary schools are within a reasonable distance, offering families convenient access to education. The images show a property that appears well-maintained and in good condition, although some aspects of the interior decor might be considered dated. The property includes a garden, adding to its appeal. Given the average house price in the area is significantly higher than the list price of this property, and considering the apparent condition and inclusion of a garden, the list price appears to be reasonable, potentially even representing good value. However, the lack of information regarding the square footage of the property prevents a more precise assessment of the price per square foot and its comparison to area averages. More information is needed to fully assess the property’s value.
Therefore, we give this property 7 / 10. *Disclaimer: This is our option and does constitute a recommendation or financial advice. Do your own research. *
- Price
- 8
- Condition
- 8
- Location
- 7
- Land
- 7
- Bedrooms
- 2
- Bathrooms
- 0
- Lot (est)
- 651.00
The heatmap indicates the level of crime in the area. The color of the heatmap indicates the crime severity and recency.
Metrics Year-on-Year
- Average area value
- 1,332,494.00 £Increased by 19.68 %
- Average area rental value
- 1,800.00 £/moDecreased by 54.11 %
- Est rental Yield
- 1.62 %Decreased by 61.70 %
- Crime Rate
- 3.00 %Unchanged by 0.00 %
Agent Activity
Foresters created the listing.
Nearby Schools
| Name | Type | Ofsted | Distance |
|---|---|---|---|
| Cross-In-Hand Church Of England Primary School | Voluntary Controlled School | Good | 1.16 KM |
| Parkside Community Primary School | Community School | Outstanding | 1.32 KM |
| Maynards Green Community Primary School | Community School | Good | 2.28 KM |
| All Saints' And St Richard'S Church Of England Primary School | Voluntary Aided School | Good | 2.55 KM |
| St Mary'S School | Academy Special Converter | Good | 2.73 KM |
Images
Nearby Streets
| Name | Average Price | Average Sqft | Distance |
|---|---|---|---|
| Yew Tree Close | £ 0 | 0 | 0.00 KM |
| Ashdown Place | £ 575,000 | 0 | 0.00 KM |
| Linden Gardens | £ 650,000 | 0 | 0.00 KM |
| Sunfields | £ 0 | 0 | 0.00 KM |
| Parkside | £ 0 | 0 | 0.00 KM |
Nearby Listings
| Address | Price | Type | Score | Distance |
|---|---|---|---|---|
| Swaines Way, Heathfield, East Sussex, TN21 0AN | £ 300,000 | BUY | 7 / 10 | 0.00 KM |
| Swaines Way, Heathfield, East Sussex, TN21 0AN | £ 340,000 | BUY | Unknown | 0.08 KM |
| Cuckoo Drive, Heathfield | £ 460,000 | BUY | 7 / 10 | 0.10 KM |
| Swaines Way, Heathfield | £ 300,000 | BUY | 7 / 10 | 0.14 KM |
| Swaines Way, Heathfield | £ 350,000 | BUY | 6 / 10 | 0.14 KM |
Nearby Properties
| Address | Price | Distance |
|---|---|---|
| 20 Cuckoo Drive | £ 282,000 | 0.10 KM |
| 36 Cuckoo Drive | £ 222,500 | 0.10 KM |
| 29 Cuckoo Drive | £ 345,000 | 0.10 KM |
| 19 Cuckoo Drive | £ 300,000 | 0.10 KM |
| 4 Cuckoo Drive | £ 305,000 | 0.10 KM |