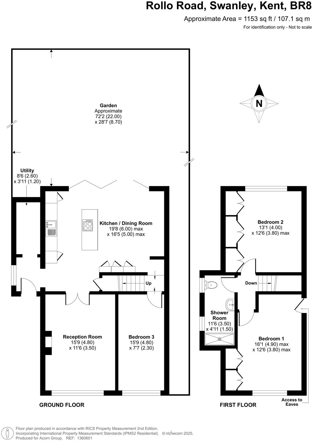
Rollo Road, Swanley, Kent
By Langford Russell
£ 550,000
Reviews
3 out of 5 stars
Langford Russell says ..
Langford Russell present this exceptional, rarely available three double bedroom detached house, set in a quiet yet easily accessible central location in the ever-popular Hextable village. Public bus routes within walking distance, Swanley mainline train station taking you directly int...
Property Oracle says ..
This is a well-presented, modern detached property in a desirable location. The property has been recently renovated and is in excellent condition. The garden is a good size and there is also a patio area. The property is priced competitively for the area and is likely to attract a lot of interest.
Therefore, we give this property 7 / 10. *Disclaimer: This is our option and does constitute a recommendation or financial advice. Do your own research. *
- Price
- 7
- Condition
- 9
- Location
- 7
- Land
- 7
- Bedrooms
- 3
- Bathrooms
- 1
The heatmap indicates the level of crime in the area. The color of the heatmap indicates the crime severity and recency.
Metrics Year-on-Year
- Average area value
- 1,145,000.00 £Increased by 51.85 %
- Average area rental value
- 1,717.00 £/moDecreased by 6.07 %
- Est rental Yield
- 1.80 %Decreased by 38.14 %
- Crime Rate
- 5.00 %Unchanged by 0.00 %
Agent Activity
Langford Russell created the listing.
Nearby Schools
| Name | Type | Ofsted | Distance |
|---|---|---|---|
| Hextable Primary School | Community School | Good | 0.65 KM |
| St Bartholomew'S Catholic Primary School, Swanley | Voluntary Aided School | Good | 1.46 KM |
| Swanley Children'S Centre | Children's Centre | 1.48 KM | |
| Horizon Primary Academy | Academy Sponsor Led | Good | 1.48 KM |
| St Pauls' Church Of England Voluntary Controlled Primary School | Voluntary Controlled School | Good | 1.48 KM |
Images
Nearby Streets
| Name | Average Price | Average Sqft | Distance |
|---|---|---|---|
| Main Road | £ 0 | 0 | 0.00 KM |
| The Beeches | £ 0 | 0 | 0.00 KM |
| New Barn Road | £ 0 | 0 | 0.00 KM |
| Alexandra Close | £ 350,000 | 0 | 0.00 KM |
| Pemberton Gardens | £ 400,000 | 0 | 0.00 KM |
Nearby Transport
| Name | NLC | TLC | Distance |
|---|---|---|---|
| Swanley | 5075 | SAY | 2.27 KM |
| Crayford | 5100 | CRY | 4.37 KM |
| Bexley | 5093 | BXY | 5.14 KM |
| Eynsford | 5065 | EYN | 5.71 KM |
| Dartford | 5101 | DFD | 5.90 KM |
Nearby Listings
| Address | Price | Type | Score | Distance |
|---|---|---|---|---|
| Rollo Road, Swanley, Kent | £ 550,000 | BUY | 7 / 10 | 0.00 KM |
| Main Road, Hextable, Kent, BR8 | £ 575,000 | BUY | 7 / 10 | 0.02 KM |
| Rollo Road, Hextable, Swanley, Kent, BR8 | £ 425,000 | BUY | 7 / 10 | 0.11 KM |
| Stuart Close, Hextable, Kent, BR8 | £ 595,000 | BUY | 7 / 10 | 0.13 KM |
| Egerton Nursery, Lambs Close, Hextable, Kent, BR8 | £ 825,000 | BUY | 8 / 10 | 0.17 KM |
Nearby Properties
| Address | Price | Distance |
|---|---|---|
| 54 Main Road | £ 220,000 | 0.02 KM |
| 58 Main Road | £ 370,000 | 0.02 KM |
| 50 Main Road | £ 215,000 | 0.02 KM |
| 16 Main Road | £ 510,000 | 0.02 KM |
| 8 Main Road | £ 242,000 | 0.02 KM |