TW Gaze says ..
One of the finest timber framed houses set in acre and tucked away. 6 bedrooms and 3 reception rooms. An absolute gem!
Property Oracle says ..
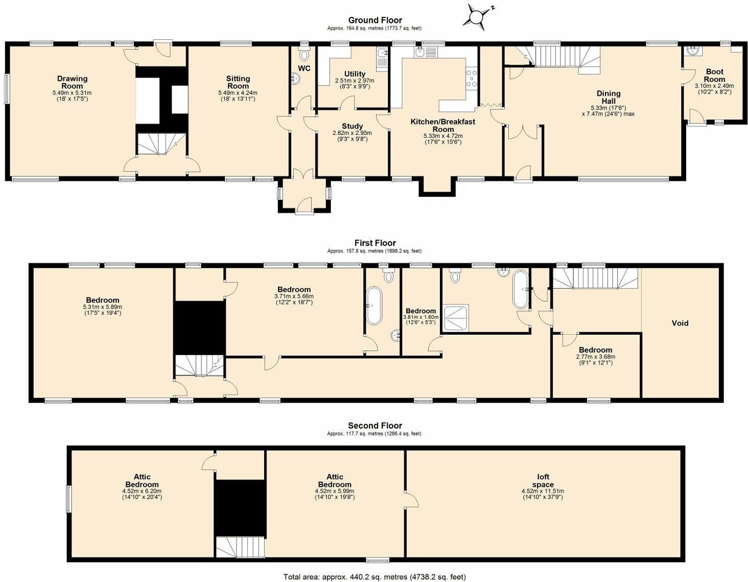
This property presents as a charming and substantial period home located in the village of Metfield, Suffolk. The images reveal a well-preserved structure, showing extensive exposed beams and timber framing, hinting at a significant age and possibly historic value. The interior offers a quaint and traditional ambiance. The house benefits from multiple bedrooms and bathrooms, suggesting ample living space. The home displays a mix of old and new features in its kitchens and bathrooms, blending traditional character with modern conveniences. The exterior showcases a traditional design and is surrounded by mature greenery, indicative of a pleasant garden. The proximity to the Harleston Road may offer some degree of road access, although the information lacks specific public transport details and distances to local shops and other amenities. The absence of detailed information on plot size and the lack of explicit comparison properties in terms of price per square foot make it challenging to offer a full assessment of price competitiveness, but overall the home seems well-priced. This property will likely appeal to buyers seeking a period home with character and in a peaceful setting, but willing to manage some maintenance needs and distance from amenities.
Therefore, we give this property 6 / 10. *Disclaimer: This is our option and does constitute a recommendation or financial advice. Do your own research. *
- Price
- 7
- Condition
- 6
- Location
- 7
- Land
- 4
- Bedrooms
- 6
- Bathrooms
- 2
- Sqft (est)
- 4,738.27
The heatmap indicates the level of crime in the area. The color of the heatmap indicates the crime severity and recency.
Metrics Year-on-Year
- Average area value
- 295,714.00 £Decreased by 48.79 %
- Est sale value
- 1,265,118.09 £Increased by 16.59 %
- Average area rental value
- 1,163.00 £/moDecreased by 17.69 %
- Est letting value
- 4,738.27 £/mo
- Est rental Yield
- 4.72 %Increased by 60.54 %
- Crime Rate
- 0.00 %
Agent Activity
TW Gaze created the listing.
Nearby Schools
| Name | Type | Ofsted | Distance |
|---|---|---|---|
| Mendham Primary School | Academy Converter | Good | 6.43 KM |
| All Saints Church Of England Primary School, Laxfield | Academy Converter | Outstanding | 7.12 KM |
| Fressingfield Church Of England Primary School | Academy Converter | 7.43 KM | |
| Harleston Area Children'S Centre | Children's Centre | 9.64 KM | |
| Harleston Cofe Primary Academy | Academy Converter | 9.75 KM |
Images
Nearby Streets
| Name | Average Price | Average Sqft | Distance |
|---|---|---|---|
| Harleston Road | £ 850,000 | 0 | 0.00 KM |
| Metfield Road | £ 0 | 0 | 0.00 KM |
Nearby Listings
| Address | Price | Type | Score | Distance |
|---|---|---|---|---|
| The Common, Metfield | £ 850,000 | BUY | 7 / 10 | 0.00 KM |
| The Common, Metfield, Harleston, Norfolk, IP20 | £ 850,000 | BUY | Unknown | 0.26 KM |
| North Green Lane, Halesworth | £ 350,000 | BUY | 5 / 10 | 1.67 KM |
| The Street, Metfield, Harleston | £ 625,000 | BUY | Unknown | 1.80 KM |
| The Street, Metfield | £ 400,000 | BUY | Unknown | 1.82 KM |
Nearby Properties
| Address | Price | Distance |
|---|---|---|
| Vale Farm Bungalow | £ 292,500 | 0.02 KM |
| The Perch | £ 300,000 | 1.77 KM |
| 2 Fressingfield Road | £ 160,000 | 1.77 KM |
| 5 Honeymoon Row | £ 167,500 | 1.78 KM |
| 6 Honeymoon Row | £ 240,000 | 1.78 KM |