SA
Montagu Court, Gosforth, Newcastle Upon Tyne
By Sanderson Young
£ 350,000
Reviews
3 out of 5 stars
Sanderson Young says ..
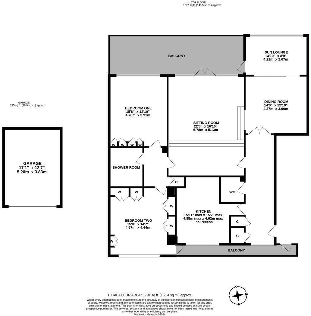
Situated within this sought-after development in Gosforth, is this delightful two bedroom apartment, ideally located on the fifth floor with stunning views to the north and south. Montagu Court, designed by renowned architects Waring & Netts, is a landmark development on the prestigious Monta...
Property Oracle says ..
Therefore, we give this property 6 / 10. *Disclaimer: This is our option and does constitute a recommendation or financial advice. Do your own research. *
- Price
- 8
- Condition
- 5
- Location
- 8
- Land
- 6
- Bedrooms
- 2
- Bathrooms
- 2
- Sqft (est)
- 1,791.00
- Lot (est)
- 1,791.00
The heatmap indicates the level of crime in the area. The color of the heatmap indicates the crime severity and recency.
Metrics Year-on-Year
- Average area value
- 1,142,500.00 £Increased by 139.22 %
- Est sale value
- 798,786.00 £Increased by 26.35 %
- Average area rental value
- 1,237.00 £/moDecreased by 7.48 %
- Est letting value
- 0.00 £/mo
- Est rental Yield
- 1.30 %Decreased by 61.31 %
- Crime Rate
- 0.00 %
from 477,586.00 £
from 632,223.00 £
from 1,337.00 £/mo
from 0.00 £/mo
from 3.36 %
from 0.00 %
Agent Activity
Sanderson Young created the listing.
Nearby Schools
| Name | Type | Ofsted | Distance |
|---|---|---|---|
| Wyndham Primary School | Academy Converter | Good | 0.52 KM |
| Westfield School | Other Independent School | 1.07 KM | |
| Dame Allan'S Junior School | Other Independent School | 1.39 KM | |
| Newcastle School For Boys | Other Independent School | 1.80 KM | |
| Mountfield Primary School | Academy Converter | Good | 1.83 KM |
Images
Nearby Streets
| Name | Average Price | Average Sqft | Distance |
|---|---|---|---|
| Arlington Court | £ 0 | 0 | 0.00 KM |
| The Green | £ 190,000 | 0 | 0.00 KM |
| The Croft | £ 0 | 0 | 0.00 KM |
| Ashburton Road | £ 0 | 0 | 0.00 KM |
| Park Villas | £ 0 | 0 | 0.00 KM |
Nearby Transport
| Name | NLC | TLC | Distance |
|---|---|---|---|
| Newcastle | 7728 | NCL | 3.82 KM |
| Manors | 7603 | MAS | 4.48 KM |
| Dunston | 7744 | DOT | 5.12 KM |
| Metrocentre | 7725 | MCE | 5.14 KM |
| Blaydon | 7503 | BLO | 8.91 KM |
Nearby Listings
| Address | Price | Type | Score | Distance |
|---|---|---|---|---|
| Montagu Court, Newcastle Upon Tyne | £ 445,000 | BUY | 7 / 10 | 0.00 KM |
| Montagu Court, Gosforth, Newcastle Upon Tyne | £ 350,000 | BUY | 6 / 10 | 0.00 KM |
| Montagu Court, Gosforth, Newcastle Upon Tyne | £ 425,000 | BUY | 5 / 10 | 0.00 KM |
| Montagu Court, Gosforth, Newcastle Upon Tyne | £ 385,000 | BUY | 6 / 10 | 0.00 KM |
| Montagu Court, Newcastle Upon Tyne | £ 200,000 | BUY | 5 / 10 | 0.03 KM |
Nearby Properties
| Address | Price | Distance |
|---|---|---|
| 47 Montagu Avenue | £ 730,000 | 0.18 KM |
| 28 Montagu Avenue | £ 625,000 | 0.18 KM |
| 24 Montagu Avenue | £ 650,000 | 0.18 KM |
| 22 Montagu Avenue | £ 585,000 | 0.18 KM |
| 42 Montagu Avenue | £ 425,000 | 0.19 KM |